Eladó átlagos állapotú ház - Kaposmérő
- INGYENES HIRDETÉS FELADÁS
Ingatlan adatai
- Eladó vagy kiadó:Eladó
- Település:Kaposmérő
- Kategória:Ház
- Alkategória:Családi ház
- Alapterület:70 m2
- Telekterület:516 m2
- Csere is:Nem
- Hirdető:Cég
- Élő videón megtekinthető:Nem
- Építés éve:1978
- Szobaszám:2
- Állapot:Átlagos állapotú
- Hány szintes az ingatlan:Földszintes
- Tetőtér:nincs megadva
- Komfortosság:nincs megadva
- Pince:nincs megadva
- Parkolási lehetőség:Udvaron
- Fűtés:Egyéb
- Bútorozottság:nincs megadva
- Fényviszony:Jó
- Tájolás:nincs megadva
- Kilátás:nincs megadva
- Internet:nincs megadva
- Klíma:nincs megadva
- Akadálymentesített:nincs megadva
- Energiatanúsítvány:nincs megadva
- Villany:nincs megadva
- Víz:nincs megadva
- Gáz:nincs megadva
- Csatorna:nincs megadva
- Kapcsolatfelvétel

Kuti Dávid
+36-(20)-775-1127
Mondd meg a hirdetőnek, hogy a megveszLAK-on találtad a hirdetést.
Referencia szám: M321527
Hitel ajánlatok
Ingatlan hirdetés leírása
Eladó Ház, Kaposmérő
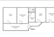
Kaposmérőn a főúthoz közel, mégis csendes utcában várja új lakóit ez a kedves házikó! a 70 m2-es ingatlan nagy része felújításra került. 2 Nagy szoba, sarokkádas fürdőszoba wc-vel, konyha, kamra, előszoba szolgálja az itt élők kényelmét. a két szoba laminált parkettával, míg az épület többi része járólappal burkolt. a víz- és villanyvezeték felújításra került, melynek záró akkordja egy teljesen új villanyóra felszerelése volt! a kinti zord időt egy vegyes tüzelésű kazán melege teszi komfortossá, mely radiátorokon keresztül érkezik a helyiségekbe. a vegyes falazat ellenére a ház egyáltalán nem vizesedik. Nyílászárói redőnyösek. a telek 516 m2. Nyáron szép pázsit díszíti az udvart, melyen egy kocsibeálló kapott helyet. Ajánljuk mindazoknak, akik szeretnének a somogyi fővároshoz közel, mégis nyugodt, csendes helyen élni. a településen megtalálható bölcsőde, óvoda, általános iskola, orvosi ellátás, többféle vegyesbolt, pékség, húsbolt. Kaposvártól mindössze 5 kilométerre várja új tulajdonosát ez a jó állapotú ingatlan!
Az ingatlan alkalmas a 3%-os Otthon Start Programra! Ennek teljes körű hitelügyintézését is lebonyolítjuk!
Amennyiben felkeltette érdeklődését, kérem hívjon bizalommal!
Ref. Szám: M321527
Kuti Dávid FIX 3% lakáshitelre megvehető
Tetszett ez az eladó Kaposmérői átlagos állapotú 2 szobás családi ház? Hívd fel a hirdetőt most, és tudj meg mindent erről az eladó családi házról! Ha gondolod nézelődj tovább az eladó ház Kaposmérő oldal hirdetései között. Ennek az eladó háznak az ára 35500000 Ft és mivel az alapterülete 70 négyzetméter, ezért az átlagos négyzetméterára 507143 HUF/m2.
Az eladó házak menüpontban további hirdetések között is böngészhetsz. Ha van kedved, akkor böngészhetsz a Kuti Dávid összes hirdetése között, vagy akár a/az OTPip Siófok Sió utca 10 - OTP Ingatlanpont Iroda összes hirdetése között is.

