Eladó jó állapotú ház - Kartal
- INGYENES HIRDETÉS FELADÁS
Ingatlan adatai
- Eladó vagy kiadó:Eladó
- Település:Kartal
- Kategória:Ház
- Alkategória:Családi ház
- Alapterület:235 m2
- Telekterület:827 m2
- Csere is:Nem
- Hirdető:Cég
- Élő videón megtekinthető:Nem
- Építés éve:2000
- Szobaszám:7
- Állapot:Jó állapotú
- Hány szintes az ingatlan:2 szintes
- Tetőtér:nincs megadva
- Komfortosság:nincs megadva
- Pince:nincs megadva
- Parkolási lehetőség:Udvaron
- Fűtés:Gáz (cirko)
- Bútorozottság:nincs megadva
- Fényviszony:Jó
- Tájolás:NY
- Kilátás:nincs megadva
- Internet:nincs megadva
- Klíma:nincs megadva
- Akadálymentesített:nincs megadva
- Energiatanúsítvány:nincs megadva
- Villany:nincs megadva
- Víz:nincs megadva
- Gáz:nincs megadva
- Csatorna:nincs megadva
- Kapcsolatfelvétel

Tamásné Mocsári Ildikó
+36-(70)-206-2979
Mondd meg a hirdetőnek, hogy a megveszLAK-on találtad a hirdetést.
Referencia szám: M326989
Hitel ajánlatok
Ingatlan hirdetés leírása
Eladó Ház, Kartal, Eladó jó állapotú ház - Kartal
Ritka lehetőség Kartal központjában - kétgenerációs családi ház, kiváló ADOTTSÁGOKKAL!
Kartal egyik legkedveltebb részén, központi elhelyezkedéssel, mégis csendes mellékutcában kínálunk megvételre egy 827 nm -es telken elhelyezkedő, összesen 235 nm -es, két különálló házból álló ingatlant.
Az ilyen adottságú ingatlan ritkán kerül piacra - tökéletes választás összeköltözőknek, nagycsaládosoknak vagy akár befektetőknek, akik több lehetőséget látnak egy helyen.
Két ház - számtalan lehetőség:
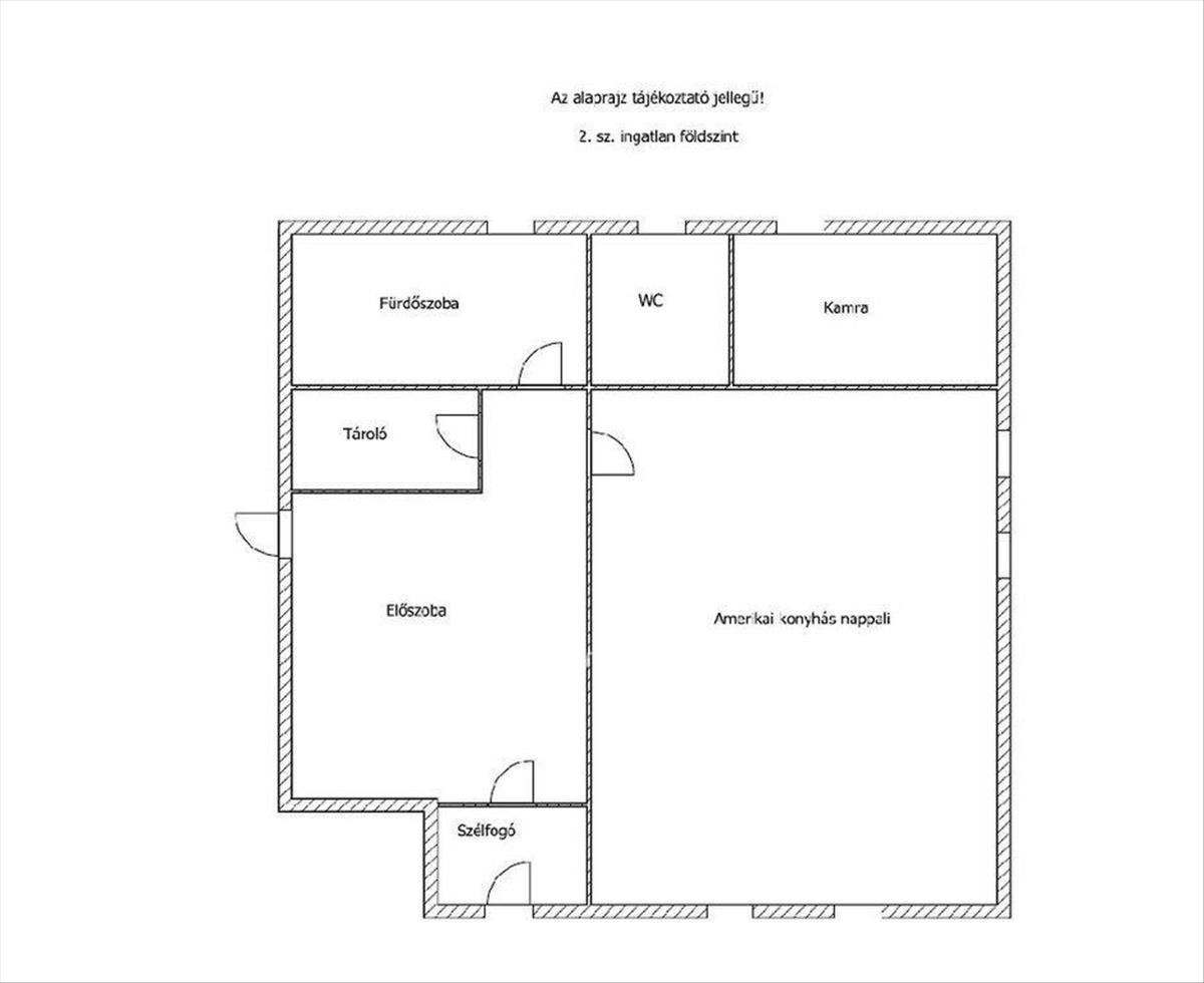
1. Ház (földszintes):
- 3 kényelmes méretű hálószoba
- konyha, fürdőszoba, kamra
- gyorsan költözhető, minimális ráfordítással
2. Ház (emeletes, tágas kialakítás):
- világos, amerikai konyhás nappali szinteltolással
- praktikus elrendezés, több generáció számára is ideális
- 3 hálószoba + 2 fürdőszoba
- jó állapot, külső szigeteléssel ellátva
Ami igazán kiemeli:
- két külön lakóegység egy telken - külön élettér, mégis együtt
- megbízható műszaki állapot
- kiváló lokáció: nyugalom és központ közelsége egyszerre
Kartal egy dinamikusan fejlődő, élhető település Budapest vonzáskörzetében, ahol adott a nyugodt, zöld környezet és a gyors bejutás a fővárosba - ideális választás mindazoknak, akik nem szeretnének kompromisszumot kötni a kényelem és a nyugalom között.
Ne hagyja ki ezt a sokoldalú lehetőséget - ilyen adottságú ingatlan ritkán elérhető a piacon!
Kérdés, megtekintés esetén keressen bizalommal, akár hétvégén is!
Referencia szám: m326989-ml FIX 3% lakáshitelre megvehető
Tetszett ez az eladó Kartali jó állapotú 7 szobás családi ház? Hívd fel a hirdetőt most, és tudj meg mindent erről az eladó családi házról! Ha gondolod nézelődj tovább az eladó ház Kartal oldal hirdetései között. Ennek az eladó háznak az ára 89000000 Ft és mivel az alapterülete 235 négyzetméter, ezért az átlagos négyzetméterára 378723 HUF/m2.
Az eladó házak menüpontban további hirdetések között is böngészhetsz. Ha van kedved, akkor böngészhetsz a Tamásné Mocsári Ildikó összes hirdetése között, vagy akár a/az OTPip Budapest XIV. kerület Vezér utca 147 - OTP Ingatlanpont Iroda összes hirdetése között is.

