Eladó új építésű ház - Kecskemét (14946242)
+ 7 fotó
hirdetés 1. fotó

Eladó új építésű ház Kecskemét

árcsökkenés figyelő
Kedvencbe Megosztás Árfigyelő
FIX 3% lakáshitelre megvehető
82 990 000 HUF

Ingatlan adatai

  • Eladó vagy kiadó:Eladó
  • Település:Kecskemét
  • Kategória:Ház
  • Alkategória:Családi ház
  • Alapterület:81 m2
  • Telekterület:506 m2
  • Csere is:Nem
  • Hirdető:Cég
  • Élő videón megtekinthető:Nem
  • Építés éve:2025
  • Szobaszám:4
  • Állapot:Új építésű
  • Hány szintes az ingatlan:Földszintes
  • Tetőtér:nincs megadva
  • Komfortosság:nincs megadva
  • Parkolási lehetőség:nincs megadva
  • Fűtés:Gáz (cirko)
  • Bútorozottság:nincs megadva
  • Fényviszony:Napfényes
  • Tájolás:DNY
  • Kilátás:nincs megadva
  • Internet:nincs megadva
  • Akadálymentesített:nincs megadva
  • Energiatanúsítvány:nincs megadva
  • Villany:nincs megadva
  • Víz:nincs megadva
  • Gáz:nincs megadva
  • Csatorna:nincs megadva
INGYENES HIRDETÉS FELADÁS
  • Üzenetküldés
  • Hívás
Érdekel az OTP Bank kedvezményes lakáshitel ajánlata is
Az ASZF-et és az Adatkezelési tájékoztatót elfogadom
Fábián József
Fábián József
Mondd meg a hirdetőnek, hogy a megveszLAK-on találtad a hirdetést.
Referencia szám: HZ028178
ingatlan mutatása térképen

Hitel ajánlat

Ingatlan hirdetés leírása

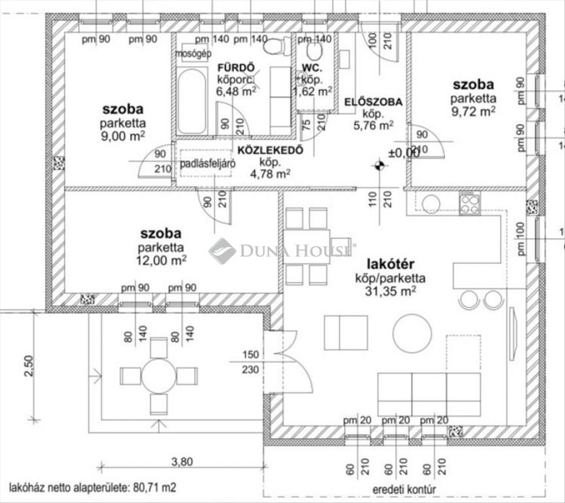
Eladó ház, Kecskemét

***Lakás helyett vegyen új építésű családi házat***Kecskemét - Katonatelepen már megépült 81 m2-es, nappali+3 szobás családi ház bekerített, összközműves telken eladó! Az ár tartalmazza a telek árát is! Jellemzői:- telek 500 m2 ( összközműves)- lakótér 81 m2- 10 m2 térkövezett terasz- gáz-cirkó fűtés, Bosch 2300 kazánnal, padlófűtés- 3 bosch klíma- Porotherm főfalak- 10 cm-es tégla válaszfalak (belső)- szeglemezes tető, 30cm vtg. -Ban befújt cellulóz szigetelés- fekete beton cserép tetőfedés- műanyag, Gelan tipusú bukó-nyíló nyílászárók (3 rétegű, 6 légkamrás), - biztonsági bejárati ajtó- redőny, szúnyogháló- 15 cm eps homlokzati hőszigetelés- elektromos kapuA ház cégtől eladó alkalmas CSOK+-ra, 3%-os hitelre is! ! ! Azonnal költözhető! Hívjon ne maradjon le erről a remek lehetőségről
A teljes Duna House ingatlan kínálatával állok rendelkezésére. Keressen bizalommal. FIX 3% lakáshitelre megvehető

Hasonló ingatlan hirdetések




Felhívom
© megveszLAK.hu
Az egyszerűen jó ingatlan hirdetési oldal