Eladó új építésű ház - Kecskemét
- INGYENES HIRDETÉS FELADÁS
Ingatlan adatai
- Eladó vagy kiadó:Eladó
- Település:Kecskemét
- Kategória:Ház
- Alkategória:Családi ház
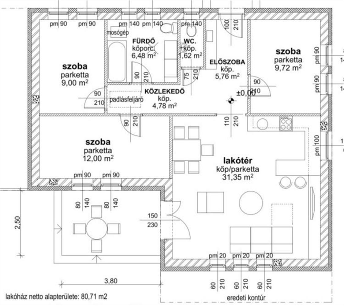
- Alapterület:81 m2
- Telekterület:506 m2
- Csere is:Nem
- Hirdető:Cég
- Élő videón megtekinthető:Nem
- Építés éve:2025
- Szobaszám:4
- Állapot:Új építésű
- Hány szintes az ingatlan:Földszintes
- Tetőtér:nincs megadva
- Komfortosság:nincs megadva
- Pince:nincs megadva
- Parkolási lehetőség:nincs megadva
- Fűtés:Gáz (cirko)
- Bútorozottság:nincs megadva
- Fényviszony:Napfényes
- Tájolás:DNY
- Kilátás:nincs megadva
- Internet:nincs megadva
- Klíma:nincs megadva
- Akadálymentesített:nincs megadva
- Energiatanúsítvány:nincs megadva
- Villany:Van
- Víz:Van
- Gáz:Van
- Csatorna:Van
- Kapcsolatfelvétel

Kis Virág
+36-(30)-375-6754
Mondd meg a hirdetőnek, hogy a megveszLAK-on találtad a hirdetést.
Referencia szám: HZ028178
Ingatlan hirdetés leírása
***Lakás helyett vegyen új építésű családi házat***
Kecskemét - Katonatelepen már megépült 81 m2-es, nappali+3 szobás családi ház bekerített, összközműves telken eladó!
Az ár tartalmazza a telek árát is!
Jellemzői:- telek 500 m2 ( összközműves)- lakótér 81 m2- 10 m2 térkövezett terasz- gáz-cirkó fűtés, Bosch 2300 kazánnal, padlófűtés- 3 bosch klíma- Porotherm főfalak- 10 cm-es tégla válaszfalak (belső)- szeglemezes tető, 30cm vtg. -Ban befújt cellulóz szigetelés- fekete beton cserép tetőfedés- műanyag, Gelan tipusú bukó-nyíló nyílászárók (3 rétegű, 6 légkamrás), - biztonsági bejárati ajtó- redőny, szúnyogháló- 15 cm eps homlokzati hőszigetelés- elektromos kapu
Azonnal költözhető! Hívjon ne maradjon le erről a remek lehetőségről
Kis Virág vagyok, az Arany János utca iroda képviseletében mint örökös tag
Minden nap örömmel lépek be az irodába, hogy szakmai felkészültségemmel, szorgalmammal és a munkámhoz elengedhetetlenül szükséges empátiával álljak Ügyfeleim rendelkezésére.
Az ő elégedettségük generálja szolgáltatásomba vetett hitemet és örömömet, amelynek eredményeképpen több száz sikeres ügyletet zártam, Kecskemét, Budapest és a Balaton térségében. Vallom, hogy az elégedett Ügyfél a legjobb referencia és így nem az ingatlanok közvetítője, hanem a benne lakó személyek, a piacon kereső emberek Ingatlanosa lehetek!
Referencia szám: hz028178-ml FIX 3% lakáshitelre megvehető


