- >>
- eladó ingatlanok
- >>
- eladó ház
- >>
- eladó ház Kecskemét
- >>
Eladó újszerű állapotú ház - Kecskemét
| | |||
| Kedvencnek jelölöm | Elküldöm emailben | Megosztás | Szavazás |
| FIX 3% lakáshitelre megvehető | |||
| 82 990 000 HUF | |||
Ingatlan adatai
- Eladó vagy kiadó:Eladó
- Település:Kecskemét
- Kategória:Ház
- Alkategória:Családi ház
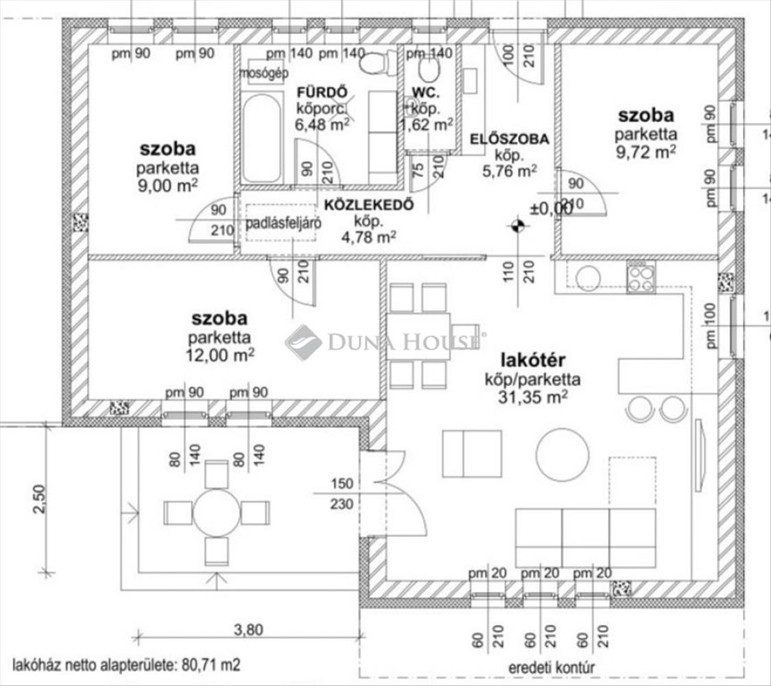
- Alapterület:81 m2
- Telekterület:506 m2
- Csere is:Nem
- Hirdető:Cég
- Élő videón megtekinthető:Nem
- Építés éve:2025
- Szobaszám:4
- Állapot:Újszerű, kitűnő
- Hány szintes az ingatlan:Földszintes
- Tetőtér:nincs megadva
- Komfortosság:nincs megadva
- Parkolási lehetőség:nincs megadva
- Fűtés:Gáz (cirko)
- Bútorozottság:nincs megadva
- Fényviszony:Napfényes
- Tájolás:DNY
- Kilátás:nincs megadva
- Internet:nincs megadva
- Akadálymentesített:nincs megadva
- Energiatanúsítvány:B
- Villany:nincs megadva
- Víz:nincs megadva
- Gáz:nincs megadva
- Csatorna:nincs megadva
- Üzenetküldés
- Hívás

Referencia szám: HZ028178

Hitel ajánlat
Ingatlan hirdetés leírása
Eladó ház, Kecskemét
***Lakás helyett vegyen új építésű családi házat***Kecskemét - Katonatelepen már megépült 81 m2-es, nappali+3 szobás családi ház bekerített, összközműves telken eladó! Az ár tartalmazza a telek árát is! Jellemzői:- telek 500 m2 ( összközműves)- lakótér 81 m2- 10 m2 térkövezett terasz- gáz-cirkó fűtés, Bosch 2300 kazánnal, padlófűtés- 3 bosch klíma- Porotherm főfalak- 10 cm-es tégla válaszfalak (belső)- szeglemezes tető, 30cm vtg. -Ban befújt cellulóz szigetelés- fekete beton cserép tetőfedés- műanyag, Gelan tipusú bukó-nyíló nyílászárók (3 rétegű, 6 légkamrás), - biztonsági bejárati ajtó- redőny, szúnyogháló- 15 cm eps homlokzati hőszigetelés- elektromos kapuA ház cégtől eladó alkalmas CSOK+-ra, 3%-os hitelre is! ! ! Azonnal költözhető! Hívjon ne maradjon le erről a remek lehetőségrőlKérem tekintse meg a többi hirdetésemet is!
Ha eladó ingatlana van kérem keressen bizalommal!
Referencia szám: hz028178 FIX 3% lakáshitelre megvehető

