- >>
- eladó ingatlanok
- >>
- eladó ház
- >>
- eladó ház Kecskemét
- >>
Eladó új építésű ház - Kecskemét
| | |||
| Kedvencnek jelölöm | Elküldöm emailben | Megosztás | Szavazás |
| FIX 3% lakáshitelre megvehető | |||
| 98 000 000 HUF | |||
Ingatlan adatai
- Eladó vagy kiadó:Eladó
- Település:Kecskemét
- Kategória:Ház
- Alkategória:Családi ház
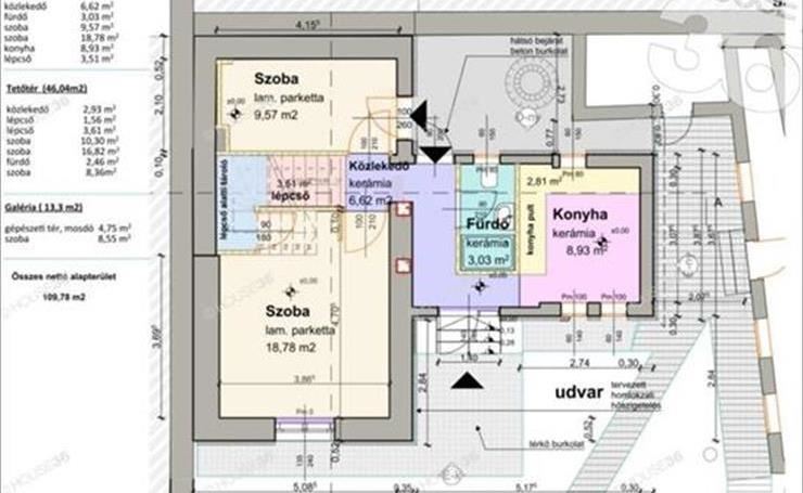
- Alapterület:109 m2
- Telekterület:200 m2
- Csere is:Nem
- Hirdető:Cég
- Élő videón megtekinthető:Nem
- Építés éve:2024
- Szobaszám:6
- Állapot:Új építésű
- Hány szintes az ingatlan:Földszintes
- Tetőtér:nincs megadva
- Komfortosság:nincs megadva
- Parkolási lehetőség:nincs megadva
- Fűtés:Egyéb
- Bútorozottság:nincs megadva
- Fényviszony:nincs megadva
- Tájolás:nincs megadva
- Kilátás:nincs megadva
- Internet:nincs megadva
- Akadálymentesített:nincs megadva
- Energiatanúsítvány:nincs megadva
- Villany:nincs megadva
- Víz:nincs megadva
- Gáz:nincs megadva
- Csatorna:nincs megadva
- Üzenetküldés
- Hívás

Referencia szám: 3619285

Hitel ajánlat
Ingatlan hirdetés leírása
Kecskemét történelmi belvárosában a piac közelében eladó ingat...
Kecskemét belvárosában eladó egy új építésű 2 szintes + galériás családi ház!A ház teljesen külön bejáratos, sőt igazából 3 külön bejárattal is rendelkezik. Elhelyezkedése miatt kiváló lehet családi háznak, de irodáknak, szolgáltatásoknak, ügyvédnek, fodrásznak, kiscsoportos foglalkozásokra is tökéletes helyet biztosíthat központi fekvése miatt.
Igény esetén 2 db garázs is vásárolható hozzá (további 17 mft-ért), ahonnan közvetlen bejárás van a lakáshoz 2 külön szinten is.
A házhoz tartozik egy saját 5 m2-es tároló és a ház előtt kis kert is zárt udvaron belül.
Tégla épület, természetesen a legmagasabb minőségű anyagokból, szigetelve, az I. emeleten 1 db hűtő-fűtő klímával lehet temperálni. Ezen felül egy H tarifás Bosch hőszivattyú a padlófűtéshez, és egy külön hőszivattyú a mennyezet és falfűtéshez.
Az ingatlan 3 szinten 6 szobával rendelkezik, 109 m2-en 3 fürdővel, 1-1 szintenként, és a galéria szinten a gépészettel együtt egy wc - kézmosó.
Ha felkeltette érdeklődésért hívjon egy megtekintés vagy bővebb tájékoztatás miatt.
Régi megy, új jön? Keressen bizalommal!! Segítek megoldani!!
Figyelem, az adatlap megbízóinktól kapott adatok alapján készültek, pontosságáért felelősséget nem tudunk vállalni!
A house36 kínálatában található összes ingatlannal kapcsolatban tudok felvilágosítást nyújtani.
Szolgáltatásaink ügyfeleink részére díjmentesek! FIX 3% lakáshitelre megvehető

