Eladó jó állapotú ház - Kemenesmihályfa
- INGYENES HIRDETÉS FELADÁS
Ingatlan adatai
- Eladó vagy kiadó:Eladó
- Település:Kemenesmihályfa
- Kategória:Ház
- Alkategória:Családi ház
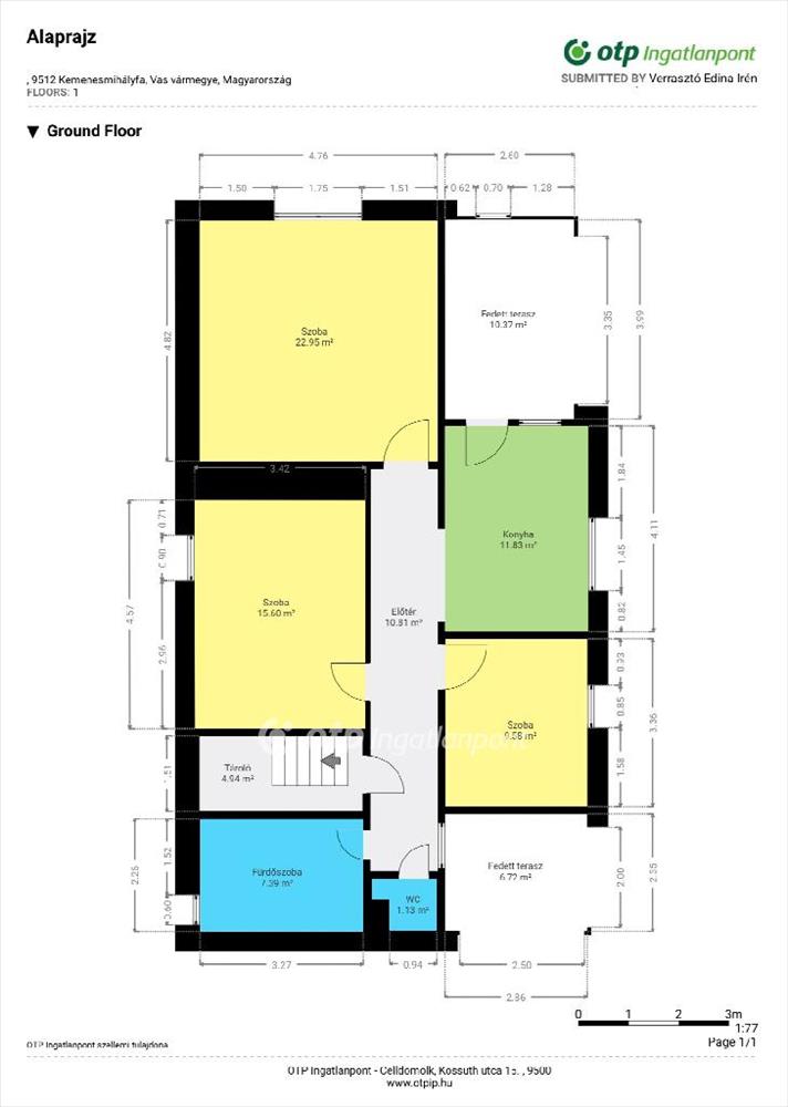
- Alapterület:84 m2
- Telekterület:2014 m2
- Csere is:Nem
- Hirdető:Cég
- Élő videón megtekinthető:Nem
- Építés éve:1965
- Szobaszám:2 + 1 fél
- Állapot:Jó állapotú
- Hány szintes az ingatlan:Földszintes
- Tetőtér:nincs megadva
- Komfortosság:nincs megadva
- Pince:nincs megadva
- Parkolási lehetőség:Beállóban
- Fűtés:Cserépkályha
- Bútorozottság:nincs megadva
- Fényviszony:nincs megadva
- Tájolás:nincs megadva
- Kilátás:nincs megadva
- Internet:nincs megadva
- Klíma:nincs megadva
- Akadálymentesített:nincs megadva
- Energiatanúsítvány:nincs megadva
- Villany:nincs megadva
- Víz:nincs megadva
- Gáz:nincs megadva
- Csatorna:nincs megadva
- Kapcsolatfelvétel

Verrasztó Edina Irén
+36-70-315-6380
Mondd meg a hirdetőnek, hogy a megveszLAK-on találtad a hirdetést.
Hitel ajánlatok
Ingatlan hirdetés leírása
Eladásra kínálok Vas vármegyében, a Celldömölki járásban Kemen...
Eladásra kínálok Vas vármegyében, a Celldömölki járásban Kemenesmihályfán rendezett-gondozott településen, egy tégla falazatú 84 m2 -es családi házat, 2014 m2-es telken. a település Kemenesalja középső-északi egyik legszebb részén, a szőlőhegyek lejtői és a síkság találkozásánál fekszik, Celldömölktől északnyugatra, Ostffyasszonyfa, Tokorcs és Kemenessömjén közt helyezkedik el, utóbbival szinte teljesen összenőtt. a falut a hazai vasútvonalak közül a Székesfehérvár? Szombathely-vasútvonal érinti, melynek egy megállási pontja van itt. Kemenesmihályfa megállóhely a falu délnyugati szélén helyezkedik el. a falu viszonylag csendes, csak némi helyi átmenő forgalom jellemző. Celldömölktől kb. 4 Km-re északra, Sárvártól 17, 5 km-re, Répcelaktól 20 km-re található. a falutól északnyugatra emelkedő domboldalakon már régóta szőlőművelés folyik. a településen megtalálhatók az alapvető szolgáltatások, mint például bolt, posta, orvosi rendelő. a ház elosztását tekintve áll: 4 szobából, egy étkezőből és konyhából, kamra és padlásfeljáróból, fürdőszobából, WC-ből, előszobából valamint egy elő- és egy hátsó teraszból. a nagy területű udvari rész, pihenésre, kertészkedésre is megfelelő, füvesített igény szerint többféle állat tartása is megoldható, udvari pincével, ásott kúttal is rendelkezik. a házhoz, tárolóhelység csatlakozik. Téli hideg napokon a ház fűtését kályhákkal lehet megoldani. a ház szerkezetileg és statikailag jó állapotú. Tetőszerkezete korának megfelelő. Valamennyi nyílászáró anyaga műanyag. a ház elrendezése kiváló, elhelyezkedése szempontjából meglehetősen jó adottságokkal rendelkezik, hisz nyugodt környezetben található Ajánlom mindazon érdeklődők figyelmébe, akik falun, több városhoz közel, nyugodt családias természetközeli környezetben keresnek egy jó elrendezésű, azonnal költözhető barátságos otthont vagy vendégház, turistaház, tájház kialakítását tervezik az ingatlanból, vagy hétvégi házat szeretnének kirándulás és pihenés céljából. a környék felfedezéséhez a természetkedvelőknek számos lehetőség van túrázásra és kirándulásra. Az OTP Ingatlanpont teljes körű ügyintézéssel áll az eladók és a vevők rendelkezésére. a kínálatunkból választott ingatlan finanszírozásához kedvezményes hitelkonstrukciót kínálunk. Az adásvételi szerződés megkötéséhez igény szerint megbízható ügyvédi közreműködést biztosítunk, és segítséget nyújtunk az adásvételhez kapcsolódó ügyek intézéséhez is. Otthon Start Hitelprogram. Amennyiben felkeltette érdeklődését az általam kínált ingatlan, keressen bizalommal. a hirdetési szöveg és képek az Otp Ingatlanpont tulajdona. FIX 3% lakáshitelre megvehető
Tetszett ez az eladó Kemenesmihályfai jó állapotú 2 egész és 1 fél szobás családi ház? Hívd fel a hirdetőt most, és tudj meg mindent erről az eladó családi házról! Ha gondolod nézelődj tovább az eladó ház Kemenesmihályfa oldal hirdetései között. Ennek az eladó háznak az ára 29999000 Ft és mivel az alapterülete 84 négyzetméter, ezért az átlagos négyzetméterára 357131 HUF/m2.
Az eladó házak menüpontban további hirdetések között is böngészhetsz. Ha van kedved, akkor böngészhetsz a Verrasztó Edina Irén összes hirdetése között, vagy akár a/az Pápa Eötvös utca 16 - OTP Ingatlanpont Iroda összes hirdetése között is.

