Eladó felújítandó ház - Kemenesszentpéter
- INGYENES HIRDETÉS FELADÁS
Ingatlan adatai
- Eladó vagy kiadó:Eladó
- Település:Kemenesszentpéter
- Kategória:Ház
- Alkategória:Családi ház
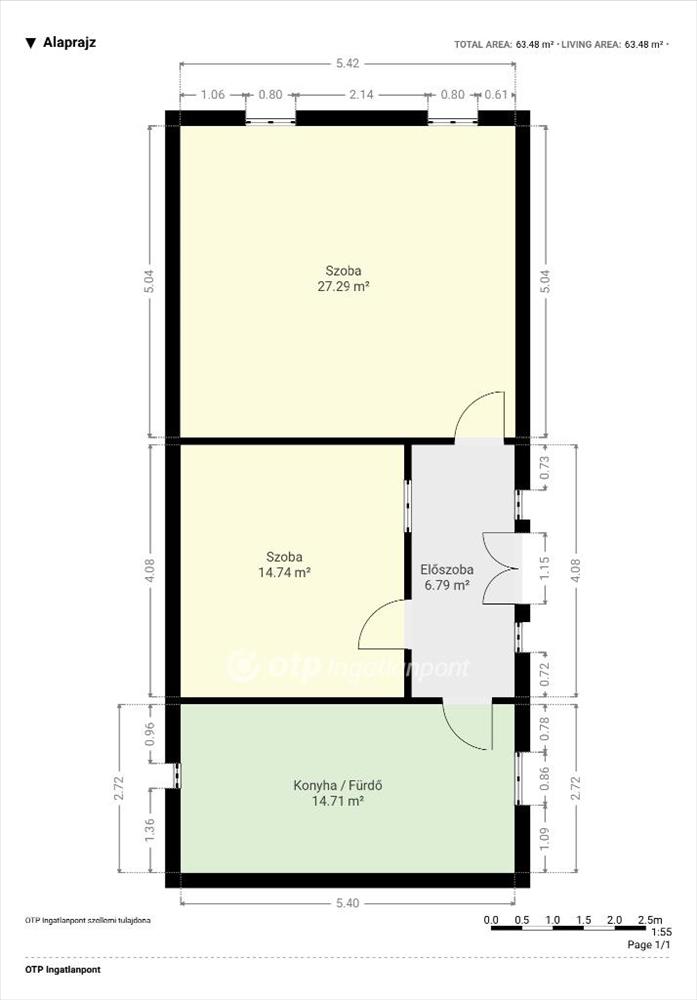
- Alapterület:63 m2
- Telekterület:1366 m2
- Csere is:Nem
- Hirdető:Cég
- Élő videón megtekinthető:Nem
- Építés éve:1920
- Szobaszám:2
- Állapot:Felújítandó
- Hány szintes az ingatlan:Földszintes
- Tetőtér:nincs megadva
- Komfortosság:nincs megadva
- Pince:nincs megadva
- Parkolási lehetőség:Utcán
- Fűtés:Cserépkályha
- Bútorozottság:nincs megadva
- Fényviszony:nincs megadva
- Tájolás:nincs megadva
- Kilátás:nincs megadva
- Internet:nincs megadva
- Klíma:nincs megadva
- Akadálymentesített:nincs megadva
- Energiatanúsítvány:nincs megadva
- Villany:nincs megadva
- Víz:nincs megadva
- Gáz:Utcában
- Csatorna:nincs megadva
- Kapcsolatfelvétel
Molnár Márk István
+36-30-265-5725
Mondd meg a hirdetőnek, hogy a megveszLAK-on találtad a hirdetést.
Hitel ajánlatok
Ingatlan hirdetés leírása
ELADÓ Kemenesszentpéteren, a falu KÖZPONTJÁBAN egy 63 m2-es, 2...
Eladó Kemenesszentpéteren, a falu központjában egy 63 m2-es, 2 szobás családi ház, amely az 1920-as évek körül épült vegyes falazattal. Az ingatlan statikailag rendben van, tetőszerkezete jó, jelenlegi állapota felújítandó, így ideális Alap saját igények szerinti korszerűsítéshez.
Főbb jellemzők:
- Hasznos alapterület: 63 m2, 2 szoba
- Építés: kb. 1920-As évek, vegyes falazat
- Szerkezet: stabil, jó tetőszerkezet
- Fűtés: kályhával megoldott
- Közművek: víz, villany, csatorna BEKÖTVE
- gáz: nincs bevezetve, de a gázszolgáltatás az utcában elérhető, igény szerint BEKÖTHETŐ
A telek mérete 1366 m2, amely nagy teleknek számít a kategóriában. a telken kerti csap, kb. 20 Éves akácfák, valamint egy ásott kút található, amelyek a kert öntözését és a ház körüli munkákat praktikusan támogathatják.
Elhelyezkedés: központi elhelyezkedés a településen belül, ami mindennapi ügyintézéshez és helyi szolgáltatások eléréséhez hatékony választás. a meglévő közművek, a jó szerkezeti állapot és a beköthető gáz együttese rugalmas fejlesztési lehetőséget kínál.
Összegzés: felújítandó, de stabil alapokon álló, közművesített, központi fekvésű, 2 szobás családi ház nagy telekkel Kemenesszentpéter szívében. Olyan érdeklődőknek ajánlható, akik tervezhető, lépésről lépésre megújítható ingatlant keresnek. FIX 3% lakáshitelre megvehető
Tetszett ez az eladó Kemenesszentpéteri felújítandó 2 szobás családi ház? Hívd fel a hirdetőt most, és tudj meg mindent erről az eladó családi házról! Ha gondolod nézelődj tovább az eladó ház Kemenesszentpéter oldal hirdetései között. Ennek az eladó háznak az ára 8900000 Ft és mivel az alapterülete 63 négyzetméter, ezért az átlagos négyzetméterára 141270 HUF/m2.
Az eladó házak menüpontban további hirdetések között is böngészhetsz. Ha van kedved, akkor böngészhetsz a Molnár Márk István összes hirdetése között, vagy akár a/az Pápa Eötvös utca 16 - OTP Ingatlanpont Iroda összes hirdetése között is.

