Eladó felújított ház - Keszthely
- INGYENES HIRDETÉS FELADÁS
Ingatlan adatai
- Eladó vagy kiadó:Eladó
- Település:Keszthely
- Kategória:Ház
- Alkategória:Családi ház
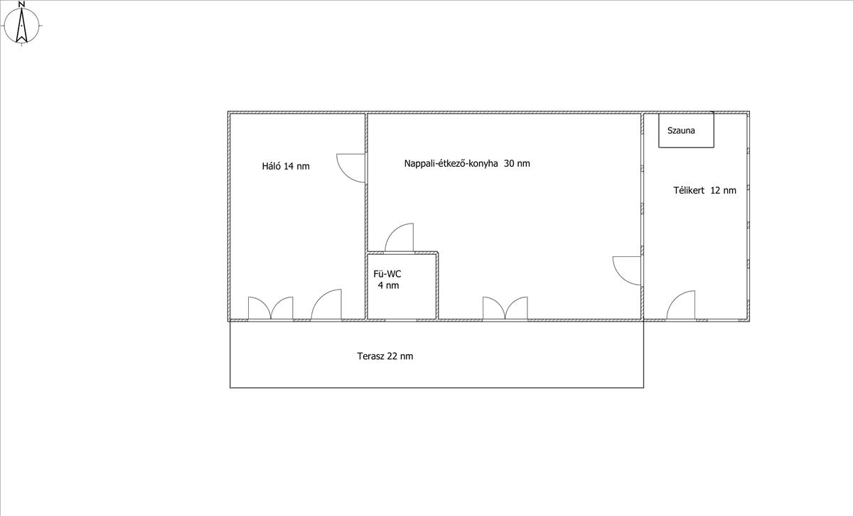
- Alapterület:60 m2
- Telekterület:850 m2
- Csere is:Nem
- Hirdető:Cég
- Élő videón megtekinthető:Nem
- Építés éve:1977
- Szobaszám:2
- Állapot:Felújított
- Hány szintes az ingatlan:Földszintes
- Tetőtér:Nem beépíthető
- Komfortosság:Összkomfortos
- Pince:Nincs
- Parkolási lehetőség:Garázsban
- Fűtés:Elektromos
- Bútorozottság:Gépesített
- Fényviszony:Napfényes
- Tájolás:DK
- Kilátás:Kertre néző
- Internet:Szélessávú (>10Mbps)
- Klíma:Van
- Akadálymentesített:Részben akadálymentes
- Energiatanúsítvány:B
- Villany:Van
- Víz:Van
- Gáz:Telken belül
- Csatorna:Van
- Kapcsolatfelvétel

Végh Katalin
+36-(20)-469-3330
Mondd meg a hirdetőnek, hogy a megveszLAK-on találtad a hirdetést.
Ingatlan hirdetés leírása
Keszthelyen közel a központhoz nyugodt környezetben családiház
Keszthelyen csendes zsákutcában mégis közel a belvároshoz hangulatos, masszív családiház 850 nm-es telken eladó. Az ingatlan felújítása során új tetőt kapott és a vezetékek, nyílászárók, burkolatok cseréje is megtörtént.
A ház 60 nm ( nappali- amerikai konyha, hálószoba, fürdő-wc, télikert). a fűtött téikertben infraszauna került elhelyezésre. a ház belső oldalán tágas fedett terasz, az udvaron garázs és szerszámtároló található. Fűtése részben padlófűtés ( télikert, háló) részben klíma és cserépkályha ( nappali, fürdő). Gázcsonk a telken belül van. a ház 10 cm vastag szigetelésének is köszönhetően barátságos rezsivel bír. a széles utcafrontú telek egyrész esztétikus térkövezést kapott, a fennmaradó rész parkosított és gyümölcsfákkal beültetett. FIX 3% lakáshitelre megvehető


