Eladó újszerű állapotú ház Kétegyháza
| Kedvencbe | Megosztás | Árfigyelő |
| FIX 3% lakáshitelre megvehető | ||
| 37 500 000 HUF | ||
Ingatlan adatai
- Eladó vagy kiadó:Eladó
- Település:Kétegyháza
- Kategória:Ház
- Alkategória:Családi ház
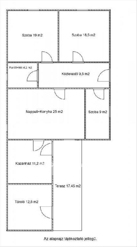
- Alapterület:98 m2
- Telekterület:1428 m2
- Csere is:Nem
- Hirdető:Cég
- Élő videón megtekinthető:Nem
- Építés éve:1970
- Szobaszám:2 + 1 fél
- Állapot:Újszerű, kitűnő
- Hány szintes az ingatlan:Földszintes
- Tetőtér:nincs megadva
- Komfortosság:nincs megadva
- Parkolási lehetőség:Teremgarázsban
- Fűtés:Gáz (cirko)
- Bútorozottság:nincs megadva
- Fényviszony:Jó
- Tájolás:nincs megadva
- Kilátás:nincs megadva
- Internet:nincs megadva
- Klíma:Van
- Akadálymentesített:nincs megadva
- Energiatanúsítvány:E
- Villany:Telken belül
- Víz:Telken belül
- Gáz:Telken belül
- Csatorna:Van
- Üzenetküldés
- Hívás

Referencia szám: M319141

Hitel ajánlat
Ingatlan hirdetés leírása
Eladó Ház, Kétegyháza
Kihagyhatattlan lehetőség---- eladó egy igényesen és szépen felújított családi HÁZ! ! !Békés vármegyében kétegyházán egy nyugodt, csendes helyen a központtól kb. 600 Méterre található összkomfortos ingatlan. Az épület az 1970-es években épült, tégla falazatú, jó elrendezésű és helyiségkapcsolatú, amiben található 3 szoba, nappali-konyha étkezővel, fürdő+Wc egyben, közlekedő, kazánház, és egy tároló. 2023-Ban kívül-belül felújították: homlokzati hőszigetelés + nemesvakolat, födémszigetelés, új ereszcsatorna, új nyílászárók, új elektromos hálózat, új fűtésrendszer, aminek felújítása prémium minőségi anyagokkal történt. 2 Db klíma is beépítésre került, így a nyári forróságot hűs közegben tölthetik az új tulajdonosok.
Az 1428 m2 telek teljes egészében füvesített, parkosított ahol található egy trapézlemez borítású könnyűszerkezetű garázs.
A községben minden megtalálható, óvoda, iskola, több bolt, gyógyszertár ezek könnyen és gyorsan megközelíthetők.
Aki nagyobb bevásárlást szeretne azok számára is van lehetőség a környező városokban. , / Békéscsaba 19 km, Gyula 16 km/ mindkettő a közelben van.
Ide csak be kell költözni! a teljes bútorzat a vételár részét képezi. Ideális lehet azok számára akik távol a nagyvárosok zajától egy szép kertes házban szeretnének élni.
Ajánlom első otthonukat kereső családoknak, időseknek, fiataloknak egyaránt. Minden korosztály számára kítűnő választás lehet. Az ingatlan előre egyeztetett időpontban megtekinthető. Legyen az Öné! Ne habozzon hívni! Az ingatlan megvásárlásához babaváró hitel, CSOK és egyéb kedvező kamatozású hitelek igényelhetők, melynek díjmentes ügyintézését vállaljuk. Az Otp Ingatlanpont magyar és külföldi ügyfelei részére eladó ingatlanokat keres, és kínál. Teljes körű pénzügyi ügyintézés.
Referencia szám: m319141-ml FIX 3% lakáshitelre megvehető

