Eladó jó állapotú ház - Kiskunlacháza
- INGYENES HIRDETÉS FELADÁS
Ingatlan adatai
- Eladó vagy kiadó:Eladó
- Település:Kiskunlacháza
- Kategória:Ház
- Alkategória:Családi ház
- Alapterület:78 m2
- Telekterület:370 m2
- Csere is:Nem
- Hirdető:Cég
- Élő videón megtekinthető:Nem
- Építés éve:1982
- Szobaszám:3 + 3 fél
- Állapot:Jó állapotú
- Hány szintes az ingatlan:2 szintes
- Tetőtér:nincs megadva
- Komfortosság:nincs megadva
- Pince:nincs megadva
- Parkolási lehetőség:Beállóban
- Fűtés:Elektromos
- Bútorozottság:nincs megadva
- Fényviszony:nincs megadva
- Tájolás:nincs megadva
- Kilátás:nincs megadva
- Internet:nincs megadva
- Klíma:nincs megadva
- Akadálymentesített:nincs megadva
- Energiatanúsítvány:nincs megadva
- Villany:Van
- Víz:Van
- Gáz:Telken belül
- Csatorna:Van
- Kapcsolatfelvétel

Povenszki Kamilla
+36-(20)-208-0871
Mondd meg a hirdetőnek, hogy a megveszLAK-on találtad a hirdetést.
Hitel ajánlatok
Ingatlan hirdetés leírása
Dunapart közeli családi ház saját stéggel – Kiskunlacháza üdül...
Dunapart közeli családi ház saját stéggel – Kiskunlacháza üdülőövezetében
Eladásra kínálok Kiskunlacháza közkedvelt, csendes üdülőövezeti részén egy jó állapotú, kanadai fagerendás szerkezetű, dupla szigeteléssel épült családi házat, mindössze pár lépésre a vízparttól.
A 370 m²-es telken elhelyezkedő ingatlan alapterülete 78 m², melyhez egy 20 m²-es fedett, kertre néző terasz kapcsolódik — van hogy a reggeli kávét mókusok társaságában élvezheti az ingatlan gazdája.
A természet közelsége és a Dunapart hangulata ideális választássá teszi állandó otthonnak, nyaralónak vagy befektetésnek is.
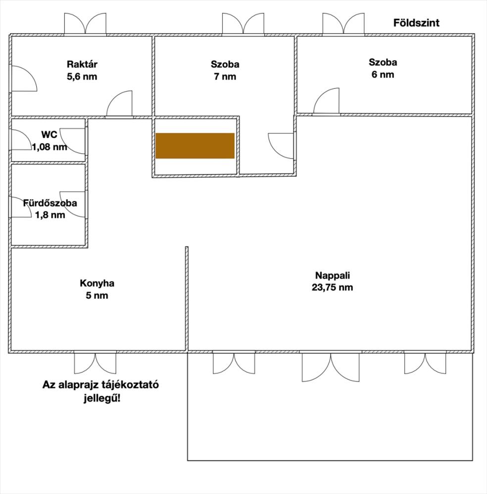
Helyiségek
Földszint:
tágas nappali
külön konyha (új mosogatógéppel)
fürdőszoba masszázszuhannyal
külön WC
tároló
2 félszoba (igény szerint egybenyitható)
Tetőtér:
2 szoba
gardrób
Műszaki tartalom
korszerűsített elektromos hálózat
okosvezérlésű, távirányítható elektromos fűtés
riasztórendszer
új kerítés és elektromos kapu
fa nyílászárók
fúrt kút + kerti csap
kerti tároló
Extra: saját stég
Az ingatlanhoz egy 16 m²-es saját stég is megvásárolható, amely két éve teljes felújításon esett át.
Stég ára: 10. 000. 000 Ft
Elhelyezkedés
Kiskunlacháza központ: 5 perc autóval
Ráckeve: 8 perc autóval
nyugodt, zöldövezeti környezet
Az ingatlan hitelezhető, valamint per- tehermentes. Díjmentes, bankfüggetlen hiteltanácsadást biztosítunk ügyfeleink számára, melynek keretében hitelcentrumunk az összes elérhető bank és hitelintézet ajánlatát összehasonlítja és versenyezteti az Ön érdekei mentén. a folyamat egyszerű és átlátható: egy személyes vagy telefonos konzultáció során munkatársunk felméri az Ön igényeit és lehetőségeit, majd ezek alapján a bankok számára optimalizált ajánlatokat kér be. Célunk, hogy Ön hosszú távon is a legkedvezőbb, legbiztonságosabb finanszírozási konstrukciót kapja meg. a beérkezett ajánlatok közül végül Ön hozza meg a döntést, teljes körű szakmai támogatás mellett.
Ha felkeltette az érdeklődését, ne habozzon — jöjjön el, nézzük meg együtt és hagyja, hogy ez a csodás környezet Önt is elvarázsolja. FIX 3% lakáshitelre megvehető
Tetszett ez az eladó Kiskunlacházai jó állapotú 3 egész és 3 fél szobás családi ház? Hívd fel a hirdetőt most, és tudj meg mindent erről az eladó családi házról! Ha gondolod nézelődj tovább az eladó ház Kiskunlacháza oldal hirdetései között. Ennek az eladó háznak az ára 62900000 Ft és mivel az alapterülete 78 négyzetméter, ezért az átlagos négyzetméterára 806410 HUF/m2.
Az eladó házak menüpontban további hirdetések között is böngészhetsz. Ha van kedved, akkor böngészhetsz a Povenszki Kamilla összes hirdetése között, vagy akár a/az GDN Ingatlanhálózat összes hirdetése között is.

