- >>
- eladó ingatlanok
- >>
- eladó ház
- >>
- eladó ház Kiskunlacháza
- >>
Eladó átlagos állapotú ház - Kiskunlacháza
| | |||
| Kedvencnek jelölöm | Elküldöm emailben | Megosztás | Szavazás |
| FIX 3% lakáshitelre megvehető | |||
| 59 900 000 HUF | |||
Ingatlan adatai
- Eladó vagy kiadó:Eladó
- Település:Kiskunlacháza
- Kategória:Ház
- Alkategória:Családi ház
- Alapterület:121 m2
- Telekterület:850 m2
- Csere is:Nem
- Hirdető:Cég
- Élő videón megtekinthető:Nem
- Építés éve:1965
- Szobaszám:4
- Állapot:Átlagos állapotú
- Hány szintes az ingatlan:Földszintes
- Tetőtér:nincs megadva
- Komfortosság:nincs megadva
- Parkolási lehetőség:Garázsban
- Fűtés:Gáz (cirko)
- Bútorozottság:nincs megadva
- Fényviszony:Napfényes
- Tájolás:D
- Kilátás:nincs megadva
- Internet:nincs megadva
- Klíma:Van
- Akadálymentesített:Akadálymentesített
- Energiatanúsítvány:nincs megadva
- Villany:Van
- Víz:Van
- Gáz:Van
- Csatorna:Van
- Üzenetküldés
- Hívás

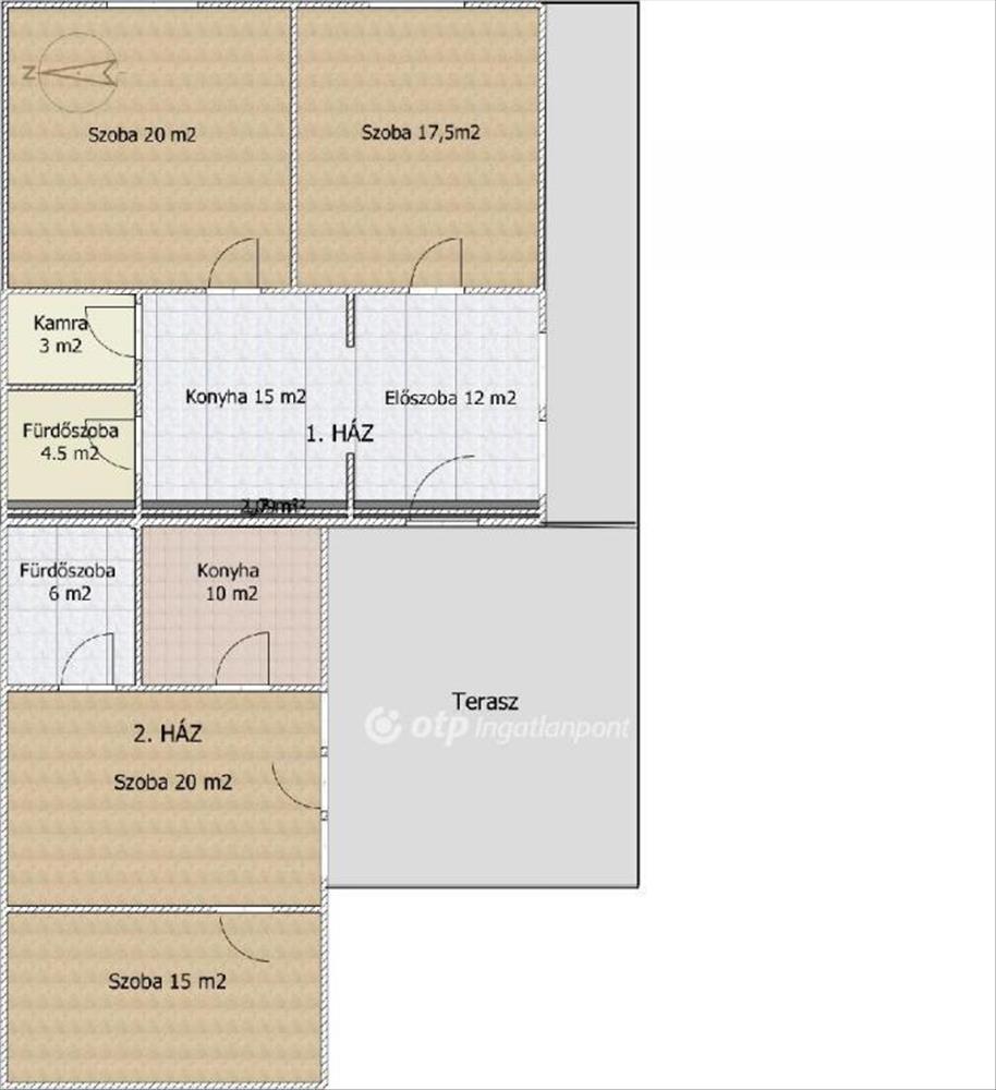
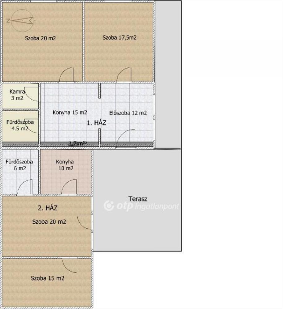
Referencia szám: M317486

Ingatlan hirdetés leírása
Eladó Ház, Kiskunlacháza
Pest vármegye, egyik legkedveltebb részén Kiskunlacházán, eladó egy 2 generációs, 850 m2-s telken lévő, téglaépítésű duplakomfortos 4 szobás összesen 121 m2-s családi ház. Az ingatlan jelenleg 2 házból áll amik egy ajtó beépítésével egybenyithatók. Az 1. Ház 72 m2-s kettő szobás átlagos állapotú. Fűtése konvektorokkal, hűtő-fűtővel és kandallóval megoldott. a 2 ház pár éve épült újnak mondható. Ez a lakrész 50 m2-s, 2 szobás kiváló állapotú. Ez utóbbi fűtéséről kombi-cirkó a hűtéséről hűtő-fűtő klíma gondoskodik. Az ingatlan H tarifával és ipari árammal is rendelkezik. a nappaliból kilépve jutunk ki a nagy méretű teraszra. Az udvarban található egy dupla beállós garázs és több tároló is. a környék infrastruktúrája nagyon jó. Minden ami számít pár perc sétával elérhető. Az OTP Ingatlanpont teljes körű ügyintézéssel áll az eladók és a vevők rendelkezésére! a kínálatunkból választott ingatlan finanszírozásához kedvezményes hitel- konstrukciókat kínálunk. Az adásvételi szerződés megkötéséhez igény szerint megbízható ügyvédi közreműködést biztosítunk, és segítséget nyújtunk az adásvételhez kapcsolódó ügyek intézéséhez. Kérdés, mutatás esetén hívjon bizalommal! Ref. Szám: M317486Referencia szám: m317486 FIX 3% lakáshitelre megvehető


