Eladó átlagos állapotú ház Kiskunlacháza
| Kedvencbe | Megosztás | Árfigyelő |
| FIX 3% lakáshitelre megvehető | ||
| 59 900 000 HUF | ||
Ingatlan adatai
- Eladó vagy kiadó:Eladó
- Település:Kiskunlacháza
- Kategória:Ház
- Alkategória:Családi ház
- Alapterület:121 m2
- Telekterület:850 m2
- Csere is:Nem
- Hirdető:Cég
- Élő videón megtekinthető:Nem
- Építés éve:1965
- Szobaszám:4
- Állapot:Átlagos állapotú
- Hány szintes az ingatlan:Földszintes
- Tetőtér:nincs megadva
- Komfortosság:nincs megadva
- Parkolási lehetőség:Udvaron
- Fűtés:Gáz (cirko)
- Bútorozottság:nincs megadva
- Fényviszony:Napfényes
- Tájolás:nincs megadva
- Kilátás:nincs megadva
- Internet:nincs megadva
- Klíma:Van
- Akadálymentesített:nincs megadva
- Energiatanúsítvány:nincs megadva
- Villany:Telken belül
- Víz:Telken belül
- Gáz:Telken belül
- Csatorna:nincs megadva
- Üzenetküldés
- Hívás

Referencia szám: M317486

Hitel ajánlat
Ingatlan hirdetés leírása
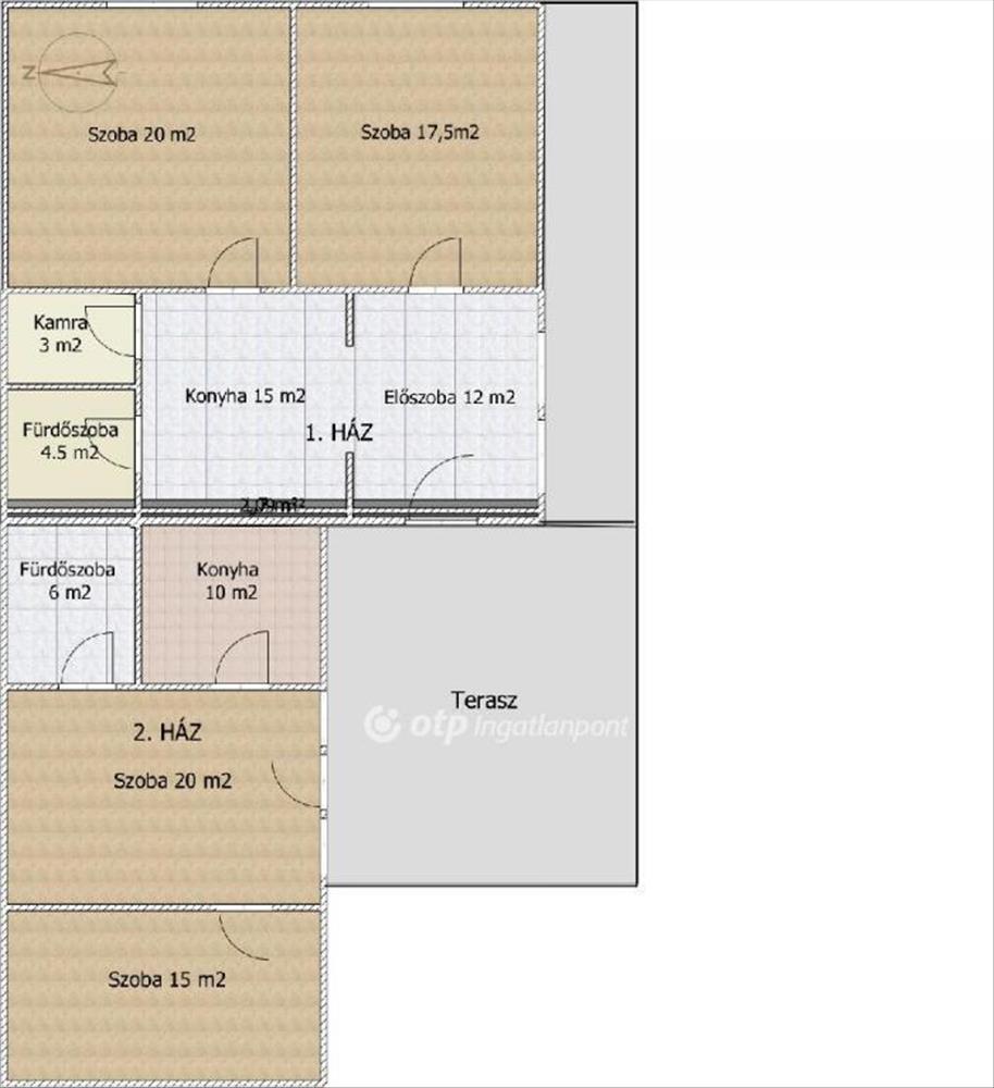
Eladó Ház, Kiskunlacháza
Pest vármegye, egyik legkedveltebb részén Kiskunlacházán, eladó egy 850 m2-s telken lévő, 2 generációs, téglaépítésű duplakomfortos 4 szobás összesen 121 m2-s családi ház. Az ingatlan jelenleg 2 házból áll amik egy ajtó beépítésével egybenyithatók. Az 1. Ház 72 m2-s kettő szobás átlagos állapotú. Fűtése konvektorokkal, hűtő-fűtővel és kandallóval megoldott. a 2 ház pár éve épült újnak mondható. Ez a lakrész 50 m2-s, 2 szobás kiváló állapotú. Ez utóbbi fűtéséről kombi-cirkó a hűtéséről hűtő-fűtő klíma gondoskodik. Az ingatlan H tarifával és ipari árammal is rendelkezik. a nappaliból kilépve jutunk ki a nagy méretű teraszra. Az udvarban található egy dupla beállós garázs és több tároló is. a környék infrastruktúrája nagyon jó. Minden ami számít pár perc sétával elérhető. Az OTP Ingatlanpont teljes körű ügyintézéssel áll az eladók és a vevők rendelkezésére! a kínálatunkból választott ingatlan finanszírozásához kedvezményes hitel- konstrukciókat kínálunk. Az adásvételi szerződés megkötéséhez igény szerint megbízható ügyvédi közreműködést biztosítunk, és segítséget nyújtunk az adásvételhez kapcsolódó ügyek intézéséhez. Kérdés, mutatás esetén hívjon bizalommal! Ref. Szám: M317486We can recommend the assistance of a reliable (English speaking) lawyer, if so requested and can also offer help at arranging the administrative matters related to the acquisition. If you wish to send an English language notification of your interest, please send a message thereof indicating your phone number (and/or e-mail address) so we can contact you without language difficulties.
Referencia szám: m317486 FIX 3% lakáshitelre megvehető

