Eladó új építésű ház - Kiskunlacháza
- INGYENES HIRDETÉS FELADÁS
Ingatlan adatai
- Eladó vagy kiadó:Eladó
- Település:Kiskunlacháza
- Kategória:Ház
- Alkategória:Családi ház
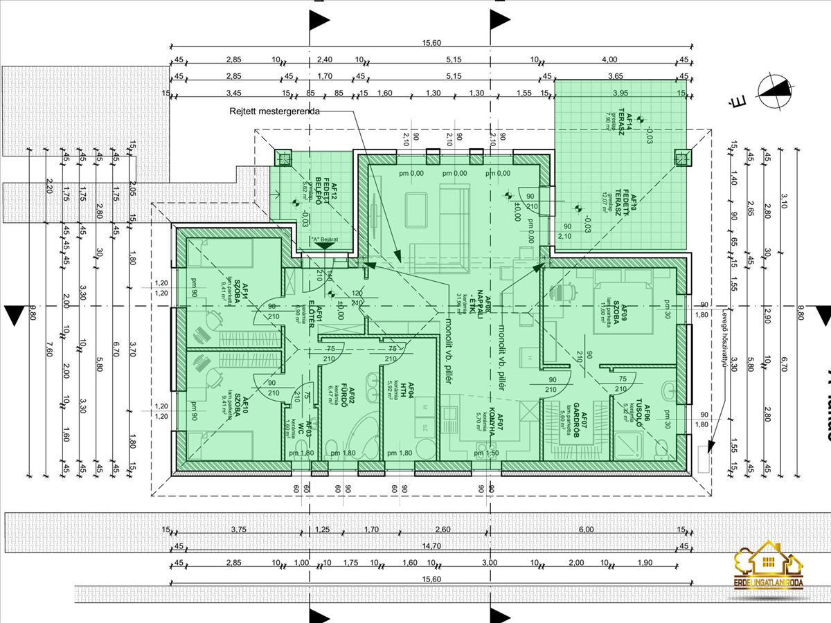
- Alapterület:100 m2
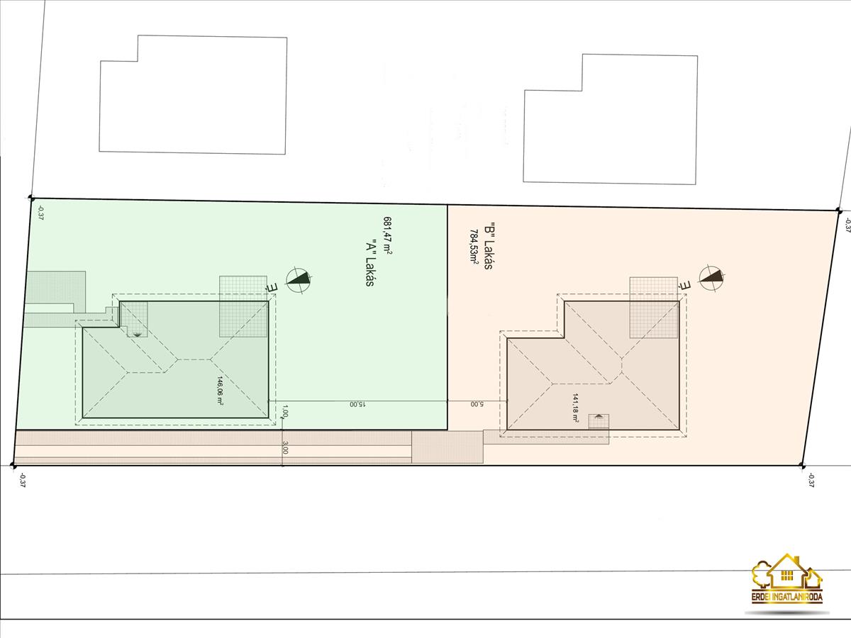
- Telekterület:681 m2
- Csere is:Nem
- Hirdető:Cég
- Élő videón megtekinthető:Nem
- Építés éve:2026
- Szobaszám:4 + 1 fél
- Állapot:Új építésű
- Hány szintes az ingatlan:Földszintes
- Tetőtér:Nem beépíthető
- Komfortosság:Dupla komfortos
- Pince:Nincs
- Parkolási lehetőség:Udvaron
- Fűtés:Hőszivattyús
- Bútorozottság:Bútorozatlan
- Fényviszony:Jó
- Tájolás:DK
- Kilátás:Utcai
- Internet:nincs megadva
- Klíma:Van
- Akadálymentesített:Nem akadálymentesített
- Energiatanúsítvány:A+
- Villany:Van
- Víz:Van
- Gáz:Utcában
- Csatorna:Van
- Kapcsolatfelvétel

Bicski Hajnalka
+36-(30)-701-0350
Mondd meg a hirdetőnek, hogy a megveszLAK-on találtad a hirdetést.
Referencia szám: 1231
Hitel ajánlatok
Ingatlan hirdetés leírása
Kiskunlacházán, új építésű, 3 hálószobás önálló családi ház!
Eladó Kiskunlacházán egy új építésű, nettó 100 m² alapterületű, egyszintes családi ház.
A lakás belső elrendezése rendkívül praktikus és kényelmes 3 hálószoba, gardrób, fürdőszoba, külön wc helyiség, háztartási helyiség és előszoba áll rendelkezésre. a tágas amerikai konyhás nappaliból egy 20 m²-es fedett teraszra jutunk.
A saját elkerített telek nagysága 681 m².
Az ingatlan 30-as téglából, 15 cm-es külső hőszigeteléssel, 25 cm-es födémszigeteléssel, 3 rétegű műanyag nyílászárókkal, betoncserép fedéssel épül.
Fűtését megújuló energiás, hőszivattyús rendszer biztosítja, padlófűtéses hőleadással. a meleg víz Ariston villanybojlerről üzemel. a lakás H-tarifás órával és 1x32 a teljesítményű villanyórával kerül átadásra.
Energetikai besorolása A+
A burkolatok igény szerint választhatók, 4 000 Ft/m²-ig.
Az ár tartalmazza az utcafronti díszkerítést, térkövezett járdát és kocsibeállót.
A helyi busz megállója, bevásárlási lehetőség, iskola 10 perc sétára található.
CSOK és 3 % -os Otthon Start hitel igényelhető!
Várható átadás: 2026 nyár
Bővebb információért keressen bizalommal! FIX 3% lakáshitelre megvehető
Tetszett ez az eladó Kiskunlacházai új építésű 4 egész és 1 fél szobás családi ház? Hívd fel a hirdetőt most, és tudj meg mindent erről az eladó családi házról! Ha gondolod nézelődj tovább az eladó ház Kiskunlacháza oldal hirdetései között. Ennek az eladó háznak az ára 92900000 Ft és mivel az alapterülete 100 négyzetméter, ezért az átlagos négyzetméterára 929000 HUF/m2.
Az eladó házak menüpontban további hirdetések között is böngészhetsz. Ha van kedved, akkor böngészhetsz a Bicski Hajnalka összes hirdetése között.

