Eladó új építésű ház - Kiskunlacháza
- INGYENES HIRDETÉS FELADÁS
Ingatlan adatai
- Eladó vagy kiadó:Eladó
- Település:Kiskunlacháza
- Kategória:Ház
- Alkategória:Családi ház
- Alapterület:99 m2
- Telekterület:502 m2
- Csere is:Nem
- Hirdető:Cég
- Élő videón megtekinthető:Nem
- Építés éve:2026
- Szobaszám:5
- Állapot:Új építésű
- Hány szintes az ingatlan:Földszintes
- Tetőtér:nincs megadva
- Komfortosság:nincs megadva
- Pince:nincs megadva
- Parkolási lehetőség:Beállóban
- Fűtés:nincs megadva
- Bútorozottság:nincs megadva
- Fényviszony:nincs megadva
- Tájolás:nincs megadva
- Kilátás:nincs megadva
- Internet:nincs megadva
- Klíma:nincs megadva
- Akadálymentesített:nincs megadva
- Energiatanúsítvány:nincs megadva
- Villany:Van
- Víz:Van
- Gáz:Utcában
- Csatorna:Van
- Kapcsolatfelvétel

Göbölyös Judit
+36-(70)-269-5029
Mondd meg a hirdetőnek, hogy a megveszLAK-on találtad a hirdetést.
Hitel ajánlatok
Ingatlan hirdetés leírása
Új építésű, önálló családi házak Kiskunlacházán! Nyugodt, cse...
Új építésű, önálló családi házak Kiskunlacházán!
Nyugodt, csendes környezetben kínálunk megvételre nettó 99 nm -es önálló családi házat 502 nm -es telken.
A ház paraméterei:
alapterülete: nettó 99 nm .
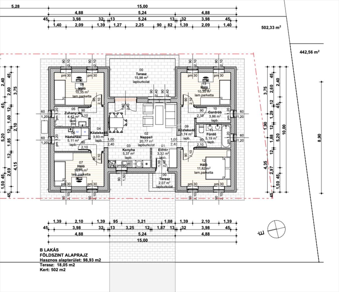
Beosztása:
- előtér 3, 32 nm ,
- nappali 20, 77 nm ,
- konyha 5, 37 nm ,
- fürdőszoba 5, 19 nm ,
- háztart. H 5, 11 nm ,
- közlekedő 3, 74 nm ,
- közlekedő 3, 93 nm ,
- szoba 10, 71 nm ,
- szoba 10, 35 nm ,
- szoba 11, 82 nm ,
- szoba 10, 35 nm ,
- gardrób 3, 86 nm ,
- zuhany+WC 4, 42 nm ,
- terasz 15, 98 nm ,
- terasz 2, 07 nm .
Műszaki paraméterek:
- 30-as Leier falazó blokk,
- 10-es Leier válaszfal tégla,
- 15 cm-es vtg Hungarocell szigetelés,
- műanyag fehér nyílászárók 3 rétegű üvegezés,
- Leier betoncserép,
- műanyag hőszigetelt bejárati ajtó ( fehér) 85. 000. -Ft értékben,
- hősszivattyús fűtés, padlófűtéssel,
- hideg- meleg burkolatok 5000 Ft/nm anyag értékben,
- utcafronton beton panel kerítés,
- ház körül betonjárda,
- egyéb kerítések fém oszlop drótfonattal,
- 1x 32 Amper 1 fázis, H tarifás óra,
Várható átadás: 2026 évvége.
A kivitelező referencia munkái megtekinthetőek.
Amivel segítjük az Ön ingatlan vásárlását:
- ingyenes hitelügyintézés (csok és Babaváró és egyéb hitel
ügyintézése is)
- jogi háttér,
- földhivatali ügyintézés,
- energetikai tanúsítvány ügyintézése,
- a vevő számára ingyenes az ingatlanközvetítés.
Irodánk 30 éves tapasztalattal áll ügyfelei rendelkezésére!
Várom szíves megkeresését! FIX 3% lakáshitelre megvehető
Tetszett ez az eladó Kiskunlacházai új építésű 5 szobás családi ház? Hívd fel a hirdetőt most, és tudj meg mindent erről az eladó családi házról! Ha gondolod nézelődj tovább az eladó ház Kiskunlacháza oldal hirdetései között. Ennek az eladó háznak az ára 84150000 Ft és mivel az alapterülete 99 négyzetméter, ezért az átlagos négyzetméterára 850000 HUF/m2.
Az eladó házak menüpontban további hirdetések között is böngészhetsz. Ha van kedved, akkor böngészhetsz a Göbölyös Judit összes hirdetése között, vagy akár a/az GDN Ingatlanhálózat összes hirdetése között is.

