Eladó átlagos állapotú ház - Kiskunlacháza
- INGYENES HIRDETÉS FELADÁS
Ingatlan adatai
- Feladva:72 napja a megveszLAK-on
- Eladó vagy kiadó:Eladó
- Település:Kiskunlacháza
- Kategória:Ház
- Alkategória:Családi ház
- Alapterület:121 m2
- Telekterület:850 m2
- Csere is:Nem
- Hirdető:Cég
- Élő videón megtekinthető:Nem
- Építés éve:1965
- Szobaszám:4
- Állapot:Átlagos állapotú
- Hány szintes az ingatlan:Földszintes
- Tetőtér:nincs megadva
- Komfortosság:nincs megadva
- Pince:nincs megadva
- Parkolási lehetőség:Udvaron
- Fűtés:Gáz (cirko)
- Bútorozottság:nincs megadva
- Fényviszony:Napfényes
- Tájolás:D
- Kilátás:nincs megadva
- Internet:nincs megadva
- Klíma:Van
- Akadálymentesített:nincs megadva
- Energiatanúsítvány:nincs megadva
- Villany:Van
- Víz:Van
- Gáz:Van
- Csatorna:Van
- Kapcsolatfelvétel

Szabó Viktor
+36-(20)-383-7253
Mondd meg a hirdetőnek, hogy a megveszLAK-on találtad a hirdetést.
Referencia szám: M317486
Hitel ajánlatok
Ingatlan hirdetés leírása
Eladó Ház, Kiskunlacháza
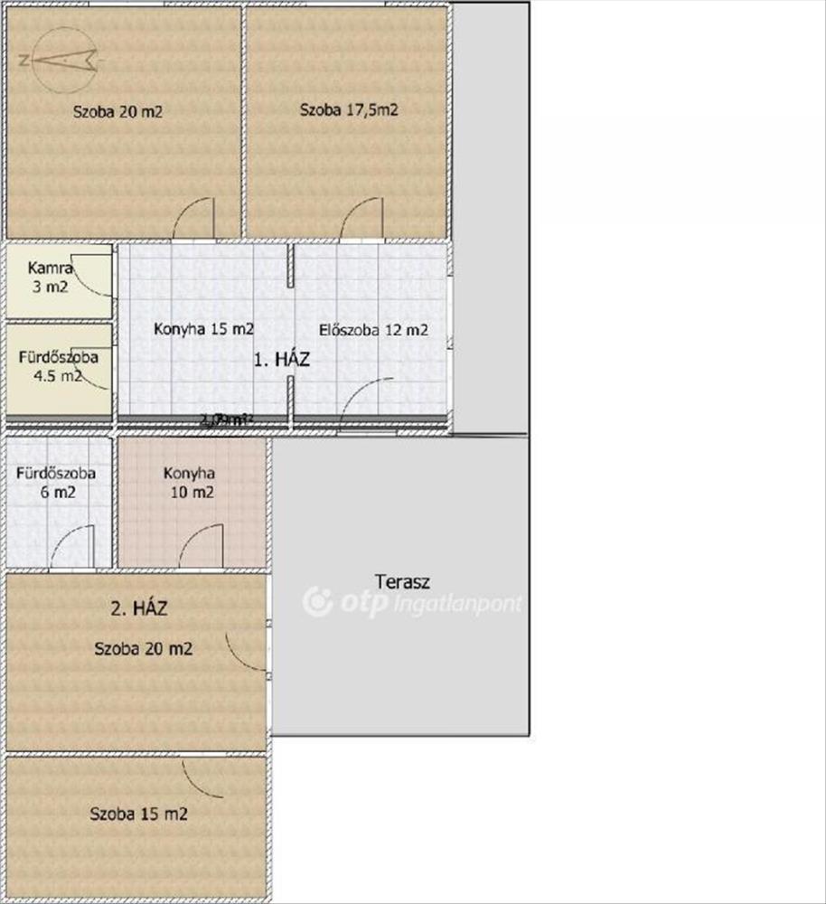
Pest vármegye, egyik legkedveltebb részén Kiskunlacházán, eladó egy 850 m2-s telken lévő, kétgenerációs, téglaépítésű duplakomfortos 4 szobás összesen 121 m2-s családi ház. Az ingatlan jelenleg 2 házból áll amik egy ajtó beépítésével egybenyithatók.
Az 1. Ház:
72 m2-s kettő szobás átlagos állapotú. Fűtése konvektorokkal, hűtő-fűtővel és kandallóval megoldott.
A 2. Ház pár éve épült újnak mondható.
Ez a lakrész 50 m2-s, 2 szobás kiváló állapotú. Ennek a fűtéséről kombi-cirkó, a hűtéséről hűtő-fűtő klíma gondoskodik.
Az ingatlan H tarifával és ipari árammal is rendelkezik.
Mind a két ház szigetelt de a színezésük az új tulajdonosra vár.
A nappaliból kilépve jutunk ki a nagy méretű teraszra.
Az udvarban található egy dupla beállós garázs és több tároló is.
A környék infrastruktúrája nagyon jó. Minden ami számít pár perc sétával elérhető.
*** Az ingatlannak még nem készült el sem az energetikai, sem a villamos biztonsági felülvizsgálata, amik az adádvételi szerződés dátumára készen lesznek!
Az OTP Ingatlanpont teljes körű ügyintézéssel áll az eladók és a vevők rendelkezésére! a kínálatunkból választott ingatlan finanszírozásához kedvezményes hitel- konstrukciókat kínálunk. Az adásvételi szerződés megkötéséhez igény szerint megbízható ügyvédi közreműködést biztosítunk, és segítséget nyújtunk az adásvételhez kapcsolódó ügyek intézéséhez. Kérdés, mutatás esetén hívjon bizalommal! Ref. Szám: m317486 FIX 3% lakáshitelre megvehető
Tetszett ez az eladó Kiskunlacházai átlagos állapotú 4 szobás családi ház? Hívd fel a hirdetőt most, és tudj meg mindent erről az eladó családi házról! Ha gondolod nézelődj tovább az eladó ház Kiskunlacháza oldal hirdetései között. Ennek az eladó háznak az ára 59900000 Ft és mivel az alapterülete 121 négyzetméter, ezért az átlagos négyzetméterára 495041 HUF/m2.
Az eladó házak menüpontban további hirdetések között is böngészhetsz. Ha van kedved, akkor böngészhetsz a Szabó Viktor összes hirdetése között, vagy akár a/az OTPip Dunaharaszti Bocskai utca 10 - OTP Ingatlanpont Iroda összes hirdetése között is.

