Eladó újszerű állapotú ház - Kisvárda
- INGYENES HIRDETÉS FELADÁS
Ingatlan adatai
- Eladó vagy kiadó:Eladó
- Település:Kisvárda
- Kategória:Ház
- Alkategória:Családi ház
- Alapterület:200 m2
- Telekterület:497 m2
- Csere is:Nem
- Hirdető:Cég
- Élő videón megtekinthető:Nem
- Építés éve:1982
- Szobaszám:2 + 1 fél
- Állapot:Újszerű, kitűnő
- Hány szintes az ingatlan:2 szintes
- Tetőtér:nincs megadva
- Komfortosság:nincs megadva
- Pince:nincs megadva
- Parkolási lehetőség:Teremgarázsban
- Fűtés:Gáz (cirko)
- Bútorozottság:nincs megadva
- Fényviszony:Jó
- Tájolás:nincs megadva
- Kilátás:nincs megadva
- Internet:nincs megadva
- Klíma:nincs megadva
- Akadálymentesített:nincs megadva
- Energiatanúsítvány:nincs megadva
- Villany:Telken belül
- Víz:Telken belül
- Gáz:Telken belül
- Csatorna:nincs megadva
- Kapcsolatfelvétel

Szivák Andrea
+36-(30)-598-1093
Mondd meg a hirdetőnek, hogy a megveszLAK-on találtad a hirdetést.
Referencia szám: M320217
Hitel ajánlatok
Ingatlan hirdetés leírása
Eladó Ház, Kisvárda, Eladó újszerű állapotú ház - Kisvárda
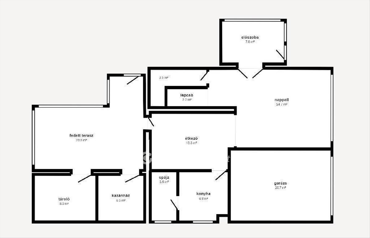
Kisvárda déli lakóövezetében eladó egy 3 szobás, 190 m2-es családi ház.
Az épület 1982-ben épült, szerkezete tégla, lapos tetős kivitelezéssel.
A ház homlokzatát 10 cm-es hőszigetelés védi, valamint lábazati szigetelést kapott.
A központi fűtést kondenzációs kombi gázkazán végzi, radiátor hőleadókkal. a meleg víz előállításáért egy 120 literes villanybojler felel.
A műanyag külső ajtók és ablakok kiváló minőségűek, többrétegű, hőszigetelt üveg betéttel, redőnnyel és szúnyoghálóval szereltek.
A ház mögött található egy fedett terasz, valamint onnan nyíló gépház és egy tároló helyiség is. Az 500 m2-es telken helyet kapott még egy filagória és egy szalonnasütő is.
További előnyök: 3 db hűtő-fűtő klíma, teremgarázs, riasztó és kamera rendszer.
Az ingatlan meglehetősen csendes, és jól megközelíthető területen helyezkedik el.
Pár száz méteren belül található bolt, posta, óvoda és kórház is.
Ideális lehet kis- és nagy családok számára.
Referencia szám: 320217
Pénzügyi tanácsadással, hitel ügyintézéssel (FalusiCSOK, CSOKPlusz, Babaváró, kedvezményes lakáshitel) segítjük ügyfeleinket, melyről részletes tájékoztatást adunk OTP Ingatlanpont, és OTP Pénzügyi Pont irodáinkban. FIX 3% lakáshitelre megvehető
Tetszett ez az eladó Kisvárdai újszerű állapotú 2 egész és 1 fél szobás családi ház? Hívd fel a hirdetőt most, és tudj meg mindent erről az eladó családi házról! Ha gondolod nézelődj tovább az eladó ház Kisvárda oldal hirdetései között. Ennek az eladó háznak az ára 65000000 Ft és mivel az alapterülete 200 négyzetméter, ezért az átlagos négyzetméterára 325000 HUF/m2.
Az eladó házak menüpontban további hirdetések között is böngészhetsz. Ha van kedved, akkor böngészhetsz a Szivák Andrea összes hirdetése között, vagy akár a/az OTPip Nyíregyháza Sólyom utca 4 - OTP Ingatlanpont Iroda összes hirdetése között is.

