Eladó jó állapotú ház - Kisvárda
- INGYENES HIRDETÉS FELADÁS
Ingatlan adatai
- Eladó vagy kiadó:Eladó
- Település:Kisvárda
- Kategória:Ház
- Alkategória:Családi ház
- Alapterület:96 m2
- Telekterület:1009 m2
- Csere is:Nem
- Hirdető:Cég
- Élő videón megtekinthető:Nem
- Építés éve:1970
- Szobaszám:3
- Állapot:Jó állapotú
- Hány szintes az ingatlan:Földszintes
- Tetőtér:nincs megadva
- Komfortosság:nincs megadva
- Pince:nincs megadva
- Parkolási lehetőség:Teremgarázsban
- Fűtés:Egyéb
- Bútorozottság:nincs megadva
- Fényviszony:Napfényes
- Tájolás:nincs megadva
- Kilátás:nincs megadva
- Internet:nincs megadva
- Klíma:nincs megadva
- Akadálymentesített:nincs megadva
- Energiatanúsítvány:nincs megadva
- Villany:nincs megadva
- Víz:nincs megadva
- Gáz:nincs megadva
- Csatorna:nincs megadva
- Kapcsolatfelvétel

Szücs-Hajdú Angelika
+36-(70)-262-4299
Mondd meg a hirdetőnek, hogy a megveszLAK-on találtad a hirdetést.
Referencia szám: M321175
Hitel ajánlatok
Ingatlan hirdetés leírása
Eladó Ház, Kisvárda, Eladó jó állapotú ház - Kisvárda
Eladó családi ház Kisvárda kedvelt részén!
Kisvárda csendes, lakó-pihenő övezetében kínálunk megvételre egy jól karbantartott családi házat. Az ingatlan vegyes falazatú (vályog és szilikát), stabil beton alappal. a tető 2 éve felújításra került, lemezfedéssel. a fűtést 3 éves kondenzációs gázkazán biztosítja.
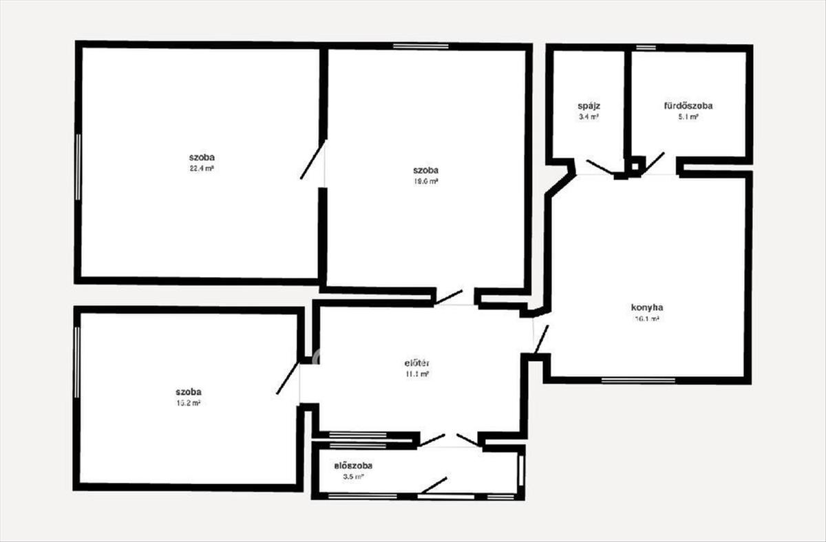
A ház 96, 4 nm alapterületű, elosztása praktikus és élhető. 3 Szoba, tágas előtér, konyha-étkező, fürdőszoba WC-vel és kézmosóval áll rendelkezésre.
Kamra, szélfogó és külön kazánház is található az ingatlanban. a telek mérete 1009 nm, amely bőséges teret kínál a mindennapokhoz.
Az udvaron egy 30 nm-es melléképület és egy garázs is helyet kapott.
Nyugodt környezet, jó elhelyezkedés, rendezett környék.
OTP Banki hátterünknek köszönhetően finanszírozási igényekben (pl. Otthon Start Hitelprogram, Babaváró, Falusi csok, CSOK Plusz, Lakáshitel, Személyi kölcsön stb. ), Illetve biztosítások tekintetében is díjmentesen, soron kívüli ügyintézéssel segítem ügyfeleim!
Érdeklődés esetén kérem hivatkozzon a következő referenciaszámra: M321175
https://my. Matterport. Com/show/? M=tkxzfhkhzp0iw8fr678zck4yd&views=0&mls=1
49900000 Ft
Referencia szám: m321175 FIX 3% lakáshitelre megvehető

