- >>
- eladó ingatlanok
- >>
- eladó ház
- >>
- eladó ház Kisvárda
- >>
Eladó átlagos állapotú ház - Kisvárda
| | |||
| Kedvencnek jelölöm | Elküldöm emailben | Megosztás | Szavazás |
| FIX 3% lakáshitelre megvehető | |||
| 15 500 000 HUF | |||
Ingatlan adatai
- Eladó vagy kiadó:Eladó
- Település:Kisvárda
- Kategória:Ház
- Alkategória:Családi ház
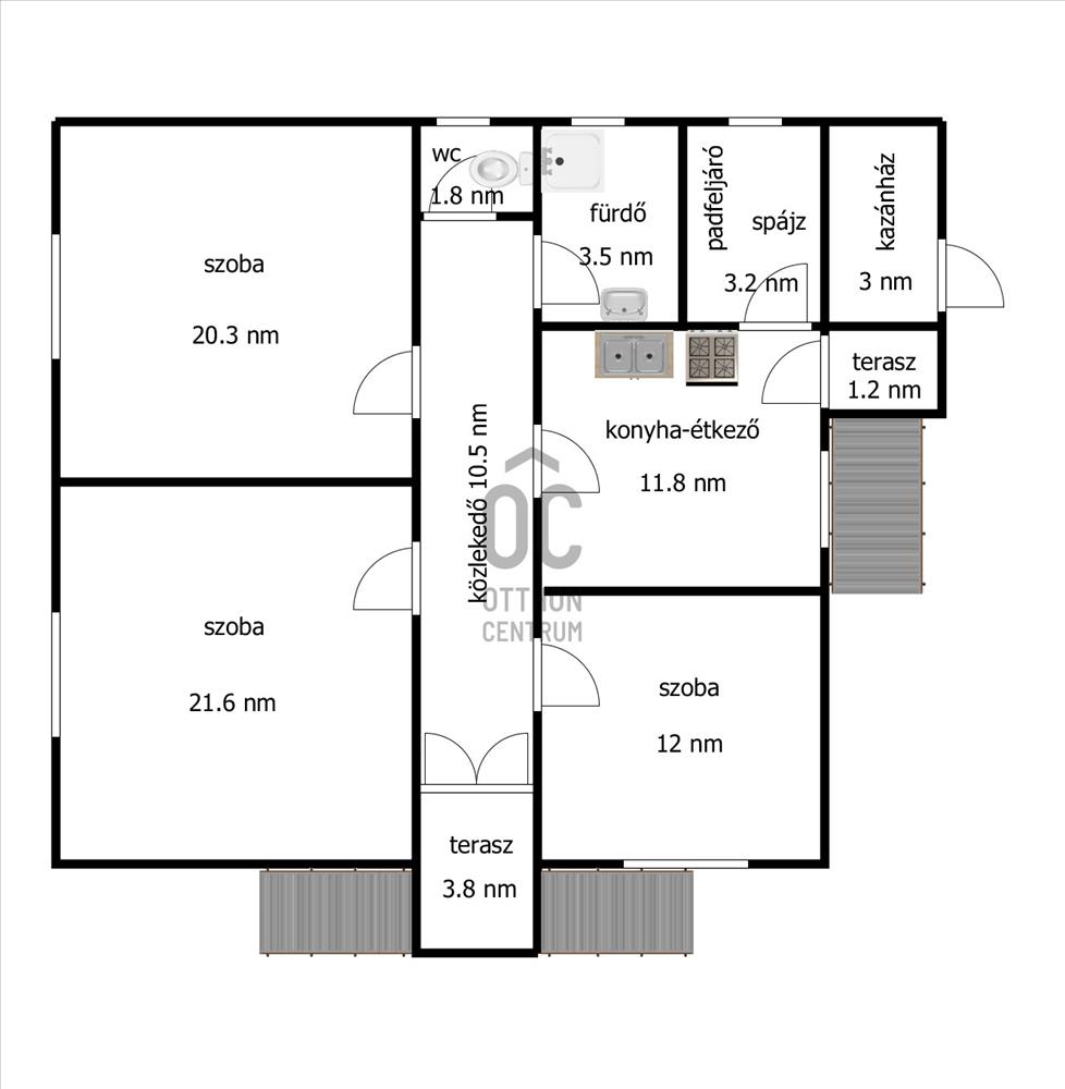
- Alapterület:100 m2
- Telekterület:989 m2
- Csere is:Nem
- Hirdető:Cég
- Élő videón megtekinthető:Nem
- Építés éve:1981
- Szobaszám:3
- Állapot:Átlagos állapotú
- Hány szintes az ingatlan:nincs megadva
- Tetőtér:nincs megadva
- Komfortosság:nincs megadva
- Parkolási lehetőség:nincs megadva
- Fűtés:nincs megadva
- Bútorozottság:nincs megadva
- Fényviszony:nincs megadva
- Tájolás:DK
- Kilátás:nincs megadva
- Internet:nincs megadva
- Akadálymentesített:nincs megadva
- Energiatanúsítvány:nincs megadva
- Villany:Van
- Víz:Van
- Gáz:Nincs
- Csatorna:Van
- Üzenetküldés
- Hívás


Ingatlan hirdetés leírása
Kisvárda csendes környékén, a kisállomás közelében kínálok ela...
Kisvárda csendes környékén, a kisállomás közelében kínálok eladásra egy 1982-ben téglából épült családi házat. Az ingatlan 3 szoba, konyha, közlekedő, fürdőszoba, wc, elosztású. Az Otthonmelegéről Központi fűtés rendszeren keresztül vegyes cirkó kazán gondoskodik, de lehelyezésre került 2 db cserépkályha is. Nyílászárói hagyományos fából készültek. Padló burkolta járólap és padlószőnyeg. Parkosítható udvarral, előkerttel és akár gazdálkodásra alkalmas kis konyhakerttel rendelkezik. Könnyen megközelíthető helyen található. Bővebb információért keressen telefonon, munkaidőben!Vevő Ügyfeleink részére, minden szolgáltatásunk intézése díjmentes!
Az ingatlanról készült videót megtekintheti :https://youtu.be/qjuG7fztMOg FIX 3% lakáshitelre megvehető


