Eladó jó állapotú ház - Kisvárda
- INGYENES HIRDETÉS FELADÁS
Ingatlan adatai
- Eladó vagy kiadó:Eladó
- Település:Kisvárda
- Kategória:Ház
- Alkategória:Családi ház
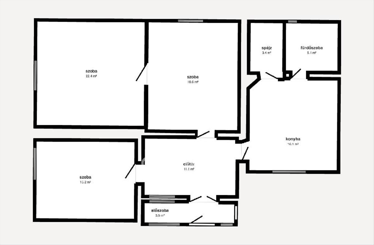
- Alapterület:96 m2
- Telekterület:1009 m2
- Csere is:Nem
- Hirdető:Cég
- Élő videón megtekinthető:Nem
- Építés éve:1970
- Szobaszám:3
- Állapot:Jó állapotú
- Hány szintes az ingatlan:Földszintes
- Tetőtér:nincs megadva
- Komfortosság:nincs megadva
- Pince:nincs megadva
- Parkolási lehetőség:Teremgarázsban
- Fűtés:Vegyes tüzelésű kazán
- Bútorozottság:nincs megadva
- Fényviszony:nincs megadva
- Tájolás:nincs megadva
- Kilátás:nincs megadva
- Internet:nincs megadva
- Klíma:nincs megadva
- Akadálymentesített:nincs megadva
- Energiatanúsítvány:nincs megadva
- Villany:nincs megadva
- Víz:nincs megadva
- Gáz:nincs megadva
- Csatorna:nincs megadva
- Kapcsolatfelvétel

Balázscsikné Hanzel Re...
+36-30-167-3181
Mondd meg a hirdetőnek, hogy a megveszLAK-on találtad a hirdetést.
Hitel ajánlatok
Ingatlan hirdetés leírása
Eladó családi ház Kisvárda kedvelt részén! Kisvárda csendes, ...
Eladó családi ház Kisvárda kedvelt részén!
Kisvárda csendes, lakó-pihenő övezetében kínálunk megvételre egy jól karbantartott családi házat. Az ingatlan vegyes falazatú (vályog és szilikát), stabil beton alappal. a tető 2 éve felújításra került, lemezfedéssel. a fűtést 3 éves kondenzációs gázkazán biztosítja.
A ház 96, 4 nm alapterületű, elosztása praktikus és élhető. 3 Szoba, tágas előtér, konyha-étkező, fürdőszoba WC-vel és kézmosóval áll rendelkezésre.
Kamra, szélfogó és külön kazánház is található az ingatlanban. a telek mérete 1009 nm , amely bőséges teret kínál a mindennapokhoz.
Az udvaron egy 30 nm -es melléképület és egy garázs is helyet kapott.
Nyugodt környezet, jó elhelyezkedés, rendezett környék.
OTP Banki hátterünknek köszönhetően finanszírozási igényekben (pl. Otthon Start Hitelprogram, Babaváró, Falusi csok, CSOK Plusz, Lakáshitel, Személyi kölcsön stb. ), Illetve biztosítások tekintetében is díjmentesen, soron kívüli ügyintézéssel segítem ügyfeleim!
Érdeklődés esetén kérem hivatkozzon a következő referenciaszámra: M321175
https://my. Matterport. Com/show/? M=tkxzfhkhzp0iw8fr678zck4yd&views=0&mls=1 FIX 3% lakáshitelre megvehető
Tetszett ez az eladó Kisvárdai jó állapotú 3 szobás családi ház? Hívd fel a hirdetőt most, és tudj meg mindent erről az eladó családi házról! Ha gondolod nézelődj tovább az eladó ház Kisvárda oldal hirdetései között. Ennek az eladó háznak az ára 49900000 Ft és mivel az alapterülete 96 négyzetméter, ezért az átlagos négyzetméterára 519792 HUF/m2.
Az eladó házak menüpontban további hirdetések között is böngészhetsz. Ha van kedved, akkor böngészhetsz a Balázscsikné Hanzel Renáta összes hirdetése között, vagy akár a/az Nyíregyháza Bocskai utca 18-20 - OTP Ingatlanpont Iroda összes hirdetése között is.

