Eladó átlagos állapotú ház - Kölcse
- INGYENES HIRDETÉS FELADÁS
Ingatlan adatai
- Eladó vagy kiadó:Eladó
- Település:Kölcse
- Kategória:Ház
- Alkategória:Családi ház
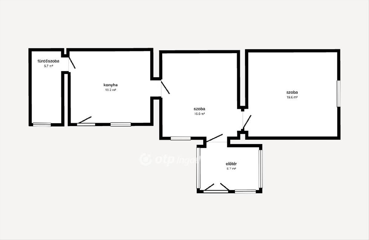
- Alapterület:63 m2
- Telekterület:2100 m2
- Csere is:Nem
- Hirdető:Cég
- Élő videón megtekinthető:Nem
- Építés éve:1969
- Szobaszám:2
- Állapot:Átlagos állapotú
- Hány szintes az ingatlan:nincs megadva
- Tetőtér:nincs megadva
- Komfortosság:nincs megadva
- Pince:nincs megadva
- Parkolási lehetőség:Utcán
- Fűtés:Gáz (konvektor)
- Bútorozottság:nincs megadva
- Fényviszony:nincs megadva
- Tájolás:nincs megadva
- Kilátás:nincs megadva
- Internet:nincs megadva
- Klíma:nincs megadva
- Akadálymentesített:nincs megadva
- Energiatanúsítvány:nincs megadva
- Villany:nincs megadva
- Víz:nincs megadva
- Gáz:nincs megadva
- Csatorna:nincs megadva
- Kapcsolatfelvétel

Kiszely Valéria Erzsébet
+36-20-279-4535
Mondd meg a hirdetőnek, hogy a megveszLAK-on találtad a hirdetést.
Hitel ajánlatok
Ingatlan hirdetés leírása
ÁLLJON MEG EGY PILLANATRA , HA ÖN EGY SOKOLDALÚAN KIHASZNÁLHAT...
Álljon meg egy pillanatra, ha ön egy sokoldalúan kihasználható parasztházat KERES!
Kölcse frekventált, mégis csendes részén kínálunk megvételre egy közel 65 m? -Es, belső felújításon átesett, kétszobás parasztházat, amely egy 2100 m? -Es, gazdálkodásra is kiválóan alkalmas telken helyezkedik el.
A házról
Az ingatlan belső tere modern, esztétikus burkolatokat kapott, a gondosan kialakított gipszkarton mennyezet pedig kellemes térérzetet és letisztult megjelenést biztosít. Az otthon melegéről gázkonvektor gondoskodik.
A külső homlokzat jelenleg az új tulajdonos elképzeléseire vár? Egy ízléses felújítással ez a ház valódi kis ékszerdobozzá varázsolható, amely kívül-belül harmonikus, szerethető otthonná válik.
Tágas telek? Számtalan lehetőség
A 2100 Nm-es terület ideális:
veteményes kialakítására
gyümölcsfák telepítésére
kisebb gazdálkodásra
önellátó életforma megvalósítására
A melléképület tovább növeli a praktikusságot.
Befektetésnek is tökéletes választás
Kölcse frekventált település, amely a természetközeli környezet és a nyugodt vidéki hangulat miatt egyre vonzóbb. Ez az ingatlan nemcsak otthonnak ideális, hanem vendégháznak vagy falusi turizmus céljára is kiválóan hasznosítható.
A felújított belső tér azonnal használható, a nagy telek értékálló befektetés, a külső homlokzat megújításával pedig egy igazán különleges, karakteres ingatlan hozható létre? Amely hosszú távon is megtérülhet.
Ez a ház egyszerre kínál nyugalmat, lehetőséget és jövőt.
Közösség és nyugalom
Az utca rendezett, csendes, a szomszédok kedvesek, segítőkészek? Igazi, összetartó vidéki közösség jellemzi a környezetet. Itt még számít a jó szomszédi viszony, ami nagy érték a mai világban.
Érdeklődjön bizalommal? És fedezze fel, hogyan válhat ebből az ingatlanból az Ön saját kis ékszerdoboza vagy sikeres befektetése.
Az ilyen adottságokkal rendelkező ingatlanok nem maradnak sokáig a piacon? Gyorsan gazdára találnak.
Ha Ön is egy ilyen hangulatos, lehetőségekkel teli házra vágyik, ne várjon túl sokáig!
Ha nem csupán házat keres, hanem jövőben gondolkodik, ezt az ingatlant érdemes komolyan számításba venni.
Találja meg benne a saját nyugalmát, az új otthonát.
Engedje, hogy ez a ház az Ön történetének része legyen.
Amennyiben hitelre van szüksége, ingyenes előbírálatot készítek, soron kívül, rugalmas időbeosztással, az Ön időbeosztásához igazodva!
Ne hagyja ki ezt a remek lehetőséget keressen bizalommal további információért vagy időpont egyeztetésért!
OTP Banki hátterünknek köszönhetően finanszírozási igényekben (pl. Otthon Start Hitelprogram, Babaváró, Lakáshitel, Személyi kölcsön stb. ), Díjmentesen, soron kívüli ügyintézéssel segítem ügyfeleim!
Https://my. Matterport. Com/show/? M=ry9m7030whnu2ugbc449f5iyb&views=0&mls=1
REFERENCIASZÁM:M322968 FIX 3% lakáshitelre megvehető
Tetszett ez az eladó Kölcsei átlagos állapotú 2 szobás családi ház? Hívd fel a hirdetőt most, és tudj meg mindent erről az eladó családi házról! Ha gondolod nézelődj tovább az eladó ház Kölcse oldal hirdetései között. Ennek az eladó háznak az ára 12850000 Ft és mivel az alapterülete 63 négyzetméter, ezért az átlagos négyzetméterára 203968 HUF/m2.
Az eladó házak menüpontban további hirdetések között is böngészhetsz. Ha van kedved, akkor böngészhetsz a Kiszely Valéria Erzsébet összes hirdetése között, vagy akár a/az Nyíregyháza Bocskai utca 18-20 - OTP Ingatlanpont Iroda összes hirdetése között is.

