- >>
- eladó ingatlanok
- >>
- eladó ház
- >>
- eladó ház Komló
- >>
Eladó jó állapotú ház - Komló
| | |||
| Kedvencnek jelölöm | Elküldöm emailben | Megosztás | Szavazás |
| FIX 3% lakáshitelre megvehető | |||
| 80 000 000 HUF | |||
Ingatlan adatai
- Eladó vagy kiadó:Eladó
- Település:Komló
- Kategória:Ház
- Alkategória:Családi ház
- Alapterület:280 m2
- Telekterület:1109 m2
- Csere is:Nem
- Hirdető:Cég
- Élő videón megtekinthető:Nem
- Építés éve:1990
- Szobaszám:6
- Állapot:Jó állapotú
- Hány szintes az ingatlan:3 szintes
- Tetőtér:nincs megadva
- Komfortosság:nincs megadva
- Parkolási lehetőség:Teremgarázsban
- Fűtés:Távfűtés egyedi mérővel
- Bútorozottság:nincs megadva
- Fényviszony:Napfényes
- Tájolás:nincs megadva
- Kilátás:nincs megadva
- Internet:nincs megadva
- Akadálymentesített:nincs megadva
- Energiatanúsítvány:C
- Villany:nincs megadva
- Víz:nincs megadva
- Gáz:nincs megadva
- Csatorna:nincs megadva
- Üzenetküldés
- Hívás

Referencia szám: M312494

Hitel ajánlat
Ingatlan hirdetés leírása
Eladó Ház, Komló, Eladó jó állapotú ház - Komló
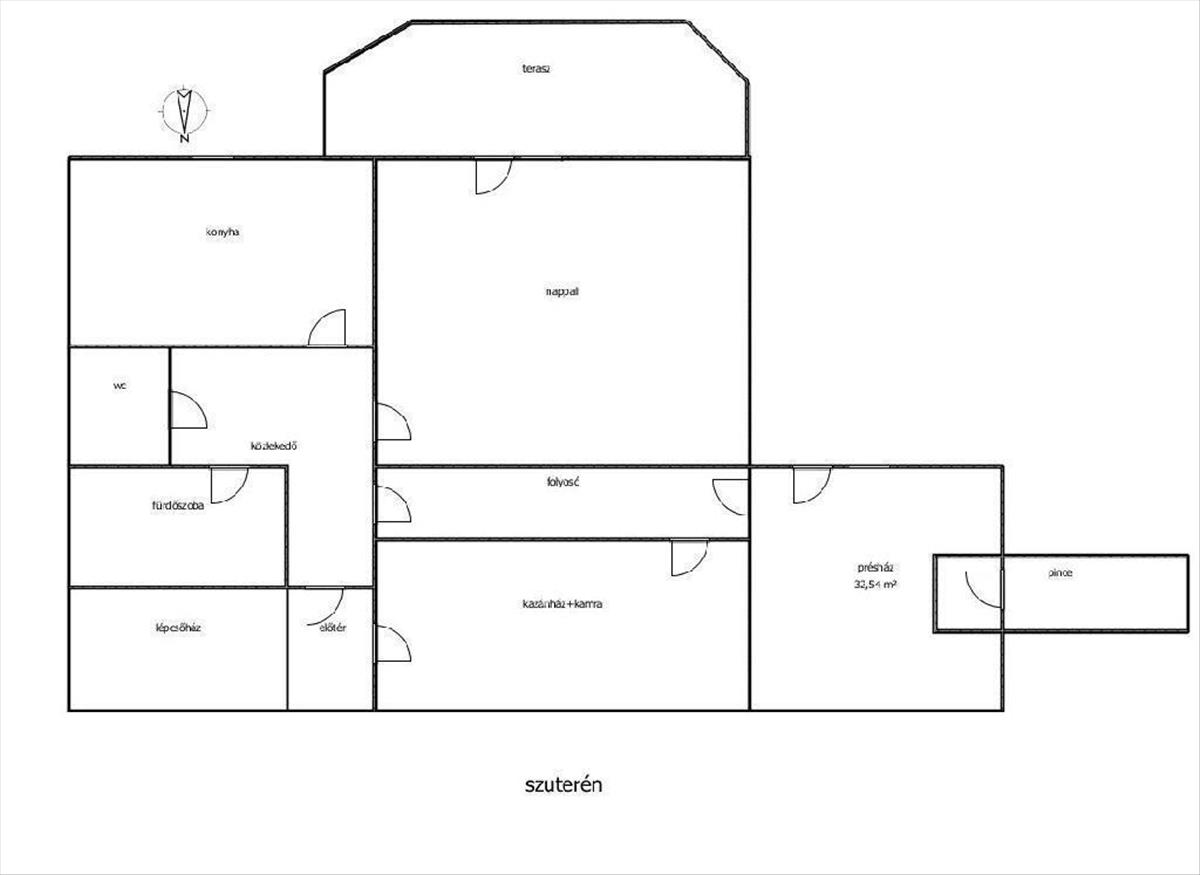
Örök panorámás 3 szintes ház eladó komlón a Szilvási városrészben.3 Nappali, 3 hálószoba, 3 konyha, 3 fürdőszoba, 3 Wc, 4 terasz, 1 garázs, (távirányítású ajtóval), 1 présház, 1 pince tartozik hozzá.
336 Négyzetméter lakórésszel, és 1109 négyzetméter enyhén lejtős bekerített telek tartozik hozzá.
1190-Ben épült téglából. Egy ikerház egyik fele, ami nincs összeépítve a szomszéddal.
Az alsó szint kívülről is megközelíthető, így alkalmas irodának, magánrendelőnek, vállalkozásnak. a ház szigetelése megfelelő, nyílászárói fa-műanyag ablakok, fűtése távfűtés valamint a földszinti nappaliban nagyon szép épített cserépkályha található.
Igény esetén teljesen berendezéssel együtt eladó.
Referenciaszám: M312494
Referencia szám: m312494 FIX 3% lakáshitelre megvehető

