Eladó felújítandó ház Kömörő
| Kedvencbe | Megosztás | Árfigyelő |
| FIX 3% lakáshitelre megvehető | ||
| 13 000 000 HUF | ||
Ingatlan adatai
- Eladó vagy kiadó:Eladó
- Település:Kömörő
- Kategória:Ház
- Alkategória:Családi ház
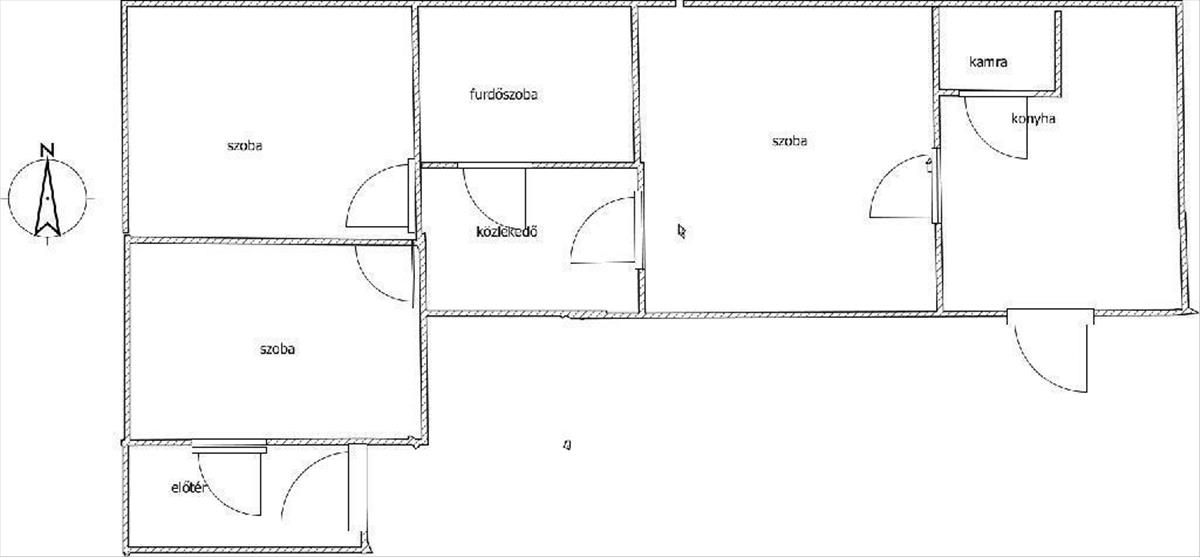
- Alapterület:93 m2
- Telekterület:3093 m2
- Csere is:Nem
- Hirdető:Cég
- Élő videón megtekinthető:Nem
- Építés éve:1979
- Szobaszám:2 + 1 fél
- Állapot:Felújítandó
- Hány szintes az ingatlan:Földszintes
- Tetőtér:nincs megadva
- Komfortosság:nincs megadva
- Parkolási lehetőség:Udvaron
- Fűtés:Egyéb
- Bútorozottság:nincs megadva
- Fényviszony:Jó
- Tájolás:nincs megadva
- Kilátás:nincs megadva
- Internet:nincs megadva
- Akadálymentesített:nincs megadva
- Energiatanúsítvány:nincs megadva
- Villany:nincs megadva
- Víz:nincs megadva
- Gáz:nincs megadva
- Csatorna:nincs megadva
- Üzenetküldés
- Hívás

Referencia szám: M319239

Hitel ajánlat
Ingatlan hirdetés leírása
Eladó Ház, Kömörő, Eladó felújítandó ház - Kömörő
Kömörő – 2+1 szobás, felújítandó családi ház eladó (Szabolcs-Szatmár-Bereg megye)2+1 szoba – felújítandó állapot
Kömörő főutcáján, csendes környezetben
Kialakított fürdőszoba
Tágas telek, kertkapcsolat
Új lemezkerítés – biztonság és privát szféra
Szolid ár – elérhető belépő saját házhoz vagy befektetéshez
Ideális választás:
Családoknak – saját ízlés szerint kialakítható otthon
Befektetőknek – felújítás után kiadásra vagy továbbértékesítésre
Első lakás vásárlóknak – nyugodt, jól megközelíthető környezetben
Nyugdíjasoknak, vidéki életre vágyóknak – csendes, központi elhelyezkedés
Finanszírozás:
Otthon Start Hitelprogram
Babaváró
CSOK Plusz
Lakáshitel, személyi kölcsön
Díjmentes, soron kívüli ügyintézés banki háttérrel
Referencia szám: M319239
Érdeklődni:
Novák Norbert
Tel: 0670/408-6543
Email: norbert. Novak@otpip. Hu
De. 09:00 - Du. 16:00
Referencia szám: m319239 FIX 3% lakáshitelre megvehető

