Eladó átlagos állapotú ház - Kondoros
- INGYENES HIRDETÉS FELADÁS
Ingatlan adatai
- Feladva:85 napja a megveszLAK-on
- Eladó vagy kiadó:Eladó
- Település:Kondoros
- Kategória:Ház
- Alkategória:Családi ház
- Alapterület:150 m2
- Telekterület:887 m2
- Csere is:Nem
- Hirdető:Cég
- Élő videón megtekinthető:Nem
- Építés éve:1989
- Szobaszám:4
- Állapot:Átlagos állapotú
- Hány szintes az ingatlan:nincs megadva
- Tetőtér:nincs megadva
- Komfortosság:Összkomfortos
- Pince:Nincs
- Parkolási lehetőség:Garázsban
- Fűtés:Gáz (cirko)
- Bútorozottság:nincs megadva
- Fényviszony:nincs megadva
- Tájolás:nincs megadva
- Kilátás:nincs megadva
- Internet:nincs megadva
- Klíma:nincs megadva
- Akadálymentesített:nincs megadva
- Energiatanúsítvány:nincs megadva
- Villany:Van
- Víz:Van
- Gáz:Van
- Csatorna:Van
- Kapcsolatfelvétel

Dosa Lajos
+36-(30)-967-9813
Mondd meg a hirdetőnek, hogy a megveszLAK-on találtad a hirdetést.
Hitel ajánlatok
Ingatlan hirdetés leírása
Eladó Családi ház, Kondoros, 150nm, 25000000 Ft
Négyszobás, étkezős családi ház Kondoroson ELADÓ
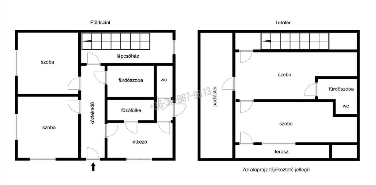
Kondoroson kínálunk eladásra egy tégla falazatú négy szobás, étkezős, két fürdőszobás, szerkezetileg jó állapotú, 150 m2-es családi házat. Az ingatlan egyedi igény szerinti műszaki és esztétikai felújítást igényel.
110 m2-es földszinti rész helyiségei: két szoba, közlekedő, kádas fürdőszoba, étkező, főzőfülke, kamra, lépcsőház, külön helyiségben lévő wc, nyári konyha, kazánház.
A 40 m2-es tetőtéri rész helyiségei: két szoba (az egyik erkélyes), tusolós fürdőszoba + WC.
Műszaki jellemzők: építés éve 1989, beton alap, beton lábazat, tégla falazat, fa nyílászárók, cirkófűtés (gázkazán) lapradiátoros hőleadók, meleg víz ellátás villanybojlerrel biztosított.
A 887 m2-es telken található a főépülethez szorosan kapcsolódó tégla falazatú melléképületben tárolók, 25 m2-es garázs és egy 90 m2-es, műhelyként funkcionált helyiség kapott helyet.
A családi ház mérete alapján nagyobb család vagy két generáció részére is megfelelő lehet. Falusi CSOK igénybe vehető.
Irányár: 25 MFt. T: 30-9679-813 FIX 3% lakáshitelre megvehető
Tetszett ez az eladó Kondorosi átlagos állapotú 4 szobás családi ház? Hívd fel a hirdetőt most, és tudj meg mindent erről az eladó családi házról! Ha gondolod nézelődj tovább az eladó ház Kondoros oldal hirdetései között. Ennek az eladó háznak az ára 25000000 Ft és mivel az alapterülete 150 négyzetméter, ezért az átlagos négyzetméterára 166667 HUF/m2.
Az eladó házak menüpontban további hirdetések között is böngészhetsz. Ha van kedved, akkor böngészhetsz a Dosa Lajos összes hirdetése között.

