Eladó jó állapotú ház - Kőszegszerdahely
- INGYENES HIRDETÉS FELADÁS
Ingatlan adatai
- Eladó vagy kiadó:Eladó
- Település:Kőszegszerdahely
- Kategória:Ház
- Alkategória:Családi ház
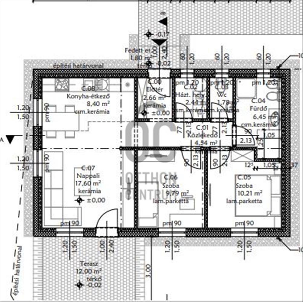
- Alapterület:85 m2
- Telekterület:385 m2
- Csere is:Nem
- Hirdető:Cég
- Élő videón megtekinthető:Nem
- Építés éve:2023
- Szobaszám:3
- Állapot:Jó állapotú
- Hány szintes az ingatlan:nincs megadva
- Tetőtér:nincs megadva
- Komfortosság:nincs megadva
- Pince:nincs megadva
- Parkolási lehetőség:nincs megadva
- Fűtés:Elektromos
- Bútorozottság:nincs megadva
- Fényviszony:nincs megadva
- Tájolás:DNY
- Kilátás:nincs megadva
- Internet:nincs megadva
- Klíma:nincs megadva
- Akadálymentesített:nincs megadva
- Energiatanúsítvány:nincs megadva
- Villany:Van
- Víz:Van
- Gáz:Nincs
- Csatorna:Van
- Kapcsolatfelvétel

Tóth Éva
+36-(70)-412-5241
Mondd meg a hirdetőnek, hogy a megveszLAK-on találtad a hirdetést.
Ingatlan hirdetés leírása
Fedezze fel álmai otthonát Vas vármegye szívében, Kőszegszerda...
Fedezze fel álmai otthonát Vas vármegye szívében, Kőszegszerdahely csendes, mégis élénk környezetében! Ez a kivételes, 2023-ban épült fém vázas könnyűszerkezetes ingatlan tökéletes választás fiatal felnőttek számára, akik egy kényelmes és modern otthonra vágynak, vagy akár befektetési céllal keresnek lehetőséget. a ház alapterülete 77 nm, amely 2 háló szobát kínál, ideális teret biztosítva a mindennapi élethez. Az amerikai konyhás nappali kellő teret ad egy családi összejövetelekre. Az ingatlan állapota jó, a prémium kivitelezés pedig garantálja a hosszú távú elégedettséget. a 385 nm-es telek rendezett kerttel rendelkezik, ahol a természet közelsége és a vízparti élmények garantáltak. a 12 nm-es terasz tökéletes helyszín a pihenésre, egy pohár bor mellett eltöltött estékre, miközben a környék panorámáját élvezheti. Az ingatlan fűtése elektromos infrafilm padlófűtés rendszerrel megoldott, amely környezetbarát megoldást is kínál. Nyílászárók hő és hangszigeteltek, elektromos redőnnyel szúnyoghálóval szereltek. Az ingatlan tehermentes, így azonnal birtokba vehető, és Falusi Csok kompatibilis, ami lehetőséget biztosít a kedvezményes állami támogatások igénybevételére. Kőszegszerdahely nem csupán egy nyugodt település, hanem kiváló közlekedési lehetőségekkel is rendelkezik. a közeli városok és az osztrák határ könnyen elérhetők autóval, tömegközlekedéssel. a környék biztonságos, csendes, ideális választás családok, fiatal párok és idősebbek számára egyaránt. Ne habozzon, ha bármilyen kérdése van az ingatlannal kapcsolatban, bizalommal kereshet minket! Szívesen válaszolunk minden felmerülő kérdésére, és segítünk Önnek abban, hogy megtalálja a tökéletes otthont vagy befektetési lehetőséget. Kérjük, ne késlekedjen, hiszen az ilyen lehetőségek gyorsan elkelnek! FIX 3% lakáshitelre megvehető


