- >>
- eladó ingatlanok
- >>
- eladó ház
- >>
- eladó ház Kunágota
- >>
Eladó átlagos állapotú ház - Kunágota
| | |||
| Kedvencnek jelölöm | Elküldöm emailben | Megosztás | Szavazás |
| FIX 3% lakáshitelre megvehető | |||
| 13 200 000 HUF | |||
Ingatlan adatai
- Eladó vagy kiadó:Eladó
- Település:Kunágota
- Kategória:Ház
- Alkategória:Családi ház
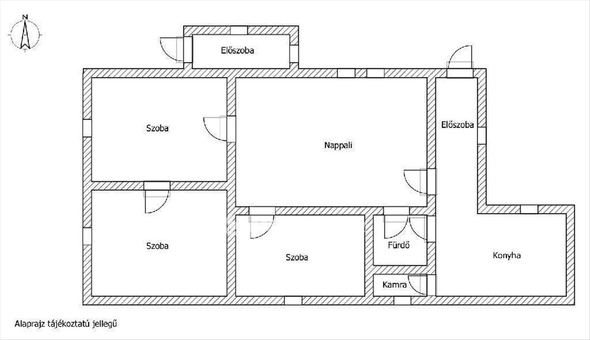
- Alapterület:115 m2
- Telekterület:2089 m2
- Csere is:Nem
- Hirdető:Cég
- Élő videón megtekinthető:Nem
- Építés éve:1950
- Szobaszám:4
- Állapot:Átlagos állapotú
- Hány szintes az ingatlan:Földszintes
- Tetőtér:nincs megadva
- Komfortosság:nincs megadva
- Parkolási lehetőség:Udvaron
- Fűtés:Gáz (cirko)
- Bútorozottság:nincs megadva
- Fényviszony:Jó
- Tájolás:nincs megadva
- Kilátás:nincs megadva
- Internet:nincs megadva
- Akadálymentesített:nincs megadva
- Energiatanúsítvány:nincs megadva
- Villany:nincs megadva
- Víz:nincs megadva
- Gáz:nincs megadva
- Csatorna:nincs megadva
- Üzenetküldés
- Hívás

Arnoth-Kuczora Eszter
Mondd meg a hirdetőnek, hogy a megveszLAK-on találtad a hirdetést.
Referencia szám: M307699

Hitel ajánlat
Ingatlan hirdetés leírása
Eladó Ház, Kunágota, Eladó átlagos állapotú ház - Kunágota
Tágas otthon Kunágotán nagy telekkel, tehermentes, azonnal költözhető! Ha vidéki nyugalomra vágyik, ez az ingatlan Önre vár! Eladásra kínálunk, Békés vármegyébe, egy 115 nm-es családi házat Kunágotán, csendes utcában, a központhoz közel. a tágas, 2089 nm-es telek számos lehetőséget rejt magában. a melléképületben nyárikonyha, több tárolóhelyiség, garázs, valamint állattartásra kialakított disznóólak és tyúkólak, disznóvágásra alkalmas terek találhatóak. a telek másik felében, gyümölcsfák vannak, kertészkedésre, gazdálkodásra tökéletesen alkalmas. a ház három szobával, nappalival, konyhával, fürdőszobával, kamrával és két előszobával rendelkezik, így ideális lehet nagyobb családok számára is. a mindennapok kényelméről gázkazános fűtés, bojleres meleg víz és klíma gondoskodik, így télen-nyáron kellemes hőmérséklet várja. Az ingatlan költözhető állapotú, csupán egy tisztasági festés után máris új élet költözhet a falak közé. Ráadásul tehermentes és hitelezhető, így akár azonnal belevághat új otthona megteremtésébe. Ha Ön is érzi, hogy ez lehet az a hely, ahol igazán otthonra találhat, hívjon bizalommal! Az OTP Ingatlanpont a banki háttérrel eladóink, és vevőink igényeit teljeskörűen ki tudja szolgálni, az eladástól a vevői finanszírozásig és az ingatlan birtokbaadásáig. Hitel igénylés esetén akár egyedi kamatkedvezménnyel, jogosultság esetén az állami támogatásokhoz kapcsolódó felvilágosítással, teljeskörű pénzügyi tanácsadással és ügyintézéssel állunk ügyfeleink rendelkezésére. a pénzügyi tanácsadás és ügyintézői szolgáltatásunk díjmentes. ***Válasszuk ki együtt az önnek legmegfelelőbb ajánlatot! Banki sorban állás nélkül! ***Referencia szám: m307699-ml FIX 3% lakáshitelre megvehető

