- >>
- eladó ingatlanok
- >>
- eladó ház
- >>
- eladó ház Leányfalu
- >>
Eladó új építésű ház - Leányfalu
| | |||
| Kedvencnek jelölöm | Elküldöm emailben | Megosztás | Szavazás |
| FIX 3% lakáshitelre megvehető | |||
| 119 000 000 HUF | |||
Ingatlan adatai
- Eladó vagy kiadó:Eladó
- Település:Leányfalu
- Kategória:Ház
- Alkategória:Családi ház
- Alapterület:124 m2
- Telekterület:587 m2
- Csere is:Nem
- Hirdető:Cég
- Élő videón megtekinthető:Nem
- Építés éve:2025
- Szobaszám:5
- Állapot:Új építésű
- Hány szintes az ingatlan:nincs megadva
- Tetőtér:nincs megadva
- Komfortosság:nincs megadva
- Parkolási lehetőség:Beállóban
- Fűtés:nincs megadva
- Bútorozottság:nincs megadva
- Fényviszony:nincs megadva
- Tájolás:nincs megadva
- Kilátás:Panorámás
- Internet:nincs megadva
- Klíma:Van
- Akadálymentesített:nincs megadva
- Energiatanúsítvány:nincs megadva
- Villany:Van
- Víz:Van
- Gáz:Van
- Csatorna:Van
- Üzenetküldés
- Hívás


Hitel ajánlat
Ingatlan hirdetés leírása
ELADÓ CSALÁDI HÁZ SZENTENDRE LEÁNYFALU ÚJÉPÍTÉSŰ PANORÁMA
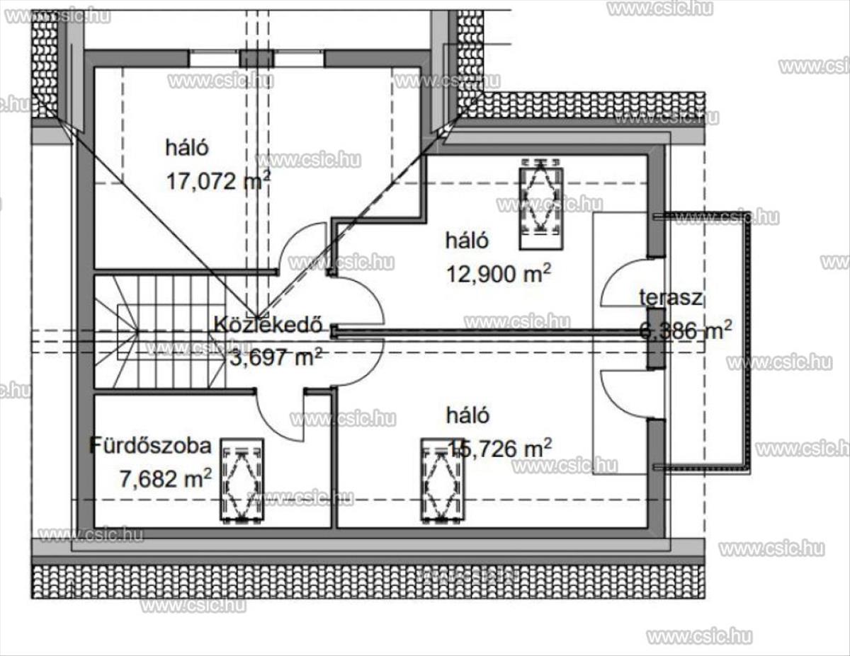
Eladó új építésű, panorámás családi ház szentendre-leányfalu HATÁRÁN.SZENTENDRE-LEÁNYFALU határán, panorámás, 124 nm-es, új építésű, önálló, igényes családi ház, nagy teraszokkal, dupla gépkocsi beállóval, 587 nm telekkel a Családi Ingatlan kínálatában eladó.
A Leányfalun épülő panorámás, igényes kivitelezésű családi ház nappali+4 hálós, hőszivattyús, padlófűtéssel. a kétszintes családi házban a földszinten nappali-konyha-étkező nagy teraszkapcsolattal (40 nm), szoba, fürdőszoba, előtér, kamra, mosdó, az emeleten 3 szoba, fürdőszoba, közlekedő kerül kialakításra.
AZ eladó panorámás családi ház Szentendre magas színvonalú műszaki tartalommal épül:
- 30 cm klíma tégla
- 10 cm grafitos hőszigetelés
- 3 rétegű műanyag nyílászárók
- hőszivattyús padlófűtés
- klíma előkészítés
- riasztó előkészítés
- elektromos kapu előkészítés
- nagy teraszok
- viacolorral burkolt, dupla gépkocsi beálló
- CSOK plusz támogatás igénybe vehető
Buszmegálló 800 m-re található.
Várható birtokbaadás: 2026. II. N. Év FIX 3% lakáshitelre megvehető

