Eladó új építésű ház - Levél (31663747)
ELADÓ INGATLANOK
KIADÓ INGATLANOK
CSERE INGATLANOK
KÜLFÖLDI INGATLANOK
RÉSZLETES KERESÉS
INGATLAN HÍREK
HIRDETÉS FELADÁS
BELÉPÉS
REGISZTRÁCIÓ
hirdetés 1. fotó
hirdetés 2. fotóhirdetés 3. fotó
hirdetés 4. fotóhirdetés 5. fotó
hirdetés 6. fotó
+ 4 fotó
hirdetés 7. fotó
+ 1 fotó
hirdetés 7. fotó

Ingatlan adatai

  • Eladó vagy kiadó:Eladó
  • Település:Levél
  • Kategória:Ház
  • Alkategória:Családi ház
  • Alapterület:100 m2
  • Telekterület:400 m2
  • Csere is:Nem
  • Hirdető:Cég
  • Élő videón megtekinthető:Nem
  • Szobaszám:nincs megadva
  • Állapot:Új építésű
  • Hány szintes az ingatlan:nincs megadva
  • Tetőtér:nincs megadva
  • Komfortosság:nincs megadva
  • Pince:Nincs
  • Parkolási lehetőség:nincs megadva
  • Fűtés:nincs megadva
  • Bútorozottság:nincs megadva
  • Fényviszony:nincs megadva
  • Tájolás:nincs megadva
  • Kilátás:nincs megadva
  • Internet:nincs megadva
  • Klíma:nincs megadva
  • Akadálymentesített:nincs megadva
  • Energiatanúsítvány:nincs megadva
  • Villany:Van
  • Víz:Van
  • Gáz:nincs megadva
  • Csatorna:Van
  • Kapcsolatfelvétel
Tóth Edit
Tóth Edit
+36-(30)-491-7122
Mondd meg a hirdetőnek, hogy a megveszLAK-on találtad a hirdetést.
Érdekel kedvezményes lakáshitel ajánlat is
Az ASZF-et és az Adatkezelési tájékoztatót elfogadom

Hitel ajánlatok

 

Ingatlan hirdetés leírása

Levélen új építésű jelenleg félkész 100 nm földszintes családi...


Új építésű családi ház eladó Levélen – az osztrák határ közelében! Jelenleg már félkész állapotban! ! !

Idén költözhető!

Ára: 74 900 000, - Ft. 5 % Áfával, telekkel és emeltszintű szerkezet és fűtéskészen! 

Kulcsrakész befejezés kérhető!

Levél csendes, rendezett részén, a hegyeshalmi osztrák határ közelében, önálló 400 m²-es telken kínálok megvételre egy új építésű családi házat.

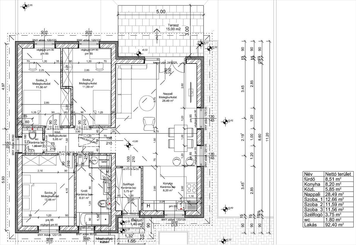
Az ingatlan nettó 92, 40 m² lakóterülettel rendelkezik, amelyhez tartozik egy 1, 4 m²-es fedett belépő, valamint egy 15 m²-es, nappaliból nyíló terasz, amely kellemes kertkapcsolatot biztosít.

Helyiségek elrendezése

szélfogó / előtér

nappali – étkező

konyha

közlekedő

3 hálószoba

fürdőszoba

külön WC

A praktikus alaprajz ideális választás családok számára, kényelmes és jól használható életteret biztosít.

Műszaki tartalom

Az épület kivitelezése korszerű, minőségi anyagok felhasználásával történik:

Porotherm téglafalazat

monolit beton födém, amely nagyobb hőmegtartó tömeget biztosít

gerendavázas tetőszerkezet

Bramac tetőfólia és Bramac Reviva cserepezés

15 cm homlokzati polisztirol szigetelés

35 cm ásványgyapot födémszigetelés

A padláson kb. 30 M² járható, pakolható tárolófelület került kialakításra.

Nyílászárók

Kömmerling műanyag nyílászárók

3 rétegű üvegezés

meleg perem technológia

rejtett redőnytok, motoros redőny előkészítéssel

Fűtés és gépészet

A fűtést és a melegvíz-ellátást magas minőségű német Vaillant hőszivattyús rendszer biztosítja:

Vaillant aroTherm hőszivattyú

uniTower beltéri egység

padlófűtéses hőleadás

Igény esetén a műszaki tartalom gázkazán + hőszivattyús klímás rendszerre módosítható.

További műszaki elemek

klíma előcsövezés kiépítve

kérésre klíma felszerelés kulcsrakész átadáskor

fürdőszobában és WC-ben páratartalom-érzékelős ventilátoros elszívás

visszacsapó szeleppel ellátott szellőzés

Jelenlegi készültségi állapot

Az épület tető alatt van, a főbb szerkezeti munkák elkészültek:

Kömmerling nyílászárók beépítve

35 cm ásványgyapot födémszigetelés elkészült

padláson 30 m² járható tároló rész kialakítva

villamossági gégecsövezés elkészült

víz- és lefolyórendszer alapcsövezése elkészült

beépített wc tartályok elhelyezve

A fűtéskész állapot várhatóan kb. 2, 5 Hónapon belül elérhető.

Amennyiben érdekli az ingatlan, kérem keressen időpont egyeztetés céljából az alábbi elérhetőségeim  bármelyikén.

Telefon: 06 30 491 7122 -es  számon.
E-mail: toth. Edit@globalotthon. Hu
Irodánkban teljes körű díjmentes hitelügyintézéssel, szakmai segítségnyújtással várjuk! FIX 3% lakáshitelre megvehető

Tetszett ez az eladó Levéli új építésű családi ház? Hívd fel a hirdetőt most, és tudj meg mindent erről az eladó családi házról! Ha gondolod nézelődj tovább az eladó ház Levél oldal hirdetései között. Ennek az eladó háznak az ára 74900000 Ft és mivel az alapterülete 100 négyzetméter, ezért az átlagos négyzetméterára 749000 HUF/m2.

Az eladó házak menüpontban további hirdetések között is böngészhetsz. Ha van kedved, akkor böngészhetsz a Tóth Edit összes hirdetése között, vagy akár a/az Global Otthon az Otthonteremtő összes hirdetése között is.

 
 
© megveszLAK.hu - Az egyszerűen jó ingatlan hirdetési oldal