Eladó átlagos állapotú ház - Levelek
- INGYENES HIRDETÉS FELADÁS
Ingatlan adatai
- Eladó vagy kiadó:Eladó
- Település:Levelek
- Kategória:Ház
- Alkategória:Családi ház
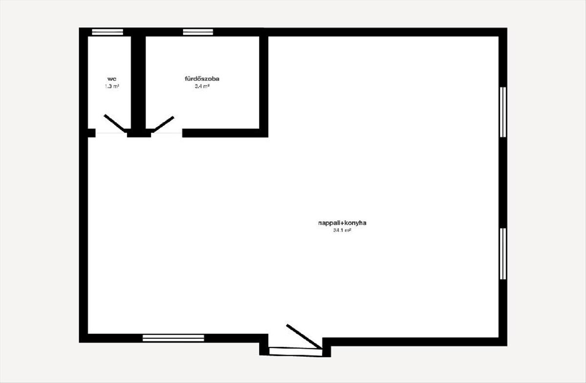
- Alapterület:48 m2
- Telekterület:800 m2
- Csere is:Nem
- Hirdető:Cég
- Élő videón megtekinthető:Nem
- Építés éve:2015
- Szobaszám:1
- Állapot:Átlagos állapotú
- Hány szintes az ingatlan:2 szintes
- Tetőtér:nincs megadva
- Komfortosság:nincs megadva
- Pince:nincs megadva
- Parkolási lehetőség:Utcán
- Fűtés:nincs megadva
- Bútorozottság:nincs megadva
- Fényviszony:nincs megadva
- Tájolás:nincs megadva
- Kilátás:nincs megadva
- Internet:nincs megadva
- Klíma:nincs megadva
- Akadálymentesített:nincs megadva
- Energiatanúsítvány:nincs megadva
- Villany:Telken belül
- Víz:Telken belül
- Gáz:Nincs
- Csatorna:Nincs
- Kapcsolatfelvétel

Szücs-Hajdú Angelika
+36-70-585-6578
Mondd meg a hirdetőnek, hogy a megveszLAK-on találtad a hirdetést.
Hitel ajánlatok
Ingatlan hirdetés leírása
Eladó egész évben lakható nyaraló Leveleken ? csendes környeze...
Eladó egész évben lakható nyaraló Leveleken? Csendes környezetben, a tó közelében
Levelek kedvelt üdülőövezetében, nyugodt, csendes környezetben kínálunk eladásra egy 2015-ben épült, egész évben lakható nyaralót, amely tökéletes választás pihenésre, családi kikapcsolódásra vagy akár befektetésnek is.
Az ingatlan 48 nm hivatalos alapterülettel rendelkezik, elosztása praktikus:
1 szoba, valamint 2 belső lakószint biztosítja a kényelmes térkihasználást. Állapota átlagos, az épület külső állapota jó, így az új tulajdonos azonnal használatba veheti.
A ház szigetelt, ezért nemcsak nyáron, hanem télen is komfortosan lakható. a 800 nm -es telek kiváló lehetőséget nyújt kertészkedésre, pihenésre, gyermekek számára szabadtéri játékra vagy akár további fejlesztésekre.
A tó közelsége számos szabadidős és szórakozási lehetőséget kínál: strandolás, horgászat, kirándulás, valamint a környék vendéglátóegységei és programjai garantálják az aktív kikapcsolódást. a környezet családbarát, ideális a hétköznapok zajától való elvonuláshoz.
Főbb jellemzők:
Csendes, nyugodt környezet
2015-ben épült ház
48 nm lakótér, 2 szint
1 szoba
Szigetelt, egész évben lakható
800 nm -es telek
Jó külső állapot
Tó közeli elhelyezkedés
Ez az ingatlan kiváló választás mindazok számára, akik egy természetközeli, mégis jól használható nyaralót vagy kisebb lakóházat keresnek Leveleken.
Érdeklődjön bizalommal, és tekintse meg személyesen! FIX 3% lakáshitelre megvehető
Tetszett ez az eladó Leveleki átlagos állapotú 1 szobás családi ház? Hívd fel a hirdetőt most, és tudj meg mindent erről az eladó családi házról! Ha gondolod nézelődj tovább az eladó ház Levelek oldal hirdetései között. Ennek az eladó háznak az ára 47500000 Ft és mivel az alapterülete 48 négyzetméter, ezért az átlagos négyzetméterára 989583 HUF/m2.
Az eladó házak menüpontban további hirdetések között is böngészhetsz. Ha van kedved, akkor böngészhetsz a Szücs-Hajdú Angelika összes hirdetése között, vagy akár a/az Nyíregyháza Bocskai utca 18-20 - OTP Ingatlanpont Iroda összes hirdetése között is.

