Eladó jó állapotú ház - Lőrinci
- INGYENES HIRDETÉS FELADÁS
Ingatlan adatai
- Eladó vagy kiadó:Eladó
- Település:Lőrinci
- Kategória:Ház
- Alkategória:Családi ház
- Alapterület:67 m2
- Telekterület:115 m2
- Csere is:Nem
- Hirdető:Cég
- Élő videón megtekinthető:Nem
- Építés éve:2004
- Szobaszám:3
- Állapot:Jó állapotú
- Hány szintes az ingatlan:nincs megadva
- Tetőtér:nincs megadva
- Komfortosság:nincs megadva
- Pince:Nincs
- Parkolási lehetőség:Garázsban
- Fűtés:Kandalló
- Bútorozottság:Részben bútorozott
- Fényviszony:nincs megadva
- Tájolás:nincs megadva
- Kilátás:nincs megadva
- Internet:nincs megadva
- Klíma:nincs megadva
- Akadálymentesített:nincs megadva
- Energiatanúsítvány:nincs megadva
- Villany:Van
- Víz:Van
- Gáz:Van
- Csatorna:Van
- Kapcsolatfelvétel

Fekécs Nóra
+36-(30)-186-6614
Mondd meg a hirdetőnek, hogy a megveszLAK-on találtad a hirdetést.
Hitel ajánlatok
Ingatlan hirdetés leírása
BEFEKTETŐK FIGYELEM! Két családi ház egy telken Lőrinciben – e...
Lőrinciben, forgalmas főút mellett kínálunk megvételre egy különleges adottságokkal rendelkező ingatlant, amely két különálló családi házból áll egy 735 nm -es telken. Az ingatlan elhelyezkedése és kialakítása miatt ideális választás befektetőknek, többgenerációs családoknak, illetve azoknak, akik lakhatásukat saját vállalkozásukkal szeretnék összekapcsolni.
A két ingatlan egyben és külön is megvásárolható, így befektetési szempontból is rugalmas lehetőséget kínál: akár bérbeadásra, akár üzleti célú hasznosításra is kiváló választás.
Az ingatlan kiváló láthatóságú, jól megközelíthető helyen található, közvetlen kapcsolattal a négysávos 21-es főúthoz, valamint mindössze néhány perc autóútra a Hatvani csomóponttól, ami üzleti szempontból is kiemelkedő értéket képvisel.
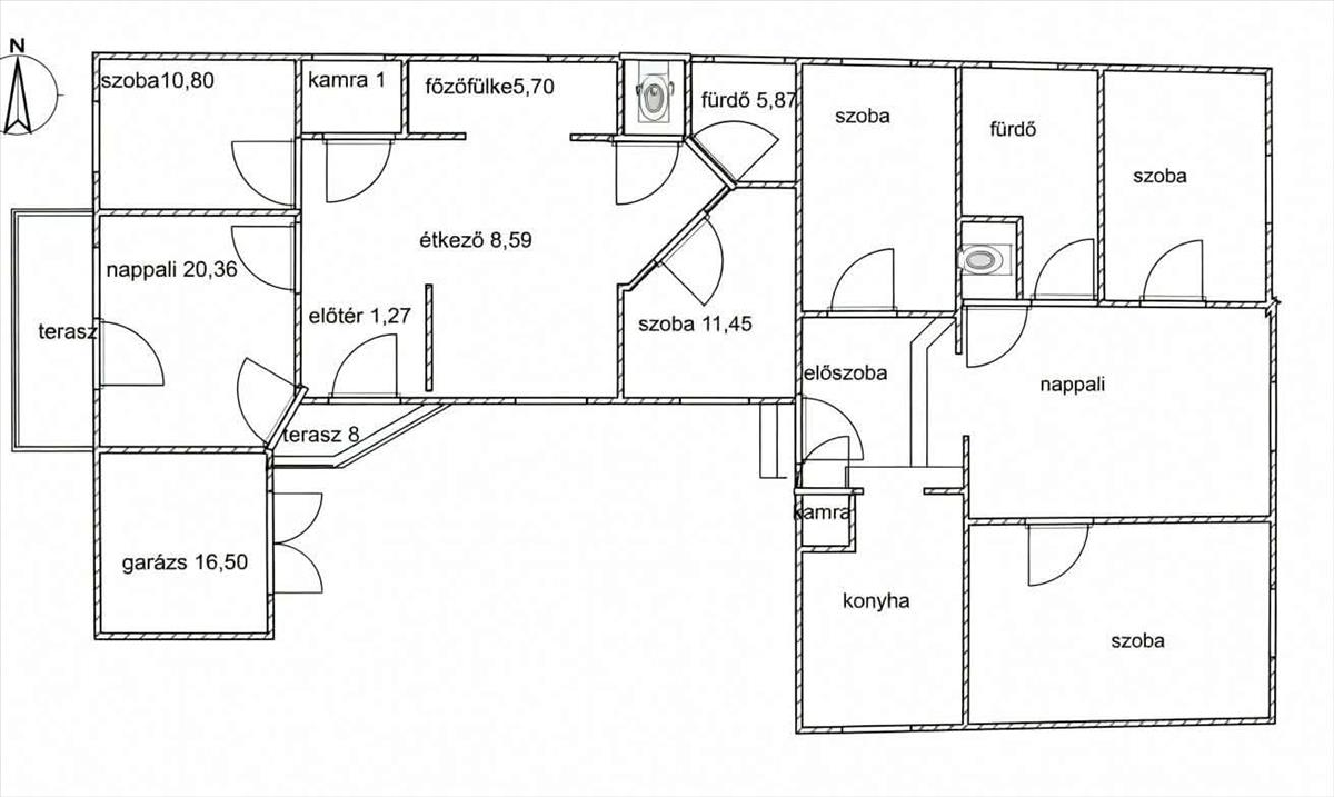
1. Épület – 67 nm -es családi ház (2004)
A 2004-ben téglából épült, 67 nm -es családi ház elrendezése: 2 szoba, nappali, étkező-konyha, fürdőszoba és külön wc. Fűtése vízteres kandallóval megoldott, jelenleg gázóra nincs. Az épület fa nyílászárókkal rendelkezik, a homlokzat külső vakolatot kapott, festés és igény szerint szigetelés javasolt. Az ingatlanhoz 16, 5 nm -es garázs is tartozik.
Irányár: 38, 5 millió Ft.
2. Épület – 93 nm -es felújított családi ház
A telken található egy 93 nm -es, téglából és blokkból épült családi ház, amely 2002-ben teljes körű felújításon esett át. a felújítás során megtörtént a tetőcsere, a villamoshálózat korszerűsítése, a fürdőszoba felújítása, a nyílászárók cseréje, a fűtés korszerűsítése, a hideg- és melegburkolatok cseréje, valamint a külső homlokzat szigetelése és színezése. Elrendezése: 3 szoba, nappali, konyha, előszoba, kamra, fürdőszoba és külön wc. a ház részben alápincézett, klímával felszerelt, fűtése vegyestüzelésű kazánnal és gázcirkóval is megoldható, valamint teljes közművel rendelkezik. Az ingatlan részben bútorozva kerül értékesítésre.
Irányár: 54 millió Ft.
A két ház közös udvari bejárattal rendelkezik, és a nagy forgalmú főút melletti elhelyezkedésnek köszönhetően vállalkozási célra is kiváló lehetőséget kínál. Az egyik épület könnyen átalakítható üzlethelyiséggé, például cukrászda, kávézó, szépségszalon, fodrászat, masszázs- vagy egészségügyi rendelő, iroda, bemutatóterem vagy webshop átvételi pont céljára. További előny, hogy az utcafront felől külön bejárat is kialakítható, így az üzlet és a lakótér teljesen elkülöníthető.
Ez az ingatlan kiváló befektetési lehetőség, hiszen egyszerre kínál lakhatási, bérbeadási és üzleti hasznosítási potenciált egy jól látható, forgalmas elhelyezkedésű telken. FIX 3% lakáshitelre megvehető
Tetszett ez az eladó Lőrinci jó állapotú 3 szobás családi ház? Hívd fel a hirdetőt most, és tudj meg mindent erről az eladó családi házról! Ha gondolod nézelődj tovább az eladó ház Lőrinci oldal hirdetései között. Ennek az eladó háznak az ára 38500000 Ft és mivel az alapterülete 67 négyzetméter, ezért az átlagos négyzetméterára 574627 HUF/m2.
Az eladó házak menüpontban további hirdetések között is böngészhetsz. Ha van kedved, akkor böngészhetsz a Fekécs Nóra összes hirdetése között, vagy akár a/az Gyémánt Ingatlaniroda Salgótarján összes hirdetése között is.

