- >>
- eladó ingatlanok
- >>
- eladó ház
- >>
- eladó ház Mád
- >>
Eladó átlagos állapotú ház - Mád
| | |||
| Kedvencnek jelölöm | Elküldöm emailben | Megosztás | Szavazás |
| FIX 3% lakáshitelre megvehető | |||
| 55 000 000 HUF | |||
Ingatlan adatai
- Eladó vagy kiadó:Eladó
- Település:Mád
- Kategória:Ház
- Alkategória:Családi ház
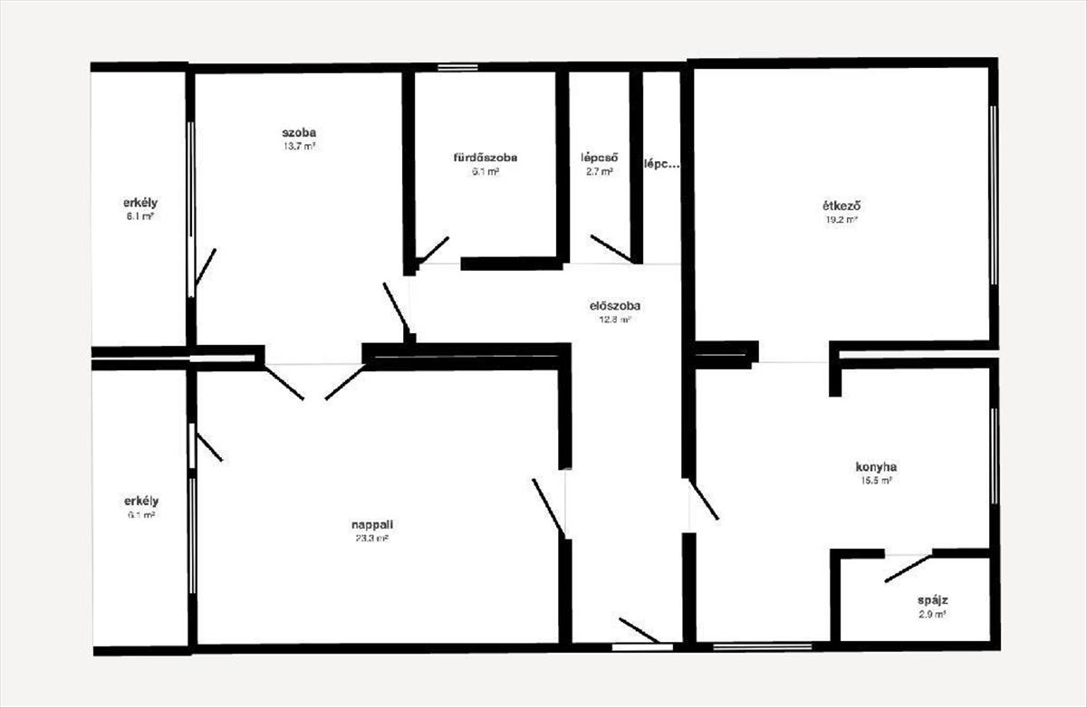
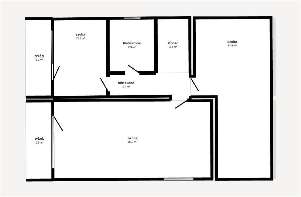
- Alapterület:334 m2
- Telekterület:756 m2
- Csere is:Nem
- Hirdető:Cég
- Élő videón megtekinthető:Nem
- Építés éve:1986
- Szobaszám:4 + 2 fél
- Állapot:Átlagos állapotú
- Hány szintes az ingatlan:2 szintes
- Tetőtér:nincs megadva
- Komfortosság:nincs megadva
- Parkolási lehetőség:Udvaron
- Fűtés:Gáz (cirko)
- Bútorozottság:nincs megadva
- Fényviszony:Napfényes
- Tájolás:nincs megadva
- Kilátás:nincs megadva
- Internet:nincs megadva
- Akadálymentesített:nincs megadva
- Energiatanúsítvány:nincs megadva
- Villany:Van
- Víz:Telken belül
- Gáz:Telken belül
- Csatorna:nincs megadva
- Üzenetküldés
- Hívás

Piskóti Tibor Lajos
Mondd meg a hirdetőnek, hogy a megveszLAK-on találtad a hirdetést.
Referencia szám: M316223

Hitel ajánlat
Ingatlan hirdetés leírása
Eladó Ház, Mád, Eladó átlagos állapotú ház - Mád
Mádon nagyon jó lakókörnyezetben 2 szintes családi ház eladó, 2 garázzsal, kazánházzal borospincével. Mád nagyon felkapott település lett Hegyalján. Az ingatlan 756 m2-es telken található, lakóterülete 207 m2. Egyéb lakhatáshoz tartozó területek: pince, 2 db garázs, kazánház, alapterülete összesen 127 m2. Mádon minden megtalálható ami a napi élethez szükséges. Legközelebbi város 10 km-re Szerencs, ahol bevásárló központok, orvosi rendelők, több középiskola, bölcsődék, óvodák található. a ház alkalmas lehet magánszállás, kisebb panzió kialakítására, vagy akár vállalkozás székhelyének, irodának, a jó megközelíthetőség miatt, vagy akár több generációnak is alkalmas lakhatásra. Szomszédok rendesek, csendesek. a ház tehermentes. Érdeklődés esetén kérem az alábbi referencia számra hivatkozzon: m316223OTP Banki hátterünknek köszönhetően finanszírozási igényekben (pl. Otthon Start Hitelprogram, Babaváró, Falusi csok, CSOK Plusz, Lakáshitel, Személyi kölcsön stb. ), Illetve biztosítások tekintetében is díjmentesen, soron kívüli ügyintézéssel segítem ügyfeleim!
Jöjjön nézzük meg együtt!
Referencia szám: m316223 FIX 3% lakáshitelre megvehető

