Eladó jó állapotú ház Marcaltő
| Kedvencbe | Megosztás | Árfigyelő |
| FIX 3% lakáshitelre megvehető | ||
| 20 900 000 HUF | ||
Ingatlan adatai
- Eladó vagy kiadó:Eladó
- Település:Marcaltő
- Kategória:Ház
- Alkategória:Családi ház
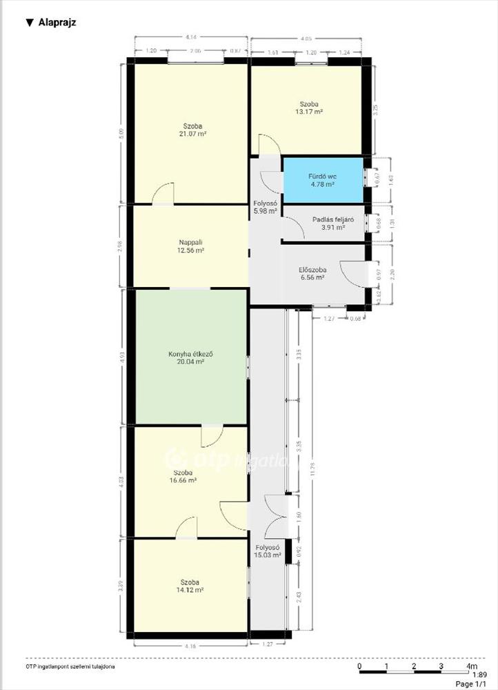
- Alapterület:133 m2
- Telekterület:1888 m2
- Csere is:Nem
- Hirdető:Cég
- Élő videón megtekinthető:Nem
- Építés éve:1940
- Szobaszám:4
- Állapot:Jó állapotú
- Hány szintes az ingatlan:Földszintes
- Tetőtér:nincs megadva
- Komfortosság:nincs megadva
- Parkolási lehetőség:Utcán
- Fűtés:Cserépkályha
- Bútorozottság:nincs megadva
- Fényviszony:nincs megadva
- Tájolás:nincs megadva
- Kilátás:nincs megadva
- Internet:nincs megadva
- Akadálymentesített:nincs megadva
- Energiatanúsítvány:nincs megadva
- Villany:nincs megadva
- Víz:nincs megadva
- Gáz:Utcában
- Csatorna:Nincs
- Üzenetküldés
- Hívás

Hitel ajánlat
Ingatlan hirdetés leírása
Pápától mindössze 10 percre, Marcaltő csendes településén ELAD...
Pápától mindössze 10 percre, Marcaltő csendes településén eladó egy tágas, 130 m2-es, 4 szoba elrendezésű családi ház. Az ingatlan masszív szerkezetű, kő és tégla építésű, így hosszú távra is biztos alapot nyújt azoknak, akik stabil, jól átgondolható otthont keresnek.Az épület statikailag kifogástalan, a tetőszerkezet rendben van. Kívülről szigetelt homlokzattal rendelkezik (vakolás nélkül), ami jó alapot ad a későbbi befejezéshez. a bejárati ajtó műanyag nyílászáró, az ablakok régi fa kivitelűek.
A praktikus elosztás a mindennapokat támogatja: 4 szoba, konyha-étkező, közlekedő, folyosó, fürdő WC-vel, valamint padlásfeljáró biztosítja a használható tereket és a tárolási lehetőséget. a fűtés fa tüzelésű kályhával megoldott, a telekhatáron a gáz szolgáltatás elérhető, így igény szerint gáz beköthető. Meleg vizet villany bojler ad. a településen csatorna nincs, az ingatlan derítőre csatlakozik.
A telek nagy, 1888 m2-es, ami számos hasznosítási lehetőséget kínál. Az ingatlan jelen formájában is jó alap, ugyanakkor fejleszthető: a homlokzati befejezés és a nyílászárók korszerűsítése a leendő tulajdonos igénye szerint valósítható meg.
Amennyiben egy jó állapotú szerkezeti alapokkal rendelkező, tágas családi házat keres Pápához közel, ez az ingatlan megfontolandó lehetőség. További információért és megtekintésért keressen bizalommal. FIX 3% lakáshitelre megvehető

