Eladó jó állapotú ház - Máriakálnok
- INGYENES HIRDETÉS FELADÁS
Ingatlan adatai
- Eladó vagy kiadó:Eladó
- Település:Máriakálnok
- Kategória:Ház
- Alkategória:Családi ház
- Alapterület:107 m2
- Telekterület:1000 m2
- Csere is:Nem
- Hirdető:Cég
- Élő videón megtekinthető:Nem
- Építés éve:1980
- Szobaszám:4
- Állapot:Jó állapotú
- Hány szintes az ingatlan:2 szintes
- Tetőtér:nincs megadva
- Komfortosság:nincs megadva
- Pince:nincs megadva
- Parkolási lehetőség:nincs megadva
- Fűtés:Egyéb
- Bútorozottság:nincs megadva
- Fényviszony:Jó
- Tájolás:NY
- Kilátás:nincs megadva
- Internet:nincs megadva
- Klíma:nincs megadva
- Akadálymentesített:nincs megadva
- Energiatanúsítvány:nincs megadva
- Villany:Van
- Víz:Van
- Gáz:Telken belül
- Csatorna:Van
- Kapcsolatfelvétel
Dömötör Attila
+36-(30)-850-5560
Mondd meg a hirdetőnek, hogy a megveszLAK-on találtad a hirdetést.
Referencia szám: 3330
Hitel ajánlatok
Ingatlan hirdetés leírása
Kétszintes, 107 m²-es Családi Ház 1000 m²-es Telekkel Máriakál...
Máriakálnok központi részén megvételre kínálok egy 1981-ben épült, stabil, tégla falazatú, két szintes családi házat. Az ingatlan egy 1000 m²-es, teljesen körbekerített telken helyezkedik el.
A ház 107 m²-es alapterülettel rendelkezik, és kiválóan alkalmas nagycsaládosok számára is. Az épület részben alápincézett (21, 5 m²), és tartozik hozzá garázs, valamint több melléképület is. Készpénzes ügyfeleket keresünk.
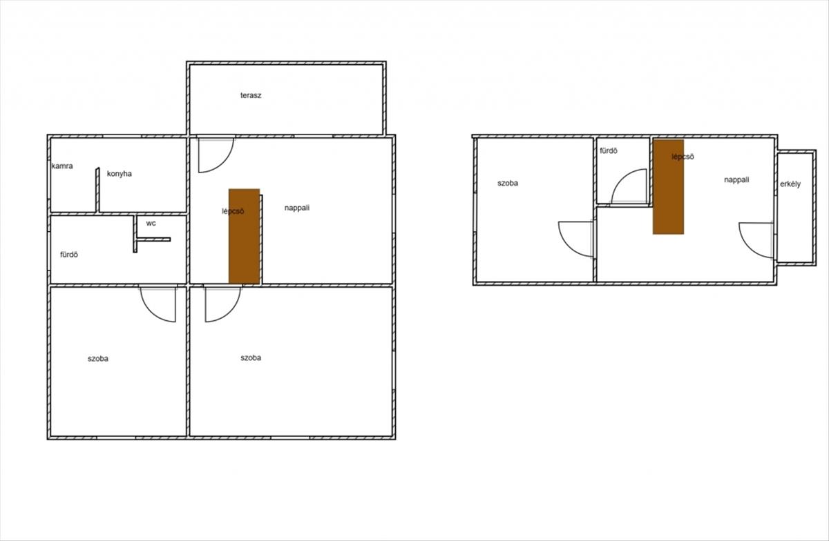
Az ingatlan elosztása:
Földszint: a bejárat egy tágas előtérbe nyílik, ahonnan elérhető a konyha, egy spájz (kamra), egy fürdőszoba és egy különálló wc. Ezen a szinten található egy nappali-étkező, valamint két rendkívül tágas (27 m² és 20 m²) hálószoba. a nappaliból egy nagyméretű, hangulatos fedett teraszra léphetünk ki.
Emelet: a felső szintre érve egy közlekedő fogad, ahonnan egy szoba, egy fürdőszoba-WC, és két további, gardróbnak kialakítható helyiség nyílik. Az emeletről egy 6 m²-es loggia (erkély) is elérhető.
Pince: a 21, 5 m²-es pincében tároló helyiségek, valamint a vegyestüzelésű kazán kapott helyet.
Műszaki és egyéb információk:
Nyílászárók: a ház nyílászárói modern, műanyag szerkezetűek, és mindegyik redőnnyel felszerelt.
Fűtés: a fűtésről vegyestüzelésű kazán gondoskodik, radiátoros hőleadással. a gázcsonk telken belül megtalálható, így igény esetén a gázfűtés is kiépíthető.
Közművek: Az ingatlan 220/380 V ipari árammal is ellátott.
Ez a tágas terekkel rendelkező, stabil szerkezetű ház remek alapot biztosít egy kényelmes, több generációs otthon kialakítására.
Amennyiben felkeltette érdeklődését, keressen bizalommal a megtekintéssel kapcsolatban!
Referencia szám: 3330-ml FIX 3% lakáshitelre megvehető
Tetszett ez az eladó Máriakálnoki jó állapotú 4 szobás családi ház? Hívd fel a hirdetőt most, és tudj meg mindent erről az eladó családi házról! Ha gondolod nézelődj tovább az eladó ház Máriakálnok oldal hirdetései között. Ennek az eladó háznak az ára 65000000 Ft és mivel az alapterülete 107 négyzetméter, ezért az átlagos négyzetméterára 607477 HUF/m2.
Az eladó házak menüpontban további hirdetések között is böngészhetsz. Ha van kedved, akkor böngészhetsz a Dömötör Attila összes hirdetése között, vagy akár a/az Mov-Ing Home összes hirdetése között is.

