Eladó jó állapotú ház - Mérges
- INGYENES HIRDETÉS FELADÁS
Ingatlan adatai
- Feladva:4 hónapja a megveszLAK-on
- Eladó vagy kiadó:Eladó
- Település:Mérges
- Kategória:Ház
- Alkategória:Családi ház
- Alapterület:120 m2
- Telekterület:7459 m2
- Csere is:Nem
- Hirdető:Cég
- Élő videón megtekinthető:Nem
- Építés éve:1975
- Szobaszám:3
- Állapot:Jó állapotú
- Hány szintes az ingatlan:Földszintes
- Tetőtér:nincs megadva
- Komfortosság:nincs megadva
- Pince:nincs megadva
- Parkolási lehetőség:Garázsban
- Fűtés:nincs megadva
- Bútorozottság:nincs megadva
- Fényviszony:nincs megadva
- Tájolás:nincs megadva
- Kilátás:nincs megadva
- Internet:nincs megadva
- Klíma:nincs megadva
- Akadálymentesített:nincs megadva
- Energiatanúsítvány:nincs megadva
- Villany:Telken belül
- Víz:Telken belül
- Gáz:Telken belül
- Csatorna:Telken belül
- Kapcsolatfelvétel

Péter Richárd
+36-70-250-0391
Mondd meg a hirdetőnek, hogy a megveszLAK-on találtad a hirdetést.
Hitel ajánlatok
Ingatlan hirdetés leírása
Eladásra kínálok Győrtől 20 km-re, átmenő forgalomtól mentes, ...
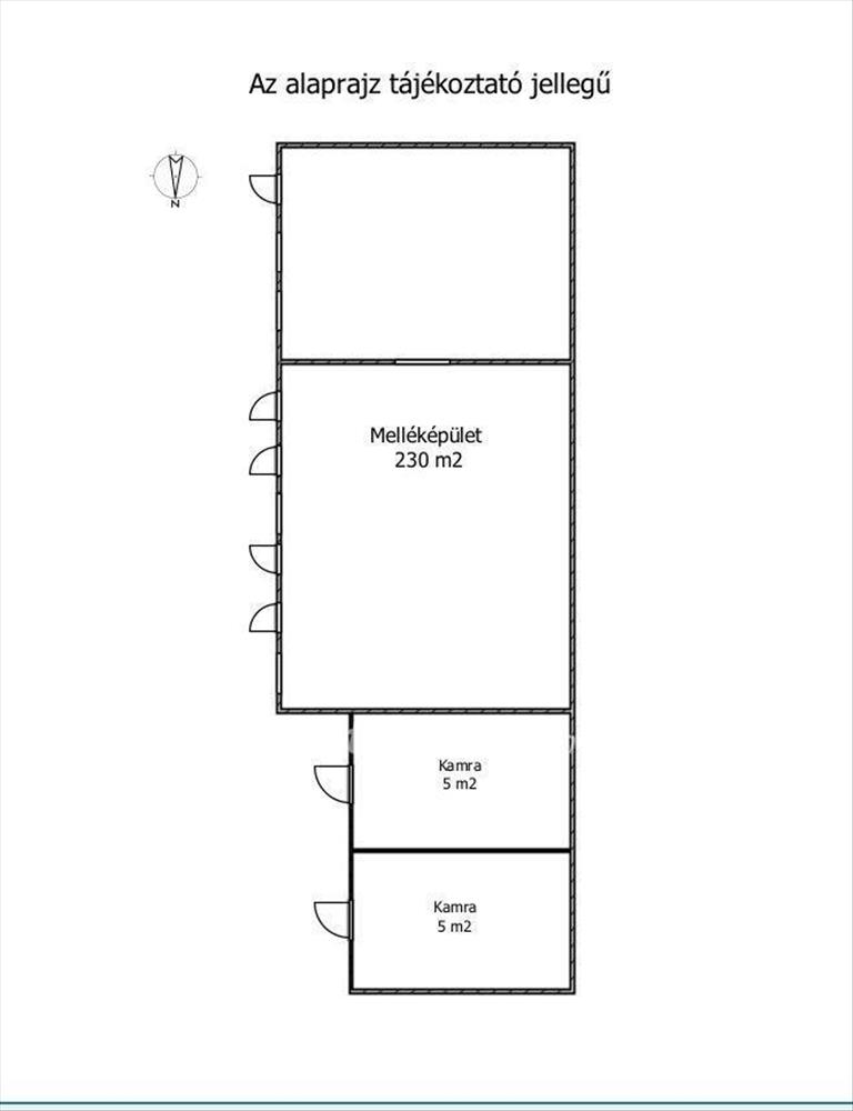
Eladásra kínálok Győrtől 20 km-re, átmenő forgalomtól mentes, csendes kis településen egy 7459 m2-es, teljesen körbekerített telken, teljes közműves 120 m2-es lakóházat, amely ideális lehet akár egy nagyobb család részére is. a házzal egybeépítve egy 25 m2 garázs is rendelkezésre áll, ami akár átalakítható szobává is. a lakóházban található 2 szoba, nagy étkező, nagy nappali, konyha, spájz, fürdőszoba. Központi gázfűtés van, amihez nagy teljesítményű vízteres fatüzelésű kandalló csatlakozik. Az ingatlan területén nem utolsó sorban egy gyönyörű kb. 6X3-as, 20 m2 es téglából épített boltíves, hűvös pince is megtalálható. Továbbá az ingatlanhoz tartozik egy hatalmas egybefüggő épület fedett terasszal. a melléképület Leier téglából épített, a mennyezet szigetelt, gáz és vízvezetékkel, 3x25A árammal van szerelve, így kis- vagy közepes vállalkozásra, vagy raktározásra is alkalmas. a kerti részen többfajta gyümölcsfa található, az 500m2-es udvari rész térkővel burkolt. Az ingatlanhoz tartozó 5000 m2-es szintén körbekerített hátsó kerti rész akár gazdasági célokra is használható. Amennyiben hirdetésem felkeltette az érdeklődését, keressen bizalommal. FIX 3% lakáshitelre megvehető
Tetszett ez az eladó Mérgesi jó állapotú 3 szobás családi ház? Hívd fel a hirdetőt most, és tudj meg mindent erről az eladó családi házról! Ha gondolod nézelődj tovább az eladó ház Mérges oldal hirdetései között. Ennek az eladó háznak az ára 99000000 Ft és mivel az alapterülete 120 négyzetméter, ezért az átlagos négyzetméterára 825000 HUF/m2.
Az eladó házak menüpontban további hirdetések között is böngészhetsz. Ha van kedved, akkor böngészhetsz a Péter Richárd összes hirdetése között, vagy akár a/az Győr Teleki László utca 26 - OTP Ingatlanpont Iroda összes hirdetése között is.

