Eladó átlagos állapotú ház - Mezőkövesd
- INGYENES HIRDETÉS FELADÁS
Ingatlan adatai
- Eladó vagy kiadó:Eladó
- Település:Mezőkövesd
- Kategória:Ház
- Alkategória:Családi ház
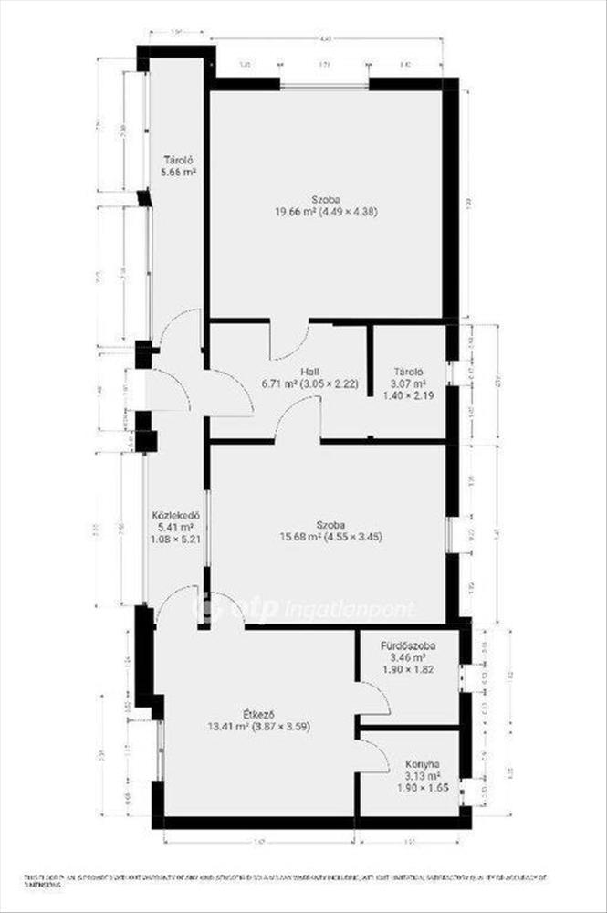
- Alapterület:76 m2
- Telekterület:791 m2
- Csere is:Nem
- Hirdető:Cég
- Élő videón megtekinthető:Nem
- Építés éve:1960
- Szobaszám:2
- Állapot:Átlagos állapotú
- Hány szintes az ingatlan:Földszintes
- Tetőtér:nincs megadva
- Komfortosság:nincs megadva
- Pince:nincs megadva
- Parkolási lehetőség:Teremgarázsban
- Fűtés:Gáz (konvektor)
- Bútorozottság:nincs megadva
- Fényviszony:Jó
- Tájolás:nincs megadva
- Kilátás:nincs megadva
- Internet:nincs megadva
- Klíma:nincs megadva
- Akadálymentesített:nincs megadva
- Energiatanúsítvány:nincs megadva
- Villany:nincs megadva
- Víz:nincs megadva
- Gáz:nincs megadva
- Csatorna:nincs megadva
- Kapcsolatfelvétel

Pleszkó Anikó
+36-(70)-313-3848
Mondd meg a hirdetőnek, hogy a megveszLAK-on találtad a hirdetést.
Referencia szám: M322999
Hitel ajánlatok
Ingatlan hirdetés leírása
Eladó Ház, Mezőkövesd
Eladásra kínálok egy 76 m2 alapterületű, 2 szobás, hagyományos hosszú parasztház jellegű ingatlant, amely egy 791 m2-es telken helyezkedik el.
Az épület falazata vályog és tégla, stabil szerkezeti alapokkal. a villamos hálózat részben felújításra került, a vezetékek műanyag védőcsövekben kerültek elhelyezésre a falakban, ami a további korszerűsítést is megkönnyíti.
Fűtése konvektorral megoldott. Az ingatlan korszerűsítést igényel, ugyanakkor méretének és adottságainak köszönhetően kiváló alap lehet egy saját igényekre szabott otthon kialakításához.
A 791 m2-es telek ideális kert, veteményes, pihenőkert vagy akár további fejlesztési lehetőségek kialakítására is.
Ajánlott mindazok számára, akik értéket látnak a hagyományos parasztház hangulatban, és egy jó adottságú ingatlant keresnek elérhető áron.
OTP Banki hátterünknek köszönhetően finanszírozási igényekben (pl. Otthon Start Program, Babaváró, Falusi csok, CSOK Plusz, Lakáshitel, Személyi kölcsön stb. ), Illetve biztosítások tekintetében is díjmentesen, soron kívüli ügyintézéssel segítem ügyfeleim! Referenciaszám: m322999 FIX 3% lakáshitelre megvehető
Tetszett ez az eladó Mezőkövesdi átlagos állapotú 2 szobás családi ház? Hívd fel a hirdetőt most, és tudj meg mindent erről az eladó családi házról! Ha gondolod nézelődj tovább az eladó ház Mezőkövesd oldal hirdetései között. Ennek az eladó háznak az ára 19900000 Ft és mivel az alapterülete 76 négyzetméter, ezért az átlagos négyzetméterára 261842 HUF/m2.
Az eladó házak menüpontban további hirdetések között is böngészhetsz. Ha van kedved, akkor böngészhetsz a Pleszkó Anikó összes hirdetése között, vagy akár a/az OTPip Miskolc Szemere Bertalan utca 20 - OTP Ingatlanpont Iroda összes hirdetése között is.

