Eladó átlagos állapotú ház - Mezőkövesd
- INGYENES HIRDETÉS FELADÁS
Ingatlan adatai
- Eladó vagy kiadó:Eladó
- Település:Mezőkövesd
- Kategória:Ház
- Alkategória:Családi ház
- Alapterület:91 m2
- Telekterület:262 m2
- Csere is:Nem
- Hirdető:Cég
- Élő videón megtekinthető:Nem
- Építés éve:1940
- Szobaszám:2 + 1 fél
- Állapot:Átlagos állapotú
- Hány szintes az ingatlan:Földszintes
- Tetőtér:nincs megadva
- Komfortosság:nincs megadva
- Pince:nincs megadva
- Parkolási lehetőség:nincs megadva
- Fűtés:Gáz (cirko)
- Bútorozottság:nincs megadva
- Fényviszony:Jó
- Tájolás:nincs megadva
- Kilátás:nincs megadva
- Internet:nincs megadva
- Klíma:nincs megadva
- Akadálymentesített:nincs megadva
- Energiatanúsítvány:nincs megadva
- Villany:nincs megadva
- Víz:nincs megadva
- Gáz:nincs megadva
- Csatorna:nincs megadva
- Kapcsolatfelvétel

Török Ferenc
+36-(20)-528-9541
Mondd meg a hirdetőnek, hogy a megveszLAK-on találtad a hirdetést.
Referencia szám: M305194
Hitel ajánlatok
Ingatlan hirdetés leírása
Eladó Ház, Mezőkövesd
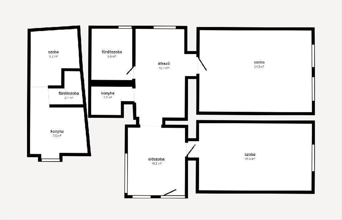
Mezőkövesd belvárosában eladó egy összkomfortos, jó állapotú, 91 nm -es, 3 szobás, családi ház.
Az ingatlan két külön lakrészből áll, de közös fallal és tetővel rendelkeznek.
Az első rész 2 szobát, 1 étkezőt, 1 fürdőt, 1 konyhát és 1 előszobát tartalmaz.
Míg a hátsó rész 1 konyhát, 1 szobát és 1 fürdőt rejt magában. Egykor legénylakásként működött.
A két lakrész fűtése közös rendszerről megoldott. Az otthon melegét gázkazán és vízteres kandalló biztosítja. a hőleadók radiátorok.
A meleg vizet pedig villanybojler állítja elő.
Az udvar rendezett, parkosított.
Mivel az ingatlan zsákutcában van és közvetlen magánszemély szomszéd nincs, így a háborítatlan pihenés garantált.
Amennyiben az ingatlan felkeltette érdeklődését, hívjon bizalommal és tekintsük meg együtt, kérem hivatkozzon az m305194 referencia számra!
OTP Banki hátterünknek köszönhetően finanszírozási igényekben (pl. Otthon Start Hitelprogram, Babaváró, Falusi csok, CSOK Plusz, Lakáshitel, Személyi kölcsön stb. ), Illetve biztosítások tekintetében is díjmentesen, soron kívüli ügyintézéssel segítem ügyfeleim!
Referencia szám: m305194 FIX 3% lakáshitelre megvehető
Tetszett ez az eladó Mezőkövesdi átlagos állapotú 2 egész és 1 fél szobás családi ház? Hívd fel a hirdetőt most, és tudj meg mindent erről az eladó családi házról! Ha gondolod nézelődj tovább az eladó ház Mezőkövesd oldal hirdetései között. Ennek az eladó háznak az ára 34990000 Ft és mivel az alapterülete 91 négyzetméter, ezért az átlagos négyzetméterára 384505 HUF/m2.
Az eladó házak menüpontban további hirdetések között is böngészhetsz. Ha van kedved, akkor böngészhetsz a Török Ferenc összes hirdetése között, vagy akár a/az OTPip Eger Kertész utca 25 - OTP Ingatlanpont Iroda összes hirdetése között is.

