Eladó felújítandó ház - Mikepércs
- INGYENES HIRDETÉS FELADÁS
Ingatlan adatai
- Eladó vagy kiadó:Eladó
- Település:Mikepércs
- Kategória:Ház
- Alkategória:Családi ház
- Alapterület:78 m2
- Telekterület:400 m2
- Csere is:Nem
- Hirdető:Cég
- Élő videón megtekinthető:Nem
- Építés éve:1970
- Szobaszám:2 + 1 fél
- Állapot:Felújítandó
- Hány szintes az ingatlan:Földszintes
- Tetőtér:nincs megadva
- Komfortosság:nincs megadva
- Pince:nincs megadva
- Parkolási lehetőség:Udvaron
- Fűtés:Gáz (cirko)
- Bútorozottság:nincs megadva
- Fényviszony:Jó
- Tájolás:nincs megadva
- Kilátás:nincs megadva
- Internet:nincs megadva
- Klíma:nincs megadva
- Akadálymentesített:nincs megadva
- Energiatanúsítvány:nincs megadva
- Villany:nincs megadva
- Víz:nincs megadva
- Gáz:nincs megadva
- Csatorna:nincs megadva
- Kapcsolatfelvétel

Balázscsikné Hanzel Re...
+36-(30)-167-3181
Mondd meg a hirdetőnek, hogy a megveszLAK-on találtad a hirdetést.
Referencia szám: M294759
Hitel ajánlatok
Ingatlan hirdetés leírása
Eladó Ház, Mikepércs
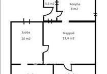
Mikepércs központi részén eladó egy sarki telken található, 78m2 családi ház.
A ház a 70-s években épült, vegyes falazattal, pala fedéssel, itt 2+1 szoba, nappali, konyha és fürdőszoba található.
Gázfűtéssel rendelkezik, illetve egy tárolásra alkalmas melléképülethez kapcsolódik.
Tetszés szerint modernizálható de nagyon sok lehetőség van benne. Elhelyezkedésének köszönhetően kiválóan alkalmas családok számára is, vagy akár vállalkozásra is kimondottan jó adottságokkal rendelkezik. Minden szükséges létesítmény, boltok, orvosi rendelő, busz állomás, gyógyszertár, posta, 5 perc alatt sétálva is elérhető.
További információért hívjon bizalommal akár hétvégén is. Megtekintésre telefonos egyeztetés alapján van lehetőség.
Kedvezményes kamatozású lakásvásárlási és felújítási hitelek az OTP hátterével irodánkban, valamint teljeskörű adásvétellel kapcsolatos ügyintézés.
Referenciaszám: m294759 FIX 3% lakáshitelre megvehető

