Eladó jó állapotú ház Miskolc
| Kedvencbe | Megosztás | Árfigyelő |
| FIX 3% lakáshitelre megvehető | ||
| 47 990 000 HUF | ||
Ingatlan adatai
- Eladó vagy kiadó:Eladó
- Település:Miskolc
- Kategória:Ház
- Alkategória:Családi ház
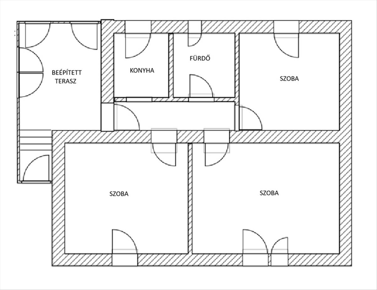
- Alapterület:78 m2
- Telekterület:734 m2
- Csere is:Nem
- Hirdető:Cég
- Élő videón megtekinthető:Nem
- Szobaszám:3
- Állapot:Jó állapotú
- Hány szintes az ingatlan:Földszintes
- Tetőtér:nincs megadva
- Komfortosság:Összkomfortos
- Parkolási lehetőség:Utcán
- Fűtés:Gáz
- Bútorozottság:nincs megadva
- Fényviszony:Napfényes
- Tájolás:nincs megadva
- Kilátás:nincs megadva
- Internet:nincs megadva
- Akadálymentesített:nincs megadva
- Energiatanúsítvány:nincs megadva
- Villany:Van
- Víz:Van
- Gáz:Van
- Csatorna:Van
- Üzenetküldés
- Hívás

Belvita Ingatlanok
Mondd meg a hirdetőnek, hogy a megveszLAK-on találtad a hirdetést.

Hitel ajánlat
Ingatlan hirdetés leírása
Eladó családi ház Miskolc, Komlóstető
Csendes, szép természeti környezetben, Komlóstetőn háromszobás családi ház eladó!Tízenöt perc autóútra a város központjától, buszmegállótól 400 m-re, tehermentes, nem lakott, szinte kiürített ingatlan lehet a tiéd!
Az 1970-es években, téglából épült ház a 2010-es évben felújítást kapott, nyílászárókkal korszerűsödött, leszigetelt. Nagy, parkosított előkertje van, kerti csap az udvaron, két bejárata, valamint a hátsó kijáratnál lévő részen kellemes filagóriával és szalonnasütő kialakítási lehetőséggel!
12 Nm zárható faházat is találsz kertes házhoz szükséges eszközök tárolására!
A jelenlegi tulajdonos által helyreállított zöldséges vermet/pincét is találunk, valamint zárható kutyaudvar, továbbá elkerített zöldséges kertet magaságyással!
Kialakíthatsz kertre nyíló teraszt is!
Lépcsők vezetnek a telek ház mögötti részéhez, amit ugyancsak lehet hasznosítani!
GARÁZS nincs, ám az ingatlan hátsó részén található földútról kialakítható autós beállási lehetőség!
-Zsindely borítás
-ép kémény
-szigetelt homlokzat
-konyha, előszoba egy légtérben átadó pulttal
-a szobák külön nyílóak, műanyag ablakokkal, redőnnyel, rovarhálóval
-festett falak, amelyeket az állapot pontos megítélése érdekében nem festettek le, az egyes helyiségekben a vízkár nyoma kijavítandó
-jelenleg gázkonvektor a helyiségekben
-fürdőszobán ablak
IDEÁLIS adottságok, kényelmes terek, jó bővítési LEHETŐSÉGGEL!
Modernizáld kedved szerint!
A telek szép panorámát nyújt, a lejtős telken a teraszok és az őket összekötő lépcsők már kialakításra kerültek, tehát földmunka nem szükséges.
A városrész megközelítése egyszerű, autóval vagy az Újgyőri főtérről induló 19-es busszal elérhető!
-Komlóstetői Általános iskola
-Szeder utcai óvoda
-Felicita Pizzéria
A terület közbiztonsága érdekében a Komlóstetőre térfigyelő kamerát telepítettek!
Ha nyugalomra, jó levegőre, megbízható szomszédokra vágysz, hívj!
A fotók a jelen állapotot MUTATJÁK!
Tavasszal és nyáron a kert és a mögötte húzódó erdő látványa és érzete csodálatos!
A napi rohanás és városi zaj után ez a családi ház lehetővé teszi, hogy lelassulj, pihenj, akár sétálj vagy üldögélj a kertben!
Ha hitelt veszel fel, az sem gond!
AZ alaprajz tájékoztat a helyiségek jelenlegi ELHELYEZKEDÉSÉRŐL!
Megtekintés egyeztetéssel!
Hívhatsz hétvégén is! FIX 3% lakáshitelre megvehető

