Eladó befejezetlen ház - Monor
- INGYENES HIRDETÉS FELADÁS
Ingatlan adatai
- Feladva:4 hónapja a megveszLAK-on
- Eladó vagy kiadó:Eladó
- Település:Monor
- Kategória:Ház
- Alkategória:Családi ház
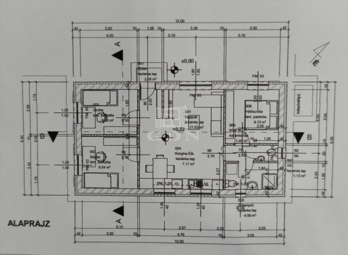
- Alapterület:70 m2
- Telekterület:424 m2
- Csere is:Nem
- Hirdető:Cég
- Élő videón megtekinthető:Nem
- Építés éve:2025
- Szobaszám:3
- Állapot:Befejezetlen
- Hány szintes az ingatlan:Földszintes
- Tetőtér:nincs megadva
- Komfortosság:nincs megadva
- Pince:nincs megadva
- Parkolási lehetőség:Beállóban
- Fűtés:Gáz (cirko)
- Bútorozottság:nincs megadva
- Fényviszony:nincs megadva
- Tájolás:nincs megadva
- Kilátás:nincs megadva
- Internet:nincs megadva
- Klíma:nincs megadva
- Akadálymentesített:nincs megadva
- Energiatanúsítvány:nincs megadva
- Villany:Telken belül
- Víz:Telken belül
- Gáz:Telken belül
- Csatorna:Telken belül
- Kapcsolatfelvétel

Kovács Krisztián
+36-(20)-361-3763
Mondd meg a hirdetőnek, hogy a megveszLAK-on találtad a hirdetést.
Hitel ajánlatok
Ingatlan hirdetés leírása
34.990.000 FT ! ! ! CSAK KÉSZPÉNZES VEVŐNEK! AZ ÁR A JELEN ÁL...
34. 990. 000 Ft! ! ! Csak készpénzes VEVŐNEK!
AZ ár a jelen állapotra vonatkozik, ami a képeken is látható!
- Új ÉPÍTÉSŰ,
- 3 különnyíló SZOBÁS,
- 70 NM,
- 2 WC,
- csendes utcában, jó SZOMSZÉDOKKAL!
- 424 Nm-es TELKEN.
ENNYIÉRT ilyet, ilyen helyen és paraméterekkel nem fog kapni pest MEGYÉBEN!
NE maradjon le, tegyen ajánlatot még MA!
U. I. : a környékről és szomszédokról annyit igen fontos megjegyezni, hogy a kivitelezés során nem őrizték vagy őriztették a telken az építőanyagokat és mégsem tünt el soha semmi! ! ! FIX 3% lakáshitelre megvehető
Tetszett ez az eladó Monori befejezetlen 3 szobás családi ház? Hívd fel a hirdetőt most, és tudj meg mindent erről az eladó családi házról! Ha gondolod nézelődj tovább az eladó ház Monor oldal hirdetései között. Ennek az eladó háznak az ára 34990000 Ft és mivel az alapterülete 70 négyzetméter, ezért az átlagos négyzetméterára 499857 HUF/m2.
Az eladó házak menüpontban további hirdetések között is böngészhetsz. Ha van kedved, akkor böngészhetsz a Kovács Krisztián összes hirdetése között, vagy akár a/az GDN Ingatlanhálózat összes hirdetése között is.

