Eladó újszerű állapotú ház Mosonmagyaróvár
| Kedvencbe | Megosztás | Árfigyelő |
| FIX 3% lakáshitelre megvehető | ||
| 120 000 000 HUF | ||
Ingatlan adatai
- Eladó vagy kiadó:Eladó
- Település:Mosonmagyaróvár
- Kategória:Ház
- Alkategória:Családi ház
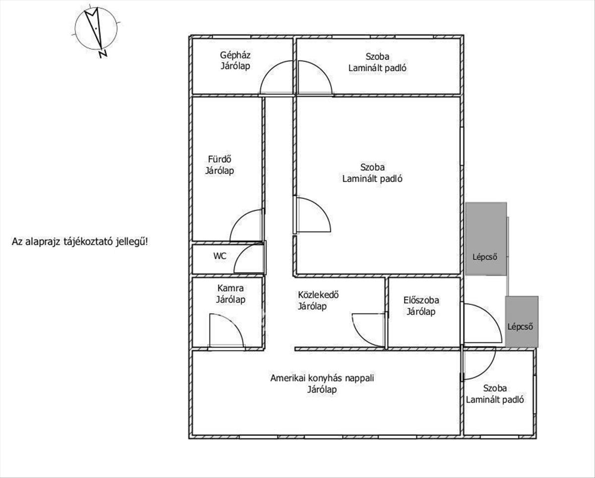
- Alapterület:154 m2
- Telekterület:714 m2
- Csere is:Nem
- Hirdető:Cég
- Élő videón megtekinthető:Nem
- Építés éve:1980
- Szobaszám:3 + 1 fél
- Állapot:Újszerű, kitűnő
- Hány szintes az ingatlan:Földszintes
- Tetőtér:nincs megadva
- Komfortosság:nincs megadva
- Parkolási lehetőség:Teremgarázsban
- Fűtés:Gáz (cirko)
- Bútorozottság:nincs megadva
- Fényviszony:Napfényes
- Tájolás:nincs megadva
- Kilátás:nincs megadva
- Internet:nincs megadva
- Akadálymentesített:nincs megadva
- Energiatanúsítvány:nincs megadva
- Villany:Telken belül
- Víz:Telken belül
- Gáz:Telken belül
- Csatorna:nincs megadva
- Üzenetküldés
- Hívás

Referencia szám: M317888

Hitel ajánlat
Ingatlan hirdetés leírása
Eladó Ház, Mosonmagyaróvár
Mosonmagyaróváron eladó, gondosan karbantartott családi ház csendes, belvároshoz közeli övezetben!Eladásra kínálok Mosonmagyaróvár egyik kedvelt részén, csendes, családi házas utcában található, 155 nm-es, folyamatosan karbantartott és felújított, kiváló állapotú családi házat, amely költözésre készen várja új tulajdonosát.
Az ingatlan elhelyezkedése rendkívül kedvező: közel az m1 autópályához, a határhoz és Győrhöz, így ingázóknak is ideális választás.
Az ingatlan megfelel a 3%-os hitel feltételeinek.
Főbb jellemzők:
155nm alapterület
714 nm-es, rendezett telek
4 jól elosztott, tágas szoba
Folyamatosan karbantartott és felújított ingatlan
Hőszigetelt, alacsony rezsivel
Gázfűtés
Saját garázs és kocsibeálló
Csendes utca, családi házas környezet, mégis közel a belvároshoz
Az ingatlan ideális választás családoknak, akik szeretnének egy kifogástalan állapotú, jó elhelyezkedésű otthont, ahol minden adott a kényelmes mindennapokhoz.
Amennyiben a hirdetés felkeltette az érdeklődését, hívjon bizalommal!
Referenciaszám: M317888
Amennyiben felkeltettük érdeklődését, kérem hívjon bizalommal!
Szabó Gábor +36-70-639-8927
Referencia szám: m317888-ml FIX 3% lakáshitelre megvehető

