Eladó újszerű állapotú ház - Mosonmagyaróvár
- INGYENES HIRDETÉS FELADÁS
Ingatlan adatai
- Eladó vagy kiadó:Eladó
- Település:Mosonmagyaróvár
- Kategória:Ház
- Alkategória:Családi ház
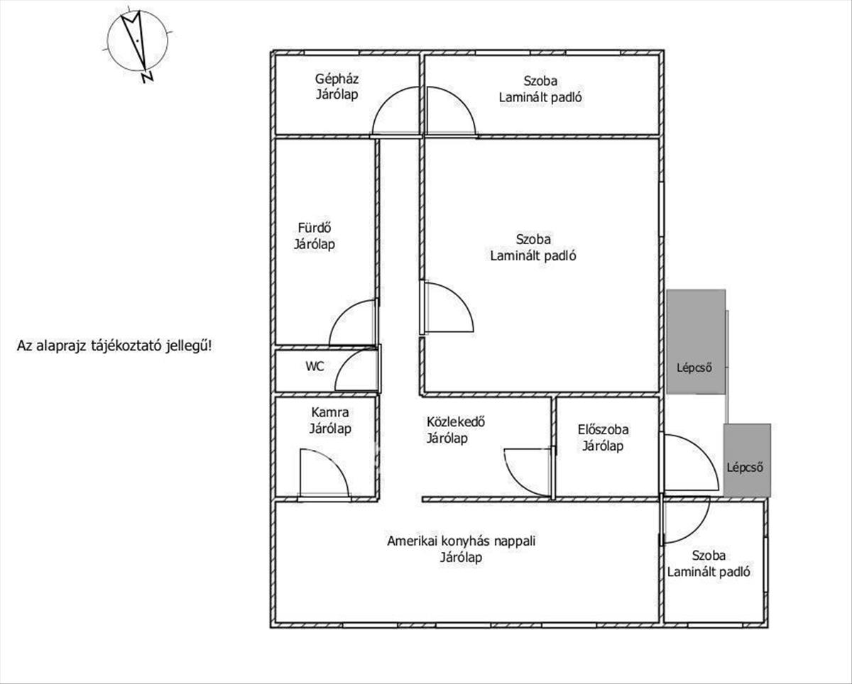
- Alapterület:154 m2
- Telekterület:714 m2
- Csere is:Nem
- Hirdető:Cég
- Élő videón megtekinthető:Nem
- Építés éve:1980
- Szobaszám:3 + 1 fél
- Állapot:Újszerű, kitűnő
- Hány szintes az ingatlan:Földszintes
- Tetőtér:nincs megadva
- Komfortosság:nincs megadva
- Pince:nincs megadva
- Parkolási lehetőség:Teremgarázsban
- Fűtés:Gáz (cirko)
- Bútorozottság:nincs megadva
- Fényviszony:Napfényes
- Tájolás:nincs megadva
- Kilátás:nincs megadva
- Internet:nincs megadva
- Klíma:nincs megadva
- Akadálymentesített:nincs megadva
- Energiatanúsítvány:nincs megadva
- Villany:Telken belül
- Víz:Telken belül
- Gáz:Telken belül
- Csatorna:nincs megadva
- Kapcsolatfelvétel

Dobos András
+36-(70)-372-4717
Mondd meg a hirdetőnek, hogy a megveszLAK-on találtad a hirdetést.
Referencia szám: M317888
Hitel ajánlatok
Ingatlan hirdetés leírása
Eladó Ház, Mosonmagyaróvár
Mosonm agyaróváron eladó, gondosan karbantartott családi ház csendes, belvároshoz közeli övezetben!
Eladásra kínálok Mosonm agyaróvár egyik kedvelt részén, csendes, családi házas utcában található, 155 nm -es, folyamatosan karbantartott és felújított, kiváló állapotú családi házat, amely költözésre készen várja új tulajdonosát.
Az ingatlan elhelyezkedése rendkívül kedvező: közel az m1 autópályához, a határhoz és Győrhöz, így ingázóknak is ideális választás.
Az ingatlan megfelel a 3%-os hitel feltételeinek.
Főbb jellemzők:
155nm alapterület
714 nm -es, rendezett telek
4 jól elosztott, tágas szoba
Folyamatosan karbantartott és felújított ingatlan
Hőszigetelt, alacsony rezsivel
Gázfűtés
Saját garázs és kocsibeálló
Csendes utca, családi házas környezet, mégis közel a belvároshoz
Az ingatlan ideális választás családoknak, akik szeretnének egy kifogástalan állapotú, jó elhelyezkedésű otthont, ahol minden adott a kényelmes mindennapokhoz.
Amennyiben a hirdetés felkeltette az érdeklődését, hívjon bizalommal!
Referenciaszám: M317888
120000000 Ft
Tekintse meg személyesen, várom hívását!
Dobos András +36703724717
Referencia szám: m317888 FIX 3% lakáshitelre megvehető
Tetszett ez az eladó Mosonmagyaróvári újszerű állapotú 3 egész és 1 fél szobás családi ház? Hívd fel a hirdetőt most, és tudj meg mindent erről az eladó családi házról! Ha gondolod nézelődj tovább az eladó ház Mosonmagyaróvár oldal hirdetései között. Ennek az eladó háznak az ára 120000000 Ft és mivel az alapterülete 154 négyzetméter, ezért az átlagos négyzetméterára 779221 HUF/m2.
Az eladó házak menüpontban további hirdetések között is böngészhetsz. Ha van kedved, akkor böngészhetsz a Dobos András összes hirdetése között, vagy akár a/az OTPip Győr Árpád út 23 - OTP Ingatlanpont Iroda összes hirdetése között is.

