Eladó felújítandó ház Nagyér
| Kedvencbe | Megosztás | Árfigyelő |
| FIX 3% lakáshitelre megvehető | ||
| 4 000 000 HUF | ||
Ingatlan adatai
- Eladó vagy kiadó:Eladó
- Település:Nagyér
- Kategória:Ház
- Alkategória:Családi ház
- Alapterület:96 m2
- Telekterület:1998 m2
- Csere is:Nem
- Hirdető:Cég
- Élő videón megtekinthető:Nem
- Építés éve:1940
- Szobaszám:3
- Állapot:Felújítandó
- Hány szintes az ingatlan:Földszintes
- Tetőtér:nincs megadva
- Komfortosság:nincs megadva
- Parkolási lehetőség:Udvaron
- Fűtés:Egyéb
- Bútorozottság:nincs megadva
- Fényviszony:Jó
- Tájolás:nincs megadva
- Kilátás:nincs megadva
- Internet:nincs megadva
- Akadálymentesített:nincs megadva
- Energiatanúsítvány:nincs megadva
- Villany:nincs megadva
- Víz:nincs megadva
- Gáz:nincs megadva
- Csatorna:nincs megadva
- Üzenetküldés
- Hívás

Referencia szám: M295203

Hitel ajánlat
Ingatlan hirdetés leírása
Eladó Ház, Nagyér, Eladó felújítandó ház - Nagyér
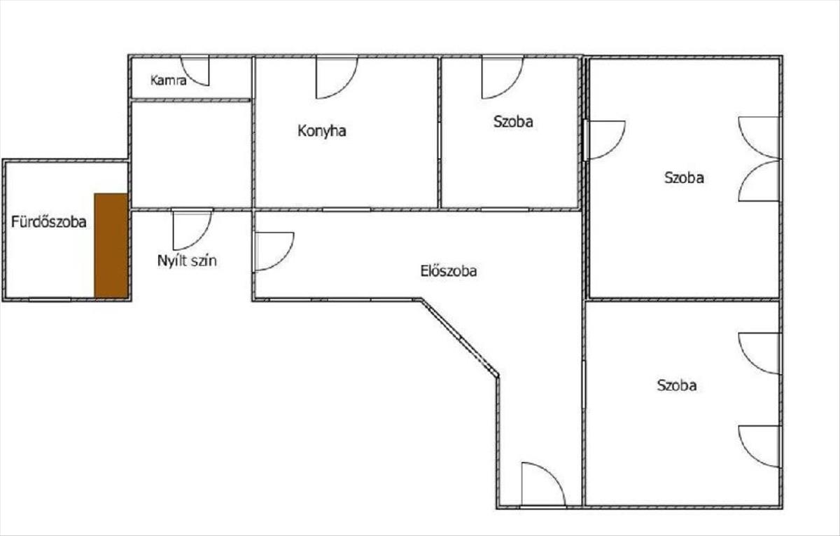
Csak az OTP Ingatlanpont kínálatában!Eladó Csongrád-Csanád vármegyében, Nagyér község központjához közel, egy 3 szoba, előszoba/közlekedő, konyha, kamra, fürdőszoba helyiségekből álló, felújítandó állapotú, 100 m2-es, vegyes falazatú (nagyrészt tégla és vályog) családi ház!
A ház 1940 körül épült, ahhoz 2000 m2-es nagy telek tartozik, pár frissen ültetett gyümölcsfával. a telken góré és tároló található.
A ház szerkezetileg és statikailag jó állapotban van.
A nyílt szín mellett, a padlásfeljáró melletti helyiségben került kialakításra egy nagyobb fürdőszoba, mely a nyílt színnel és így a ház hosszú közlekedőjével egybe nyitható. a tető is jó állapotú.
A ház felújítása pár éve megkezdődött: a tulaj minden szobába új ablakokat szereltetett be. a napfényes előszoba fix ablakai a régiek. a fürdőszoba kialakítása megkezdődött: ide be lett szerezve a vadiúj csempe és a vadiúj dizájner zuhanykabin káddal. Ezek a berendezések mind maradnak a házban, részei a vételárnak. Itt maradnak továbbá a friss függönykarnisok és pár új beltéri ajtó is. a ház le lett betonozva és pár helyen falazás is történt új téglákkal.
Víz, villany, gáz van a házban, jelenleg szüneteltetve vannak, a minimális villany kivételével. Világítás jelenleg csak egy szobában van, a többiben nincs lámpa, egyébként a világítás mindenhol be van vezetve és működőképes.
A háznak fűtése jelenleg nincs (a régi le lett szerelve), de ki lett építve a hálózat radiátoros egyedi gázfűtéshez.
A ház mind párok, mind családok számára tökéletes lehet jó elhelyezkedése, méretei és adottságai alapján! Bár a ház felújítását be kell fejezni, kifejezetten hangulatos otthon alakítható ki belőle. Csendes helyen van, de a központhoz közel, a házhoz tartozó nagy telek is sok lehetőséget rajt magában.
A község rendezett, van bolt, orvos, gyógyszertár, védőnő, óvoda és alsó tagozatos általános iskola is, mind a házhoz közel. a községben könyvtár is működik, van közösségi élet is.
Mezőhegyes 12 perc, Tótkomlós 5 perc alatt elérhető autóval.
Az ingatlan tehermentes, arra hitel, babaváró támogatás is felvehető, melynek elintézésében szintén gyors és szakértő segítséget nyújtunk önnek igény esetén!
A ház az adásvétel után kisebb kipakolást követően birtokba vehető!
Ha felkeltettem érdeklődését, keressen bizalommal!
Vagy esetleg ingatlant adna el? Akkor is keressen bátran a megadott telefonszámon! Akár ingyenes árkalkulációt is szívesen végzünk Önnek, további kötöttségek nélkül!
Referencia szám: m295203 FIX 3% lakáshitelre megvehető
Tetszett ez az eladó Nagyéri felújítandó 3 szobás családi ház? Hívd fel a hirdetőt most, és tudj meg mindent erről az eladó családi házról! Ha gondolod nézelődj tovább az eladó ház Nagyér oldal hirdetései között. Ennek az eladó háznak az ára 4000000 Ft és mivel az alapterülete 96 négyzetméter, ezért az átlagos négyzetméterára 41667 HUF/m2.
Az eladó ház menüpontban további hirdetések között is böngészhetsz. Ha van kedved, akkor böngészhetsz a Orovecz Józsefné összes hirdetése között, vagy akár a/az OTPip Szentes Petőfi utca 12 - OTP Ingatlanpont Iroda összes hirdetése között is.

