Eladó jó állapotú ház - Nagykőrös
- INGYENES HIRDETÉS FELADÁS
Ingatlan adatai
- Feladva:43 napja a megveszLAK-on
- Eladó vagy kiadó:Eladó
- Település:Nagykőrös
- Kategória:Ház
- Alkategória:Családi ház
- Alapterület:100 m2
- Telekterület:459 m2
- Csere is:Nem
- Hirdető:Cég
- Élő videón megtekinthető:Nem
- Építés éve:1970
- Szobaszám:3 + 1 fél
- Állapot:Jó állapotú
- Hány szintes az ingatlan:Földszintes
- Tetőtér:nincs megadva
- Komfortosság:nincs megadva
- Pince:nincs megadva
- Parkolási lehetőség:Udvaron
- Fűtés:Gáz (konvektor)
- Bútorozottság:nincs megadva
- Fényviszony:Jó
- Tájolás:nincs megadva
- Kilátás:nincs megadva
- Internet:nincs megadva
- Klíma:nincs megadva
- Akadálymentesített:nincs megadva
- Energiatanúsítvány:nincs megadva
- Villany:nincs megadva
- Víz:nincs megadva
- Gáz:nincs megadva
- Csatorna:nincs megadva
- Kapcsolatfelvétel

Fedor József
+36-(30)-769-5533
Mondd meg a hirdetőnek, hogy a megveszLAK-on találtad a hirdetést.
Referencia szám: M324854
Hitel ajánlatok
Ingatlan hirdetés leírása
Eladó Ház, Nagykőrös
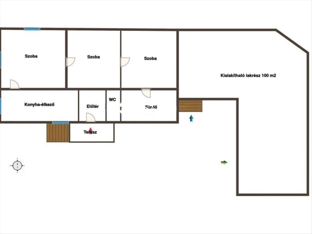
Budapesttől mintegy 80 km-re, jó elhelyezkedéssel kínálunk megvételre egy összesen kb. 180 Nm-es, polgári stílusú családi házat, amely egy 459 nm -es saroktelken helyezkedik el, és két utcáról is megközelíthető.
Az ingatlan a piac közelében található, így frekventált elhelyezkedése miatt akár vállalkozás számára is kiváló lehetőség.
Az épület masszív tégla falazatú és száraz szerkezetű, a tető a közelmúltban teljes cserén esett át, cserépfedéssel.
A ház egyik felében jelenleg egy kb. 100 Nm-es, 3 szobás lakrész található, amelyhez pince is tartozik, míg az épület másik része felújításra vár, így az új tulajdonos saját elképzelései szerint alakíthatja ki.
Az ingatlan adottságai lehetővé teszik akár két külön lakrész kialakítását is.
A kedvező négyzetméter ár, a központ közeli elhelyezkedés, valamint a jó megközelíthetőség miatt az ingatlan befektetésnek, többgenerációs otthonnak vagy vállalkozás számára is remek választás lehet.
Az ingatlan készpénzes vevőt vár.
A vásárlás finanszírozásában az OTP kedvező hitelkonstrukcióival, CSOK + és a támogatott hitel lehetőségével, vagy akár a babaváró hitel ilyen célra történő felhasználásával tud segíteni.
Használja ki a lehetőséget, hogy kedvezőbb kamatozású OTP Bank hitelhez juthat, ha az OTP Ingatlanpont kínálatából vásárol.
Ingatlant kereső ügyfeleink részére szolgáltatásaink és az ingatlanvásárlással, ingatlan felújítással kapcsolatos hitel ügyintézése ingyenes.
Az adás-vétel lebonyolításához korrekt ügyvédi közreműködést tudunk ajánlani.
Amennyiben felkeltette érdeklődését az ingatlan vagy további kérdése lenne hívjon bizalommal akár hétvégén is! FIX 3% lakáshitelre megvehető
Tetszett ez az eladó Nagykőrösi jó állapotú 3 egész és 1 fél szobás családi ház? Hívd fel a hirdetőt most, és tudj meg mindent erről az eladó családi házról! Ha gondolod nézelődj tovább az eladó ház Nagykőrös oldal hirdetései között. Ennek az eladó háznak az ára 33000000 Ft és mivel az alapterülete 100 négyzetméter, ezért az átlagos négyzetméterára 330000 HUF/m2.
Az eladó házak menüpontban további hirdetések között is böngészhetsz. Ha van kedved, akkor böngészhetsz a Fedor József összes hirdetése között, vagy akár a/az OTPip Szolnok Szapáry utca 23 - OTP Ingatlanpont Iroda összes hirdetése között is.

