Eladó jó állapotú ház - Nagykőrös
- INGYENES HIRDETÉS FELADÁS
Ingatlan adatai
- Eladó vagy kiadó:Eladó
- Település:Nagykőrös
- Kategória:Ház
- Alkategória:Családi ház
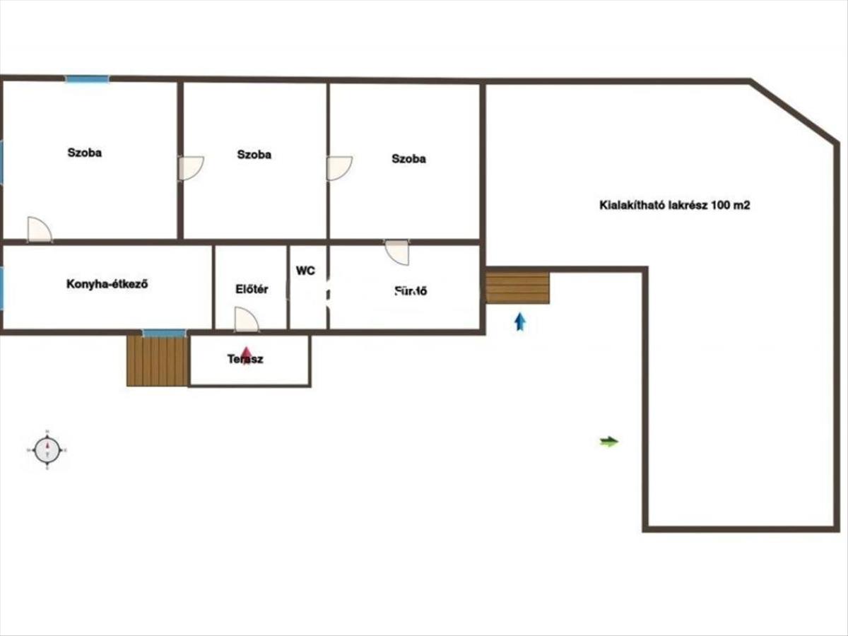
- Alapterület:100 m2
- Telekterület:459 m2
- Csere is:Nem
- Hirdető:Cég
- Élő videón megtekinthető:Nem
- Építés éve:1970
- Szobaszám:3 + 1 fél
- Állapot:Jó állapotú
- Hány szintes az ingatlan:Földszintes
- Tetőtér:nincs megadva
- Komfortosság:nincs megadva
- Pince:nincs megadva
- Parkolási lehetőség:Udvaron
- Fűtés:Gáz (konvektor)
- Bútorozottság:nincs megadva
- Fényviszony:Jó
- Tájolás:nincs megadva
- Kilátás:nincs megadva
- Internet:nincs megadva
- Klíma:nincs megadva
- Akadálymentesített:nincs megadva
- Energiatanúsítvány:nincs megadva
- Villany:nincs megadva
- Víz:nincs megadva
- Gáz:nincs megadva
- Csatorna:nincs megadva
- Kapcsolatfelvétel

Király Petra
+36-(20)-415-8833
Mondd meg a hirdetőnek, hogy a megveszLAK-on találtad a hirdetést.
Referencia szám: M324854
Hitel ajánlatok
Ingatlan hirdetés leírása
Eladó Ház, Nagykőrös
Polgári stílusú családi ház eladó - Budapesttől kb. 1 Órára, Pest vármegyében!
Budapesttől mintegy 80 km-re, jó elhelyezkedéssel kínálok megvételre egy összesen kb. 180 Nm-es, polgári stílusú családi házat, amely egy 459 nm -es saroktelken helyezkedik el, és két utcáról is megközelíthető.
Az ingatlan a piac közelében található, így frekventált elhelyezkedése miatt akár vállalkozás számára is kiváló lehetőség.
Az épület masszív tégla falazatú és száraz szerkezetű, a tető a közelmúltban teljes cserén esett át, cserépfedéssel.
A ház egyik felében jelenleg egy kb. 100 Nm-es, 3 szobás lakrész található, amelyhez pince is tartozik, míg az épület másik része felújításra vár, így az új tulajdonos saját elképzelései szerint alakíthatja ki.
Az ingatlan adottságai lehetővé teszik akár két külön lakrész kialakítását is.
A kedvező négyzetméter ár, a központ közeli elhelyezkedés, valamint a jó megközelíthetőség miatt az ingatlan befektetésnek, többgenerációs otthonnak vagy vállalkozás számára is remek választás lehet.
Az ingatlan készpénzes vevőt vár.
További információért vagy megtekintés egyeztetéséhez keress bizalommal!
Érdeklődni : Király Petra 06204158833
Referencia szám: m324854-ml FIX 3% lakáshitelre megvehető
Tetszett ez az eladó Nagykőrösi jó állapotú 3 egész és 1 fél szobás családi ház? Hívd fel a hirdetőt most, és tudj meg mindent erről az eladó családi házról! Ha gondolod nézelődj tovább az eladó ház Nagykőrös oldal hirdetései között. Ennek az eladó háznak az ára 33000000 Ft és mivel az alapterülete 100 négyzetméter, ezért az átlagos négyzetméterára 330000 HUF/m2.
Az eladó házak menüpontban további hirdetések között is böngészhetsz. Ha van kedved, akkor böngészhetsz a Király Petra összes hirdetése között, vagy akár a/az OTPip Kecskemét Nagykőrösi utca 13 - OTP Ingatlanpont Iroda összes hirdetése között is.

