Eladó újszerű állapotú ház - Nagykovácsi
- INGYENES HIRDETÉS FELADÁS
Ingatlan adatai
- Eladó vagy kiadó:Eladó
- Település:Nagykovácsi
- Kategória:Ház
- Alkategória:Családi ház
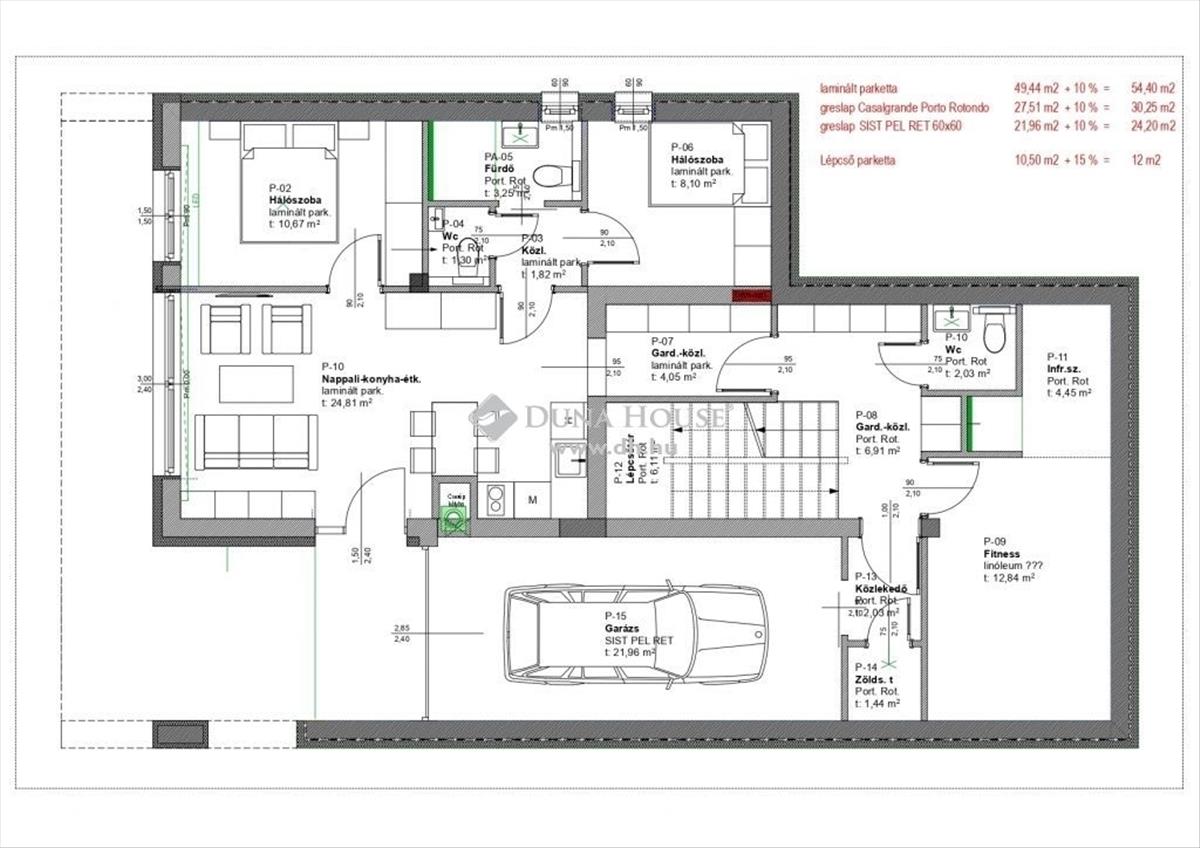
- Alapterület:243 m2
- Telekterület:780 m2
- Csere is:Nem
- Hirdető:Cég
- Élő videón megtekinthető:Nem
- Építés éve:2023
- Szobaszám:7
- Állapot:Újszerű, kitűnő
- Hány szintes az ingatlan:Földszintes
- Tetőtér:nincs megadva
- Komfortosság:nincs megadva
- Pince:nincs megadva
- Parkolási lehetőség:Garázsban
- Fűtés:Hőszivattyús
- Bútorozottság:nincs megadva
- Fényviszony:Napfényes
- Tájolás:DNY
- Kilátás:nincs megadva
- Internet:nincs megadva
- Klíma:nincs megadva
- Akadálymentesített:nincs megadva
- Energiatanúsítvány:A++
- Villany:nincs megadva
- Víz:nincs megadva
- Gáz:nincs megadva
- Csatorna:nincs megadva
- Kapcsolatfelvétel

Láng Péter
+36-(20)-611-1611
Mondd meg a hirdetőnek, hogy a megveszLAK-on találtad a hirdetést.
Referencia szám: HZ030672
Hitel ajánlatok
Ingatlan hirdetés leírása
Eladó ház, Nagykovácsi
Magas minőségű-modern, panorámás családi HÁZ
Nagykovácsi közkedvelt részén, panorámás utcában eladó két külön utcából is megközelíthető, 2 lakrészes, így akár két generációnak is tökéletesen használható modern, nettó 243 nm + 80 m2 teraszos, családi ház.
KÖRNYEZET
- zöld, csendes környezet
- panorámás utca
-aszfaltos útról lehet megközelíteni a házat
- Amerikai iskola 10 percre
ÉPÜLET
- saját részre épült
- igényes anyagfelhasználás és kivitelezés
- parkosított, automata öntözős, rendezett kert,
- 2 utcára nyíló 780 m2 telek
- két utcáról megközelíthető belső 3 szintes, két generáció számára kialakított:
-Egyik utcai rész (120 m2) tágas előszoba, 2 háló, panorámás nagy nappali-konyha -étkező. 1 Tusolós mosókonyhás fürdő, külön wc, 1 modern akadálymentes kádas fürdőszoba WC-vel.
-Másik utcai bejárattal (111 m2 + garázs) nappali-konyha-étkező, 2 háló, 1 tusolós fürdő WC-vel, 1 vendég wc, kombi szauna tusolóval, külön WC-vel, kondi szobával, kamra.
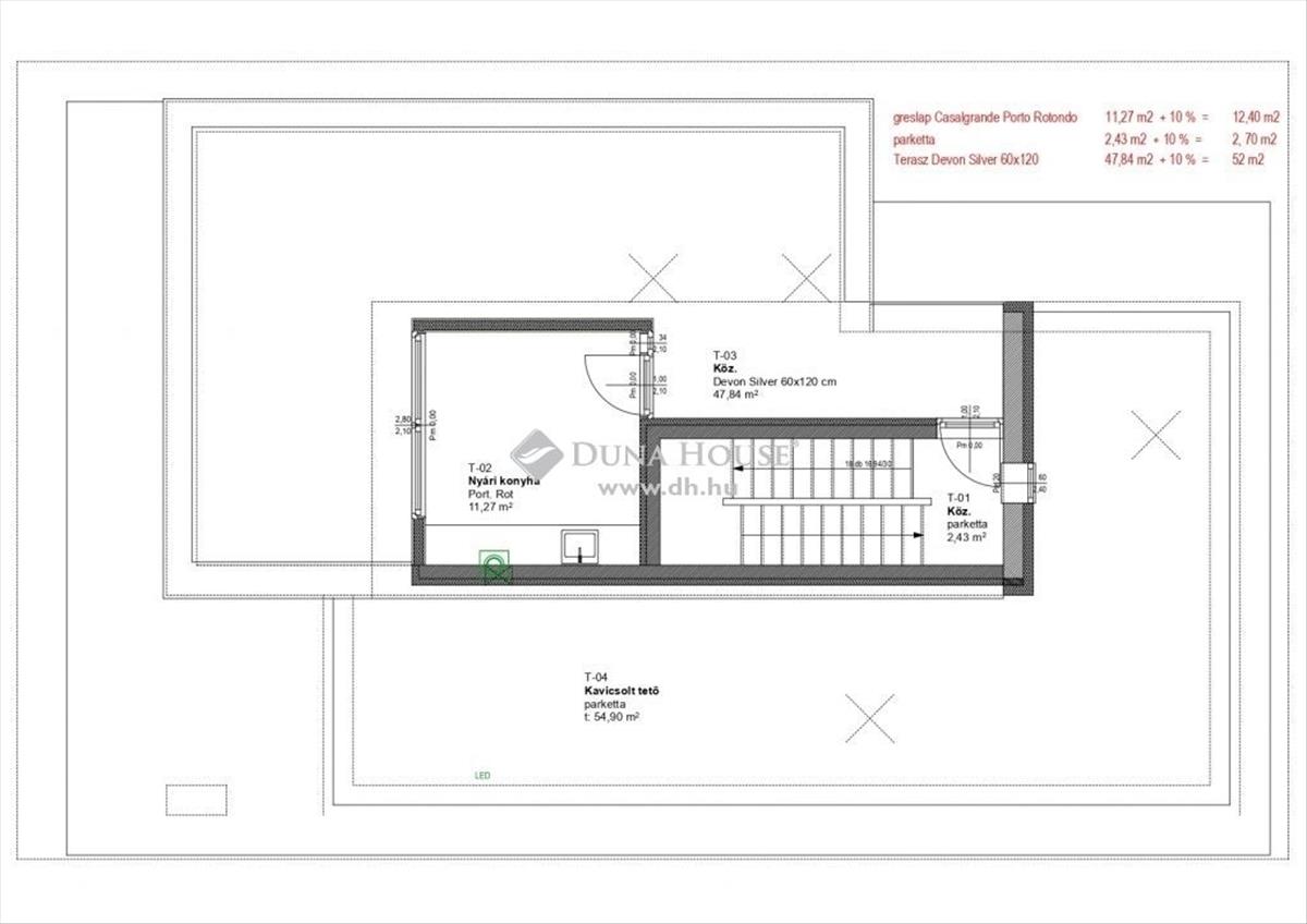
- a belső impozáns, üvegkorlátos, 3 szintet összekötő lépcsőn lehet feljutni a teljes körpanorámás tetőteraszra, ahol egy 12 m2-es konyha-étkező lett kialakítva
- Az ingatlan területén 6 autónak van telken belül beállási lehetősége (1 autónak a garázsban + 1 autónak a garázs előtt fedett beállóban + 1 autónak a napelem alatti fedett helyen + 3 autónak telken belül. )
MŰSZAKI TARTALOM
- Hőszivattyús padló fűtés-mennyezet hűtés 11, 2 kW teljesítményű napelem rendszerrel kiegészítve
- Műanyag nyílászárók
- Elektromos redőnyök, szúnyoghálók
- Mindhárom szinten német gépesített konyhabútor
- Rengeteg beépített szekrény
- Az alsó szinten tűzteres, fával és akár elektromossággal is működtethető cserépkályha, ami a középső szintet is fűti
-Kerti automata öntözőrendszer földalatti víztárolóval
- Kiépített kamera és riasztórendszer
- Kombi szauna
Kifejezetten ajánlom olyan csendet, nyugalmat kereső családoknak, akik a minimális rezsiköltség és a környezettudatosság mellett az extra kényelmet is keresik.
Az ingatlan előzetes időpont egyeztetéssel rugalmasan megtekinthető! Hitel.hu - Hasonlítsa össze a bankok lakáshitel ajánlatait
Tetszett ez az eladó Nagykovácsi újszerű állapotú 7 szobás családi ház? Hívd fel a hirdetőt most, és tudj meg mindent erről az eladó családi házról! Ha gondolod nézelődj tovább az eladó ház Nagykovácsi oldal hirdetései között. Ennek az eladó háznak az ára 458000000 Ft és mivel az alapterülete 243 négyzetméter, ezért az átlagos négyzetméterára 1884774 HUF/m2.
Az eladó házak menüpontban további hirdetések között is böngészhetsz. Ha van kedved, akkor böngészhetsz a Láng Péter összes hirdetése között, vagy akár a/az Duna House Szentendre - Az ingatlanos összes hirdetése között is.

