Eladó új építésű ház - Nagykovácsi
- INGYENES HIRDETÉS FELADÁS
Ingatlan adatai
- Feladva:82 napja a megveszLAK-on
- Eladó vagy kiadó:Eladó
- Település:Nagykovácsi
- Kategória:Ház
- Alkategória:Családi ház
- Alapterület:243 m2
- Telekterület:780 m2
- Csere is:Nem
- Hirdető:Cég
- Élő videón megtekinthető:Nem
- Építés éve:2023
- Szobaszám:7
- Állapot:Új építésű
- Hány szintes az ingatlan:Földszintes
- Tetőtér:nincs megadva
- Komfortosság:nincs megadva
- Pince:nincs megadva
- Parkolási lehetőség:nincs megadva
- Fűtés:Hőszivattyús
- Bútorozottság:nincs megadva
- Fényviszony:Napfényes
- Tájolás:DNY
- Kilátás:nincs megadva
- Internet:nincs megadva
- Klíma:nincs megadva
- Akadálymentesített:nincs megadva
- Energiatanúsítvány:nincs megadva
- Villany:nincs megadva
- Víz:nincs megadva
- Gáz:nincs megadva
- Csatorna:nincs megadva
- Kapcsolatfelvétel

Morecz Benjamin
+36-(30)-319-3577
Mondd meg a hirdetőnek, hogy a megveszLAK-on találtad a hirdetést.
Referencia szám: HZ030672
Hitel ajánlatok
Ingatlan hirdetés leírása
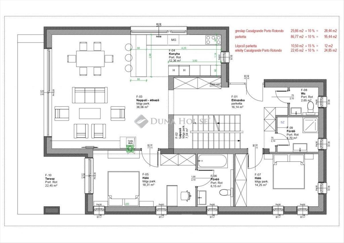
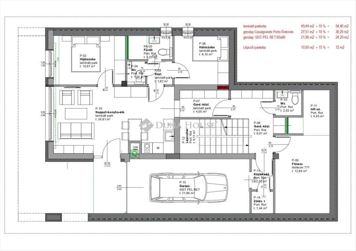
Eladó ház, Nagykovácsi
Magas minőségű, modern, panorámás családi ház Nagykovácsi közkedvelt részén
Nagykovácsi egyik panorámás utcájában, zöld, csendes környezetben kínáljuk eladásra ezt a két lakrészes, modern családi házat, amely ideális két generáció számára is. a ház nettó 243 m², 80 m² terasszal, 780 m²-es, parkosított, automata öntözőrendszerrel ellátott telken helyezkedik el, és két utcáról is megközelíthető. Az Amerikai Iskola csupán 10 percre található.
Külső adottságok:
Panorámás, zöld környezet, csendes utca
Aszfaltos útról könnyen megközelíthető
Telken belül 6 autó számára parkolási lehetőség (garázs, fedett beálló és nyitott parkolóhelyek)
Épület és elrendezés:
Saját részre épült, igényes anyagfelhasználás és kivitelezés
Első lakrész (utcai, 120 m²): tágas előszoba, 2 hálószoba, panorámás nappali-amerikai konyha-étkező, tusolós mosókonyhás fürdő, külön wc, modern akadálymentes kádas fürdőszoba WC-vel
Második lakrész (utcai bejárattal, 111 m² + garázs): nappali-amerikai konyha-étkező, 2 hálószoba, tusolós fürdő WC-vel, vendég wc, kombi szauna tusolóval, kondiszoba, kamra
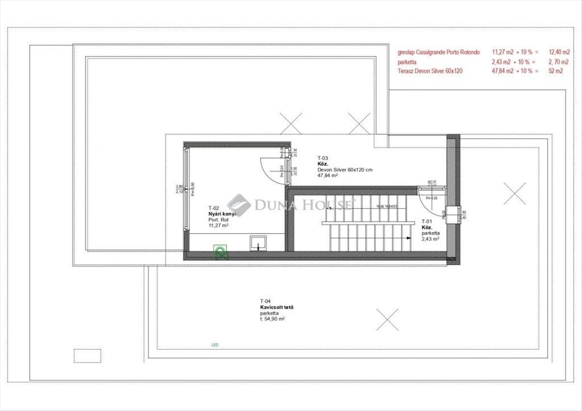
Tetőterasz: impozáns, üvegkorlátos lépcső köti össze a három szintet; teljes körpanorámás tetőterasz 12 m²-es konyha-étkezővel
Műszaki tartalom:
Hőszivattyús padlófűtés és mennyezet hűtés
11, 2 kW teljesítményű napelem-rendszer
Műanyag nyílászárók, elektromos redőnyök, szúnyoghálók
Mindhárom szinten német gépesített konyhabútor
Rengeteg beépített szekrény
Alsó szinten tűzteres cserépkályha (fa és elektromos működtetés)
Automata öntözőrendszer földalatti víztárolóval
Kiépített kamera- és riasztórendszer
Kombi szauna a második lakrészben
Ajánlás:
Kiváló választás olyan családok számára, akik csend, nyugalom, minimális rezsiköltség, környezettudatosság és extra kényelem mellett keresnek otthont.
Megtekintés: előzetes időpont-egyeztetéssel, rugalmasan. Hitel.hu - Hasonlítsa össze a bankok lakáshitel ajánlatait
Tetszett ez az eladó Nagykovácsi új építésű 7 szobás családi ház? Hívd fel a hirdetőt most, és tudj meg mindent erről az eladó családi házról! Ha gondolod nézelődj tovább az eladó ház Nagykovácsi oldal hirdetései között. Ennek az eladó háznak az ára 458000000 Ft és mivel az alapterülete 243 négyzetméter, ezért az átlagos négyzetméterára 1884774 HUF/m2.
Az eladó házak menüpontban további hirdetések között is böngészhetsz. Ha van kedved, akkor böngészhetsz a Morecz Benjamin összes hirdetése között, vagy akár a/az Duna House Dorog összes hirdetése között is.

