Eladó felújítandó ház - Nagyréde
- INGYENES HIRDETÉS FELADÁS
Ingatlan adatai
- Eladó vagy kiadó:Eladó
- Település:Nagyréde
- Kategória:Ház
- Alkategória:Családi ház
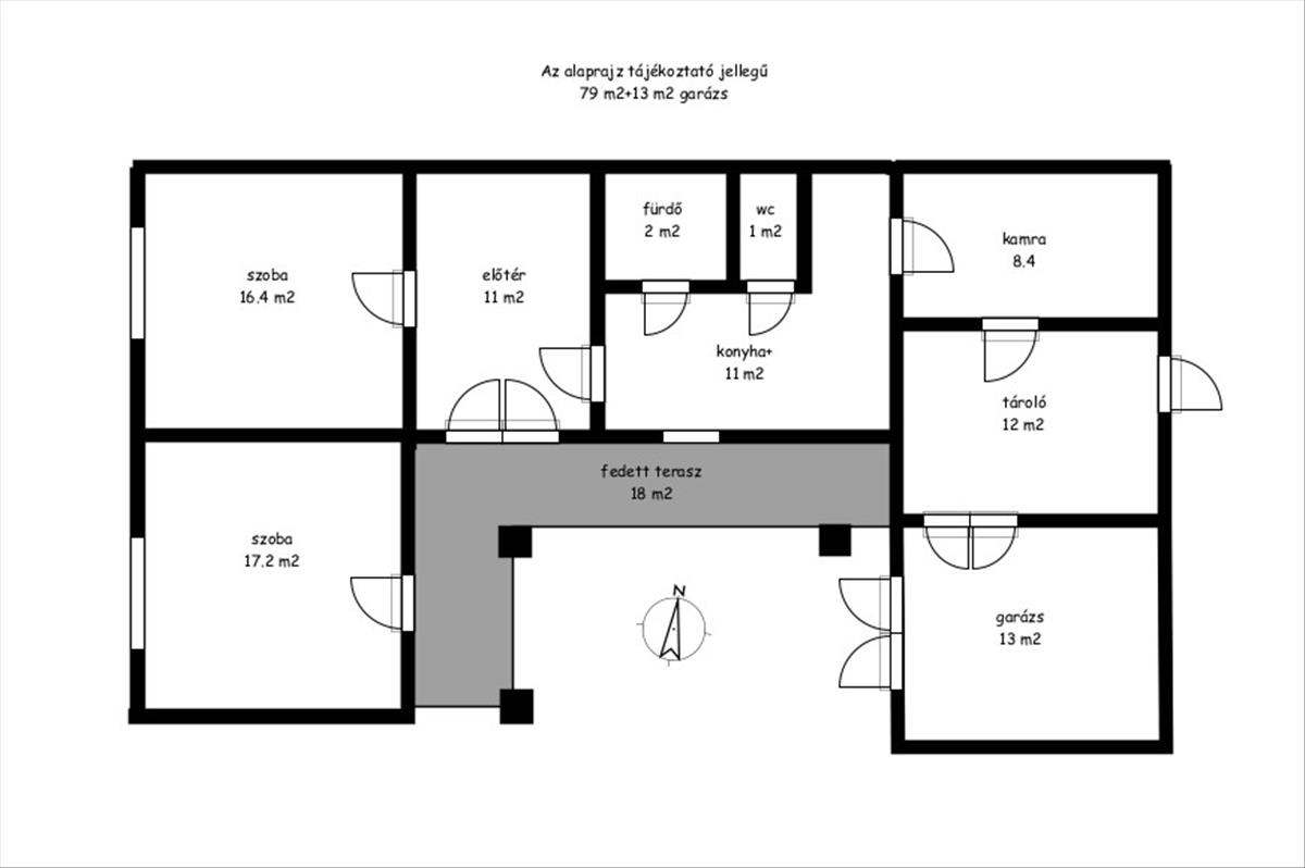
- Alapterület:80 m2
- Telekterület:400 m2
- Csere is:Nem
- Hirdető:Cég
- Élő videón megtekinthető:Nem
- Építés éve:1960
- Szobaszám:2
- Állapot:Felújítandó
- Hány szintes az ingatlan:nincs megadva
- Tetőtér:nincs megadva
- Komfortosság:nincs megadva
- Pince:nincs megadva
- Parkolási lehetőség:nincs megadva
- Fűtés:Gáz (konvektor)
- Bútorozottság:nincs megadva
- Fényviszony:nincs megadva
- Tájolás:nincs megadva
- Kilátás:nincs megadva
- Internet:nincs megadva
- Klíma:nincs megadva
- Akadálymentesített:nincs megadva
- Energiatanúsítvány:nincs megadva
- Villany:nincs megadva
- Víz:nincs megadva
- Gáz:nincs megadva
- Csatorna:nincs megadva
- Kapcsolatfelvétel

Bóta Gábor
+36-(70)-678-7292
Mondd meg a hirdetőnek, hogy a megveszLAK-on találtad a hirdetést.
Hitel ajánlatok
Ingatlan hirdetés leírása
Autentikus vályogház solymosi kő alapon – Hatalmas lehetőségek...
Eladásra kínálunk egy kiváló adottságokkal rendelkező, 80 m²-es, felújításra váró családi házat a Mátra lábánál, a méltán népszerű Nagyrédén.
Ha Ön olyan otthont keres, amely ötvözi a hagyományos építészet előnyeit a modern kényelem megteremtésének lehetőségével, ez az ingatlan tökéletes választás!
Műszaki paraméterek – a biztos alap:
Ez a ház nem „tucattermék”. Az épület stabil solymosi kő alapra épült, falazata pedig 50 cm vastag vályog, ami a mai napig a legjobb természetes hőszigetelő.
• Klíma: Nyáron klíma nélkül is hűvös, télen pedig kiválóan tartja a hőt.
• Állapot: Szerkezetileg stabil, száraz falak, amely remek kiindulópont a modernizáláshoz.
Belső elrendezés (80 m² lakótér):
A ház belső elosztása logikus és jól alakítható:
• 2 tágas, világos szoba: Kényelmes élettér hálószobának és nappalinak.
• Központi előtér: Innen minden helyiség könnyen megközelíthető.
• Konyha, külön fürdőszoba és wc: a vizesblokkok elhelyezkedése ideális.
Kültér és Melléképületek – a ház „koronája”:
• 18 m²-es fedett terasz: Az ingatlan egyik legnagyobb vonzereje. Egy igazi „kültéri nappali”, amely tavasztól őszig a családi élet központja lehet.
• 13 M²-es garázs: Biztonságos hely az autónak vagy akár tárolónak is használható.
• 20 M²-es melléképület, kemencével: Kiválóan alkalmas műhelynek, nyári konyhának vagy akár egy különálló vendégház kialakítására.
• 400 M²-es telek: Pont akkora, amely elegendő teret ad a kertészkedéshez és pihenéshez, de fenntartása nem igényel egész hétvégés elfoglaltságot.
Lokáció – Miért Nagyréde?
Nagyréde Heves vármegye egyik legrendezettebb, fejlődő települése:
• Gyöngyös mindössze 9 km, az M3-as autópálya percek alatt elérhető (Budapest kb. 50 Perc).
• Kiváló infrastruktúra: iskola, óvoda, boltok, orvosi rendelő helyben.
• Híres borvidék, tiszta levegő és barátságos közösség.
Kinek ajánljuk?
• Fiatal pároknak, akik saját ízlésükre formálnák első otthonukat.
• Vállalkozó szelleműeknek, akik értékelik a vályog és a kő természetes tartósságát.
• Hétvégi háznak, a Mátra és a természet közelségét keresőknek.
Irányár: 24. 900. 000. - Ft
Megtekintés: Előre egyeztetett időpontban, rugalmasan!
Ne szalassza el ezt a remek lehetőséget, hívjon még ma!
70/678-7292 (Hivatkozási szám: m124746) FIX 3% lakáshitelre megvehető
Tetszett ez az eladó Nagyrédei felújítandó 2 szobás családi ház? Hívd fel a hirdetőt most, és tudj meg mindent erről az eladó családi házról! Ha gondolod nézelődj tovább az eladó ház Nagyréde oldal hirdetései között. Ennek az eladó háznak az ára 24900000 Ft és mivel az alapterülete 80 négyzetméter, ezért az átlagos négyzetméterára 311250 HUF/m2.
Az eladó házak menüpontban további hirdetések között is böngészhetsz. Ha van kedved, akkor böngészhetsz a Bóta Gábor összes hirdetése között.

