Eladó újszerű állapotú ház Nőtincs
| Kedvencbe | Megosztás | Árfigyelő |
| Kedvezményes lakáshitel ajánlatok | ||
| 628 000 000 HUF | ||
Ingatlan adatai
- Eladó vagy kiadó:Eladó
- Település:Nőtincs
- Kategória:Ház
- Alkategória:Családi ház
- Alapterület:784 m2
- Telekterület:3852 m2
- Csere is:Nem
- Hirdető:Cég
- Élő videón megtekinthető:Nem
- Építés éve:2014
- Szobaszám:6
- Állapot:Újszerű, kitűnő
- Hány szintes az ingatlan:Földszintes
- Tetőtér:nincs megadva
- Komfortosság:nincs megadva
- Parkolási lehetőség:nincs megadva
- Fűtés:Gáz (cirko)
- Bútorozottság:nincs megadva
- Fényviszony:Napfényes
- Tájolás:ÉK
- Kilátás:nincs megadva
- Internet:nincs megadva
- Akadálymentesített:nincs megadva
- Energiatanúsítvány:nincs megadva
- Villany:nincs megadva
- Víz:nincs megadva
- Gáz:nincs megadva
- Csatorna:nincs megadva
- Üzenetküldés
- Hívás

Referencia szám: HZ056083

Hitel ajánlat
Ingatlan hirdetés leírása
Eladó ház, Nőtincs, Eladó újszerű állapotú ház - Nőtincs
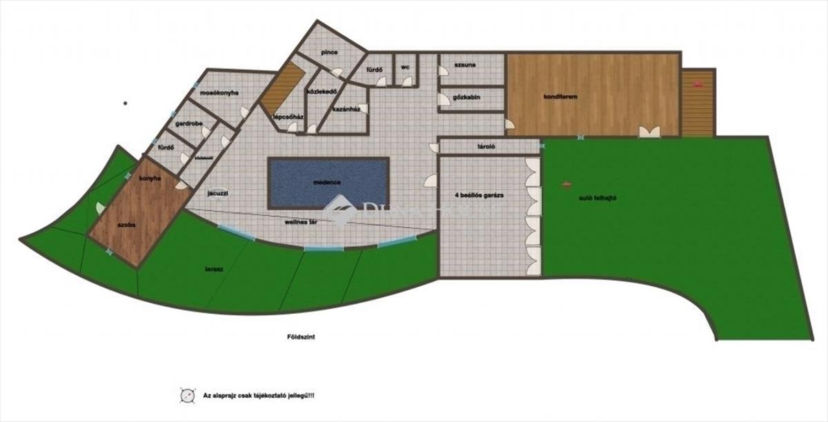
Csodálatos panorámás környezetben luxus otthon eladó Nőtincsen! Ha szeretne minden nap egy wellnes szállodában ébredni, a természet lágy ölén, - egyedi, prémium környezetben -, akkor megtalálta a megfelelő ingatlant! Nőtincs Nógrád megye délnyugati részén, a Naszály hegy tövében, Váctól 10 percre, Budapesttől 45 percre található. a Ferihegyi reptér 40 perc. Lokációját tekintve nagyon jó helyen. a kék túra útvonal itt megy keresztül. Közelében több várrom is megtalálható. a település látványossága a Szent István tó, melyre csodálatos panoráma nyílik a ház torony szobájából, és teraszairól. a házat erdők veszik körül. Ez is növeli a luxus környezetet. a telek mérete 3852 nm. Az ingatlan megtervezésekor elsődleges szempont volt a kilátás, és a panoráma kiemelése, így a ház rengeteg ablaka, nem csak nagyon napfényessé teszi, hanem kiemeli a környező természeti adottságokat. Elosztását tekintve:Földszint:Itt kapott helyet a wellnes részleg. - Szauna - gőzkabin - medence 32 nm- jacuzzi- kondi terem- közlekedő- tároló- fürdőszobaKülön lakótér:- gardrobe- előtér- fürdőszoba- konyha- szoba- nappaliPinceGarázs : 4 beállásos automata kapus hatalmas garázs. Az egész házat gyönyörű tágas, különleges formájú teraszok veszik körül. 1. emelet:- 4 szoba- 3 gardrobe- hatalmas amerikai konyhás nappali- étkező- téli kert- előtér- közlekedőkAz emeletet is körbe veszik a csodás teraszok. 2. emelet:- torony szoba, mely egy különleges dolgozó szoba- billiard és játék teremItt található a ház legfelső terasza is. Műszaki adatok:- a ház kétgenerációs- újszerű állapotú- építését 2014-ben fejezték be- falazatát tekintve, a lakótér 38-as Porotherm téglából épült, az alagsor pedig betonból és terméskőből. - a teljes épület hőszigetelt- fűtését padló és falfűtés biztosítja, gáz cirkó segítségével- hűszivattyús fűtés is rendelkezésre áll- valamint egy egyedi tervezésű hangulatos épített kandalló is- 20 db napkollektor- a nappaliban kialakításra került ezen túl mennyezet hűtés-fűtés, a ház pontos méretei:Földszint: 369 m2 + 118 m2 terasz1. emelet: 295 m2 + 93 m2 fedett terasz2. emelet: 121 m2 + 5. 5 m2 teraszKapcsolódó telek: 3852 m2A házra jellemző extrák:- medence - Wellness funkciókkal (32 m2, 1. 5 Méter mély)- gőzkabin- 20 db napkollektor- Miele konyha - bútorozva és gépesítve (beépített 2 db sütő, főzőlap, mikró, kávéfőző, melegentartó fiók, hűtőszekrény fagyasztóval, elszívó)- beépített központi porszívó- elektromos redőnyök mindenhol- hatalmas ablakok, és terasz ajtók (a házon 48 darab hatalmas ablak található)- elektromos kapuk- riasztó rendszer- kamera rendszer- beépített szekrények- legjobb minőségű luxus, hideg-meleg burkolatokA ház csodálatos japán kertjét kertész tervezte, és tartja karban. a gyönyörű növények között terül el a 16*2 nm-es kerti tó, kültéri kemence és sütögető is. a ház 1/1 tulajdonú, per és teher mentes. Profi, azonnali hitelügyintézéssel díjmentesen állunk rendelkezésükre. Mutatásban rugalmasak vagyunk. Ha ez a luxus otthon felkeltette érdeklődését, ne habozzon, keressen bártan! ! ! !Referencia szám: hz056083 Hitel.hu - Hasonlítsa össze a bankok lakáshitel ajánlatait

