Eladó újszerű állapotú ház - Nőtincs
- INGYENES HIRDETÉS FELADÁS
Ingatlan adatai
- Eladó vagy kiadó:Eladó
- Település:Nőtincs
- Kategória:Ház
- Alkategória:Családi ház
- Alapterület:784 m2
- Telekterület:3852 m2
- Csere is:Nem
- Hirdető:Cég
- Élő videón megtekinthető:Nem
- Építés éve:2014
- Szobaszám:6
- Állapot:Újszerű, kitűnő
- Hány szintes az ingatlan:Földszintes
- Tetőtér:nincs megadva
- Komfortosság:nincs megadva
- Pince:nincs megadva
- Parkolási lehetőség:nincs megadva
- Fűtés:Gáz (cirko)
- Bútorozottság:nincs megadva
- Fényviszony:Napfényes
- Tájolás:ÉK
- Kilátás:nincs megadva
- Internet:nincs megadva
- Klíma:nincs megadva
- Akadálymentesített:nincs megadva
- Energiatanúsítvány:nincs megadva
- Villany:nincs megadva
- Víz:nincs megadva
- Gáz:nincs megadva
- Csatorna:nincs megadva
- Kapcsolatfelvétel

Daróci Mercédesz Barbara
+36-(70)-403-5565
Mondd meg a hirdetőnek, hogy a megveszLAK-on találtad a hirdetést.
Referencia szám: HZ056083
Hitel ajánlatok
Ingatlan hirdetés leírása
Eladó ház, Nőtincs, Eladó újszerű állapotú ház - Nőtincs
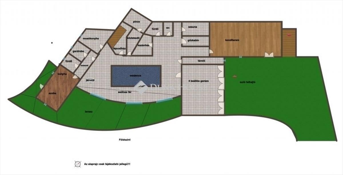
Csodálatos panorámás környezetben luxus otthon eladó Nőtincsen! Ha szeretne minden nap egy wellnes szállodában ébredni, a természet lágy ölén, - egyedi, prémium környezetben -, akkor megtalálta a megfelelő ingatlant! Nőtincs Nógrád megye délnyugati részén, a Naszály hegy tövében, Váctól 10 percre, Budapesttől 45 percre található. a Ferihegyi reptér 40 perc. Lokációját tekintve nagyon jó helyen. a kék túra útvonal itt megy keresztül. Közelében több várrom is megtalálható. a település látványossága a Szent István tó, melyre csodálatos panoráma nyílik a ház torony szobájából, és teraszairól. a házat erdők veszik körül. Ez is növeli a luxus környezetet. a telek mérete 3852 nm . Az ingatlan megtervezésekor elsődleges szempont volt a kilátás, és a panoráma kiemelése, így a ház rengeteg ablaka, nem csak nagyon napfényessé teszi, hanem kiemeli a környező természeti adottságokat. Elosztását tekintve:Földszint:Itt kapott helyet a wellnes részleg. - Szauna - gőzkabin - medence 32 nm - jacuzzi- kondi terem- közlekedő- tároló- fürdőszobaKülön lakótér:- gardrobe- előtér- fürdőszoba- konyha- szoba- nappaliPinceGarázs : 4 beállásos automata kapus hatalmas garázs. Az egész házat gyönyörű tágas, különleges formájú teraszok veszik körül. 1. emelet:- 4 szoba- 3 gardrobe- hatalmas amerikai konyhás nappali- étkező- téli kert- előtér- közlekedőkAz emeletet is körbe veszik a csodás teraszok. 2. emelet:- torony szoba, mely egy különleges dolgozó szoba- billiard és játék teremItt található a ház legfelső terasza is. Műszaki adatok:- a ház kétgenerációs- újszerű állapotú- építését 2014-ben fejezték be- falazatát tekintve, a lakótér 38-as Porotherm téglából épült, az alagsor pedig betonból és terméskőből. - a teljes épület hőszigetelt- fűtését padló és falfűtés biztosítja, gáz cirkó segítségével- hűszivattyús fűtés is rendelkezésre áll- valamint egy egyedi tervezésű hangulatos épített kandalló is- 20 db napkollektor- a nappaliban kialakításra került ezen túl mennyezet hűtés-fűtés, a ház pontos méretei:Földszint: 369 m2 + 118 m2 terasz1. emelet: 295 m2 + 93 m2 fedett terasz2. emelet: 121 m2 + 5. 5 m2 teraszKapcsolódó telek: 3852 m2A házra jellemző extrák:- medence - Wellness funkciókkal (32 m2, 1. 5 Méter mély)- gőzkabin- 20 db napkollektor- Miele konyha - bútorozva és gépesítve (beépített 2 db sütő, főzőlap, mikró, kávéfőző, melegentartó fiók, hűtőszekrény fagyasztóval, elszívó)- beépített központi porszívó- elektromos redőnyök mindenhol- hatalmas ablakok, és terasz ajtók (a házon 48 darab hatalmas ablak található)- elektromos kapuk- riasztó rendszer- kamera rendszer- beépített szekrények- legjobb minőségű luxus, hideg-meleg burkolatokA ház csodálatos japán kertjét kertész tervezte, és tartja karban. a gyönyörű növények között terül el a 16*2 nm -es kerti tó, kültéri kemence és sütögető is. a ház 1/1 tulajdonú, per és teher mentes. Profi, azonnali hitelügyintézéssel díjmentesen állunk rendelkezésükre. Mutatásban rugalmasak vagyunk. Ha ez a luxus otthon felkeltette érdeklődését, ne habozzon, keressen bártan! ! ! ! Hitel.hu - Hasonlítsa össze a bankok lakáshitel ajánlatait
Tetszett ez az eladó Nőtincsi újszerű állapotú 6 szobás családi ház? Hívd fel a hirdetőt most, és tudj meg mindent erről az eladó családi házról! Ha gondolod nézelődj tovább az eladó ház Nőtincs oldal hirdetései között. Ennek az eladó háznak az ára 628000000 Ft és mivel az alapterülete 784 négyzetméter, ezért az átlagos négyzetméterára 801020 HUF/m2.
Az eladó házak menüpontban további hirdetések között is böngészhetsz. Ha van kedved, akkor böngészhetsz a Daróci Mercédesz Barbara összes hirdetése között, vagy akár a/az Duna House Fót összes hirdetése között is.

