Eladó újszerű állapotú ház Nőtincs
| Kedvencbe | Megosztás | Árfigyelő |
| Kedvezményes lakáshitel ajánlatok | ||
| 628 000 000 HUF | ||
Ingatlan adatai
- Eladó vagy kiadó:Eladó
- Település:Nőtincs
- Kategória:Ház
- Alkategória:Családi ház
- Alapterület:784 m2
- Telekterület:3852 m2
- Csere is:Nem
- Hirdető:Cég
- Élő videón megtekinthető:Nem
- Építés éve:2014
- Szobaszám:6
- Állapot:Újszerű, kitűnő
- Hány szintes az ingatlan:Földszintes
- Tetőtér:nincs megadva
- Komfortosság:nincs megadva
- Parkolási lehetőség:nincs megadva
- Fűtés:Gáz (cirko)
- Bútorozottság:nincs megadva
- Fényviszony:Napfényes
- Tájolás:ÉK
- Kilátás:nincs megadva
- Internet:nincs megadva
- Akadálymentesített:nincs megadva
- Energiatanúsítvány:nincs megadva
- Villany:nincs megadva
- Víz:nincs megadva
- Gáz:nincs megadva
- Csatorna:nincs megadva
- Üzenetküldés
- Hívás

Referencia szám: HZ056083

Hitel ajánlat
Ingatlan hirdetés leírása
Eladó ház, Nőtincs, Eladó újszerű állapotú ház - Nőtincs
Csodálatos panorámás környezetben luxus otthon eladó Nőtincsen!Ha szeretne minden nap egy wellnes szállodában ébredni, a természet lágy ölén, - egyedi, prémium környezetben -, akkor megtalálta a megfelelő ingatlant!
Nőtincs Nógrád megye délnyugati részén, a Naszály hegy tövében, Váctól 10 percre, Budapesttől 45 percre található. a Ferihegyi reptér 40 perc.
Lokációját tekintve nagyon jó helyen. a kék túra útvonal itt megy keresztül. Közelében több várrom is megtalálható.
A település látványossága a Szent István tó, melyre csodálatos panoráma nyílik a ház torony szobájából, és teraszairól.
A házat erdők veszik körül. Ez is növeli a luxus környezetet. a telek mérete 3852 nm.
Az ingatlan megtervezésekor elsődleges szempont volt a kilátás, és a panoráma kiemelése, így a ház rengeteg ablaka, nem csak nagyon napfényessé teszi, hanem kiemeli a környező természeti adottságokat.
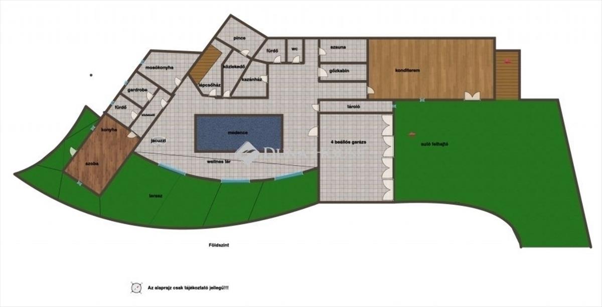
Elosztását tekintve:
Földszint:
Itt kapott helyet a wellnes részleg.
- Szauna
- gőzkabin
- medence 32 nm
- jacuzzi
- kondi terem
- közlekedő
- tároló
- fürdőszoba
Külön lakótér:
- gardrobe
- előtér
- fürdőszoba
- konyha
- szoba
- nappali
Pince
Garázs : 4 beállásos automata kapus hatalmas garázs.
Az egész házat gyönyörű tágas, különleges formájú teraszok veszik körül.
1. emelet:
- 4 szoba
- 3 gardrobe
- hatalmas amerikai konyhás nappali
- étkező
- téli kert
- előtér
- közlekedők
Az emeletet is körbe veszik a csodás teraszok.
2. emelet:
- torony szoba, mely egy különleges dolgozó szoba
- billiard és játék terem
Itt található a ház legfelső terasza is.
Műszaki adatok:
- a ház kétgenerációs
- újszerű állapotú
- építését 2014-ben fejezték be
- falazatát tekintve, a lakótér 38-as Porotherm téglából épült, az alagsor pedig betonból és terméskőből.
- a teljes épület hőszigetelt
- fűtését padló és falfűtés biztosítja, gáz cirkó segítségével
- hűszivattyús fűtés is rendelkezésre áll
- valamint egy egyedi tervezésű hangulatos épített kandalló is
- 20 db napkollektor
- a nappaliban kialakításra került ezen túl mennyezet hűtés-fűtés,
A ház pontos méretei:
Földszint: 369 m2 + 118 m2 terasz
1. emelet: 295 m2 + 93 m2 fedett terasz
2. emelet: 121 m2 + 5. 5 m2 terasz
Kapcsolódó telek: 3852 m2
A házra jellemző extrák:
- medence - Wellness funkciókkal (32 m2, 1. 5 Méter mély)
- gőzkabin
- 20 db napkollektor
- Miele konyha - bútorozva és gépesítve (beépített 2 db sütő, főzőlap, mikró, kávéfőző, melegentartó fiók, hűtőszekrény fagyasztóval, elszívó)
- beépített központi porszívó
- elektromos redőnyök mindenhol
- hatalmas ablakok, és terasz ajtók (a házon 48 darab hatalmas ablak található)
- elektromos kapuk
- riasztó rendszer
- kamera rendszer
- beépített szekrények
- legjobb minőségű luxus, hideg-meleg burkolatok
A ház csodálatos japán kertjét kertész tervezte, és tartja karban.
A gyönyörű növények között terül el a 16*2 nm-es kerti tó, kültéri kemence és sütögető is.
A ház 1/1 tulajdonú, per és teher mentes.
Profi, azonnali hitelügyintézéssel díjmentesen állunk rendelkezésükre.
Mutatásban rugalmasak vagyunk.
Ha ez a luxus otthon felkeltette érdeklődését, ne habozzon, keressen bártan! ! ! ! Hitel.hu - Hasonlítsa össze a bankok lakáshitel ajánlatait

